Lage der Immobilie
Adeerklaaer StraßeBeschreibung der Immobilie
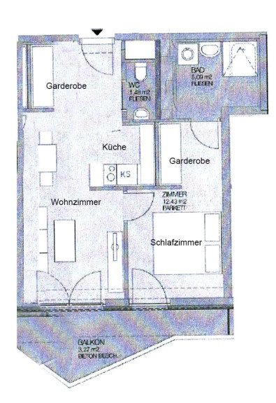
Diese 2 Zimmer-Wohnung liegt in einer sehr guten Lage des. 22ten Bezirks!
Es handelt sich um ein Gebäude, welches 2015 erbaut wurde. Die Wohnung liegt im 24.Liftstockund bietet folgende
Raumaufteilung:
-
Vorraum mit Garderobe
-
WC
-
Badezimmer mit Dusche und WM-Anschluss
-
Wohnküche mit Zugang zum Balkon
-
Schlafzimmer mit Garderobe
-
Balkon
Ein Kellerabteil ist der Wohnung zugehörig. Weiters gibt es einen Fahrrad- und Kinderwagenraum.
Angeboten wird ein befristetes Mietverhältnis (5 Jahre - Verlängerung gerne möglich)!
Lage: Zwischen der Wagramer Straße und der U1-Station Aderklaaer Straße gelegen, verfügt das City Gate über eine hervorragende Anbindung an das Wiener Straßennetz sowie an den öffentlichen Verkehr.
Von der Hausverwaltung werden EUR 150,- für die Mietvertragserstellung in Rechnung gebracht.
Der Immobilienmakler erklärt, dass er – entgegen dem in der Immobilienwirtschaft üblichen Geschäftsgebrauch des Doppelmaklers – einseitig nur für den Vermieter tätig ist.
Infrastruktur / Entfernungen
Gesundheit
Arzt <1.000m
Apotheke <500m
Klinik <2.500m
Krankenhaus <4.000m
Kinder & Schulen
Schule <500m
Kindergarten <500m
Universität <2.000m
Höhere Schule <2.000m
Nahversorgung
Supermarkt <500m
Bäckerei <500m
Einkaufszentrum <500m
Sonstige
Bank <500m
Geldautomat <500m
Post <500m
Polizei <500m
Verkehr
Bus <500m
U-Bahn <500m
Straßenbahn <2.000m
Bahnhof <500m
Autobahnanschluss <2.000m
Angaben Entfernung Luftlinie / Quelle: OpenStreetMap
Eckdaten
| Gesamtmiete: | 818,16 € |
| Fläche: | 43,00 m² |
| Zimmer: | 2 |
Basisdaten zur Immobilie
| Objektnr: | 7413 |
| Art: | Wohnung |
| Land: | Österreich |
| Zustand: | Gepflegt |
| Alter: | Neubau |
| Gesamtmiete: | 818,16 € |
| Kaltmiete (netto): | 659,47 € |
| Kaltmiete: | 743,78 € |
| Provision: | Gemäß Erstauftraggeberprinzip bezahlt der Abgeber die Provision. |
| Betriebskosten: | 84,31 € |
| MwSt Gesamt: | 74,38 € |
| Wohnfläche: | 43,00 m² |
| Zimmer: | 2 |
| Bäder: | 1 |
| WC: | 1 |
| Balkone: | 1 |
Internet und TV
Information zur Internet und TV Versorgung hier
Ihre persönliche Beratung
Sabrina Ritter
Spiegelfeld Immobilien GmbH
sabrina.ritter@spiegelfeld.eu
+43 1 5132313-20
