Beschreibung der Immobilie
In sonniger Lage von Oberhofen im Inntal wartet ein besonderes Gebäude mit Geschichte und Zukunft auf neue Eigentümer. Das traditionsreiche Bauernhaus „Beim Peter“ stammt in seiner Grundsubstanz aus dem Jahr 1775 und verbindet heute historisches Flair mit einer umfassenden Generalsanierung (2016–2018).
Auf einem 565 m² großen Grundstück eröffnet sich hier ein Zuhause für Familien und kreative Köpfe, die Wohnen und Arbeiten unter einem Dach vereinen möchten – ob Atelier, Studio, Werkstatt oder einfach Platz für die Familie.
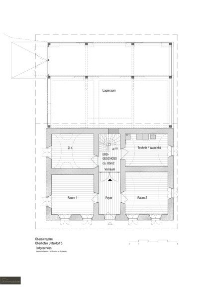
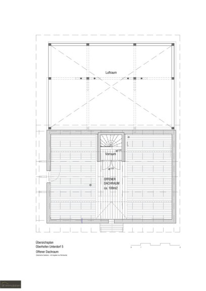
Das massiv errichtete Erd- und Obergeschoss bietet rund 130 m² Wohnfläche mit parktischem Grundriss und viel Atmosphäre. Das rund 100 m² große Dachgeschoss (Holzbau) ist derzeit als offener Freiraum genutzt. Die Versorgungsleitungen für einen späteren Ausbau sind bereits vorbereitet.
Der angebundene Stadel- und Stalltrakt eröffnet auf rund 190 m² weitere Möglichkeiten. Ob Werkstatt, Lager, Ausstellungsfläche oder kreativer Arbeitsbereich – die Struktur ist vorhanden, die Nutzung flexibel.
Ein Haus mit Geschichte, Substanz und viel Potenzial.
Ideal für Familien mit Platzbedarf oder kreative Persönlichkeiten, die Wohnen und Arbeiten verbinden möchten.
Kaufnebenkosten:
3,50 % Grunderwerbsteuer
1,10 % Eintragung Eigentumsrecht
3,00 % + 20 % USt. Vermittlungshonorar
1,50 % + 20 % USt. Kaufvertragserrichtung Notar Dr. Staggl
Beglaubigungskosten
Wichtiger Hinweis
Wir weisen darauf hin, dass wir gemäß unserer Nachweispflicht gegenüber dem Auftraggeber nur Anfragen mit vollständiger Angabe Ihrer persönlichen Daten, Vor- und Nachname, Telefonnummer und E-Mailadresse bearbeiten können.
Rechtlicher Hinweis
Dieses freibleibende Angebot wird Ihnen von der SRI GmbH, welche als Makler tätig ist, überreicht. Alle Angaben erfolgen aufgrund der Informationen und Unterlagen, welche uns vom Eigentümer oder/und von Dritten übermittelt wurden, und sind ohne Gewähr.
Noch nichts gefunden? Wir informieren Sie über geeignete Immobilienangebote noch vor allen anderen.
Legen Sie jetzt Ihren individuellen Suchagenten unter folgendem Link an. Wir schicken Ihnen passende Immobilien exklusiv vorab zu.
Suchagent anlegen - https://sri.service.immo/registrieren/de
Der Vermittler ist als Doppelmakler tätig.
Infrastruktur / Entfernungen
Gesundheit
Arzt <1.500m
Apotheke <2.000m
Kinder & Schulen
Schule <500m
Kindergarten <500m
Höhere Schule <9.000m
Nahversorgung
Supermarkt <1.000m
Bäckerei <500m
Einkaufszentrum <1.500m
Sonstige
Bank <500m
Geldautomat <500m
Post <500m
Polizei <2.500m
Verkehr
Bus <500m
Bahnhof <500m
Autobahnanschluss <1.000m
Angaben Entfernung Luftlinie / Quelle: OpenStreetMap
Eckdaten
| Kaufpreis: | 649.000,00 € |
| Fläche: | 565,00 m² |
Basisdaten zur Immobilie
| Objektnr: | 7473/404 |
| Art: | Haus |
| Land: | Österreich |
| Alter: | Altbau |
| Kaufpreis: | 649.000,00 € |
| Kaufpreis / m²: | auf Anfrage |
| Grundstücksfl.: | 565,00 m² |
| Heizwärmebedarf: | D 149,00 kWh/m²a |
| fGEE: | C 1,59 |
Ausstattung
Gas, Zentralheizung
Internet und TV
Information zur Internet und TV Versorgung hier
Ihre persönliche Beratung
Reinhard Siller
SRI
info@sri.co.at
+43 664 48 11 153
+43 664 48 11 153
