Helles Loft mit Dachterrasse im Herzen von Groß-Enzersdorf
Wohnung
- Dachgeschoß,
2301
Groß-Enzersdorf
Beschreibung der Immobilie
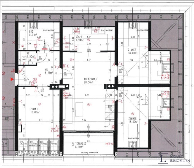
Dieses moderne Loft entstand 2013 beim Umbau des Dachgeschosses. Mit einer Wohnfläche von 150,83 m² bietet die Wohnung eine großzügige Raumaufteilung und ein helles, offenes Wohnambiente, das modernes Design mit praktischer Funktionalität verbindet.
Beim Betreten empfängt Sie ein großzügiger Eingangsbereich mit Platz für Garderobe und Stauraum. Auf dieser Ebene befinden sich drei vielseitige Zimmer, die je nach Bedarf als Schlafzimmer, Kinderzimmer, Gästezimmer oder Arbeitszimmer genutzt werden können.
Das Badezimmer ist mit Badewanne und Waschbecken ausgestattet, ein separates WC sorgt für zusätzlichen Komfort im Alltag.
Das Herzstück der Wohnung ist der lichtdurchflutete Wohn- und Essbereich. Große Fenster und offene Gestaltung schaffen ein angenehmes Raumgefühl. Die moderne Küche ist harmonisch integriert und eignet sich sowohl für den täglichen Gebrauch als auch für geselliges Beisammensein. Von hier aus gelangen Sie direkt auf die Dachterrasse mit Blick auf den gepflegten Gemeinschaftsgarten.
Eine Treppe führt vom Wohnbereich zur offenen Galerie im Loft, die als flexible Zusatzfläche genutzt werden kann – etwa als Homeoffice, Leseecke, Kreativatelier oder Ruhebereich. Auf derselben Ebene befindet sich außerdem ein praktischer Abstellraum.
Highlights der Wohnung:
-
Dachterrasse
Ein gemütlicher Außenbereich mit Blick auf den Gemeinschaftsgarten – ideal zum Entspannen und Sonnenbaden. -
Eigener Gartenbereich
Zugang zu einem abgegrenzten Teil des Gemeinschaftsgartens, perfekt zum Anpflanzen von Blumen oder Gemüse. -
Parkmöglichkeiten
Möglichkeit zur Anmietung von zwei Garagenstellplätzen sowie einem zusätzlichen Hofstellplatz, derzeit von den Eigentümern genutzt. -
Zentrale Lage
Die Wohnung liegt mitten in Groß-Enzersdorf, mit bequemem Zugang zu Geschäften, Dienstleistungen und öffentlichem Verkehr.
Dieses Loft verbindet modernes Wohnen mit großzügigen Räumen und praktischer Lage und ist somit ein ideales Zuhause für Familien, Paare oder alle, die eine geräumige Wohnung in der Nähe von Wien suchen.
Infrastruktur / Entfernungen
Gesundheit
Arzt <500m
Apotheke <500m
Klinik <4.500m
Krankenhaus <7.000m
Kinder & Schulen
Schule <500m
Kindergarten <500m
Universität <1.000m
Höhere Schule <4.000m
Nahversorgung
Supermarkt <500m
Bäckerei <500m
Einkaufszentrum <1.000m
Sonstige
Bank <500m
Geldautomat <500m
Post <500m
Polizei <500m
Verkehr
Bus <500m
U-Bahn <4.500m
Straßenbahn <5.000m
Bahnhof <4.500m
Autobahnanschluss <7.000m
Angaben Entfernung Luftlinie / Quelle: OpenStreetMap
Eckdaten
| Kaufpreis: | 920.000,00 € |
| Fläche: | 150,83 m² |
| Zimmer: | 6,50 |
Basisdaten zur Immobilie
| Objektnr: | 1853 |
| Art: | Wohnung - Dachgeschoß |
| Land: | Österreich |
| Baujahr: | 1900 |
| Zustand: | Modernisiert |
| Alter: | Altbau |
| Kaufpreis: | 920.000,00 € |
| Provision: | 33.120,00 € inkl. 20% USt. |
| Betriebskosten: | 395,70 € |
| Heizkosten: | 165,91 € |
| MwSt Gesamt: | 78,22 € |
| Wohnfläche: | 150,83 m² |
| Zimmer: | 6,50 |
| Keller: | 5,00 m² |
| Heizwärmebedarf: | D 104,90 kWh/m²a |
| fGEE: | C 1,51 |
Ausstattung
Zentralheizung
Internet und TV
Information zur Internet und TV Versorgung hier
Ihre persönliche Beratung
Kudrat Gassanov
Luxury Immobilien GmbH
sales@luxury-vienna.com
+43 699 178 7777 6
+43 699 178 7777 6
