Entspanntes Wohnerlebnis in leistbarer 2-Raum-Wohnung mit sonnigem Balkon - grüne Lage und optimale Infrastuktur!
Wohnung
,
4020
Linz
,
Meggauerstraße 21
Beschreibung der Immobilie
Linz / Oed / Meggauerstraße 21
Helle 2-Zimmer-Wohnung mit Balkon in ruhiger, grüner Lage
Im beliebten Linzer Stadtteil Oed erwartet Sie diese helle und optimal geschnittene 2-Zimmer-Wohnung in ruhiger und dennoch zentrumsnaher Lage. Die Umgebung überzeugt durch viel Grün, eine familienfreundliche Atmosphäre und eine sehr gute Infrastruktur.
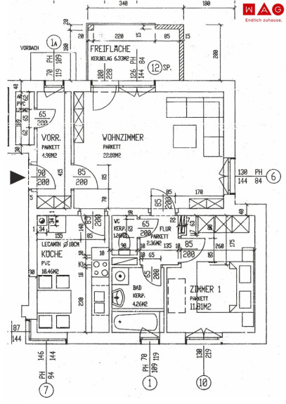
Raumaufteilung
-
Wohnzimmer mit Zugang zum Balkon
-
1 Schlafzimmer
-
Küche
-
Badezimmer mit Badewanne
-
Separates WC
-
Praktischer Abstellraum
Highlights
-
Helle 2-Zimmer-Wohnung mit guter Raumaufteilung
-
Balkon
-
Lift vorhanden
-
Ruhige und grüne Wohnlage
-
Familienfreundliches Umfeld
-
Tiefgaragenplatz KFZ
-
Sofort beziehbar
Lage & Infrastruktur
Der Stadtteil Oed zählt zu den besonders gefragten Wohnlagen im Westen von Linz. Charakteristisch sind die aufgelockerte Bebauung, moderne Siedlungsabschnitte und großzügige Grünflächen.
Ein Einkaufszentrum sowie ein Ärztezentrum befinden sich in unmittelbarer Nähe. Schulen, Kindergärten, Volkshaus, Stadtbücherei, Erholungsparks, Spiel- und Sportanlagen sowie begrünte Wohnhöfe mit Kinderspielplätzen sorgen für hohe Wohnqualität. Die ausgezeichnete Anbindung an das öffentliche Verkehrsnetz rundet das attraktive Wohnangebot ab.
Kosten
-
Miete inkl. Betriebskosten, Kabel-TV und MwSt.: € 665,34/Monat
-
Miete Tiefgarage inkl. MwSt.: € 74,36/Monat
-
Kaution: € 2.958,80
Sie sind an weiteren Wohnungs- bzw. Gewerbeangeboten interessiert? Ein vielfältiges Angebot finden Sie auf unserer Website.
Zur WAG-Immobiliensuche: SUCHE
Zur WAG-Wohnungsanmeldung: Wohnungsanmeldung
Gerne beraten wir Sie persönlich über unser vielfältiges Angebot, rufen Sie uns einfach an! Und das natürlich ohne Vermittlungsgebühren und provisionsfrei!
Angaben sind ohne Gewähr auf Richtigkeit und Vollständigkeit. Druckfehler vorbehalten.
Infrastruktur / Entfernungen
Gesundheit
Arzt <400m
Apotheke <450m
Klinik <1.675m
Krankenhaus <1.900m
Kinder & Schulen
Kindergarten <250m
Schule <400m
Universität <950m
Höhere Schule <3.950m
Nahversorgung
Supermarkt <475m
Bäckerei <525m
Einkaufszentrum <1.550m
Sonstige
Bank <400m
Geldautomat <400m
Post <400m
Polizei <1.725m
Verkehr
Bus <350m
Straßenbahn <750m
Bahnhof <500m
Autobahnanschluss <1.300m
Flughafen <5.275m
Angaben Entfernung Luftlinie / Quelle: OpenStreetMap
Eckdaten
| Gesamtmiete: | 739,70 € |
| Fläche: | 62,40 m² |
| Zimmer: | 2 |
Basisdaten zur Immobilie
| Objektnr: | 6650/14680 |
| Art: | Wohnung |
| Land: | Österreich |
| Zustand: | Gepflegt |
| Gesamtmiete: | 739,70 € |
| Kaltmiete (netto): | 488,50 € |
| Kaltmiete: | 679,22 € |
| Provision: | Provision bezahlt der Abgeber. |
| Betriebskosten: | 190,71 € |
| MwSt Gesamt: | 60,48 € |
| Wohnfläche: | 62,40 m² |
| Zimmer: | 2 |
| Bäder: | 1 |
| WC: | 1 |
| Balkone: | 1 |
| Heizwärmebedarf: | C 71,85 kWh/m²a |
| fGEE: | C 1,28 |
Ausstattung
Fernwärme, Zentralheizung, Personenaufzug, Ostbalkon, Bad mit Fenster, Badewanne, Kabel/Satelliten-TV, Tiefgarage, Wasch/Trockenraum
Internet und TV
Information zur Internet und TV Versorgung hier
Ihre persönliche Beratung
Team Vermietung 1
WAG Wohnungsanlagen Gesellschaft m.b.H.
team.vermietung1@wag.at
+43 (0)50 338 6000
