Ihr neuer Firmenstandort in idealem Business-Umfeld I Südosten von Graz
Büro / Praxis
- Bürofläche,
8042
Graz-St. Peter
Beschreibung der Immobilie
Eckdaten
| Gesamtmiete: | 2.107,10 € |
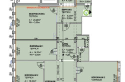
| Fläche: | 134,47 m² |
| Zimmer: | 4 |
Basisdaten zur Immobilie
| Objektnr: | 141/84986 |
| Art: | Büro / Praxis - Bürofläche |
| Land: | Österreich |
| Gesamtmiete: | 2.107,10 € |
| Kaltmiete (netto): | 1.250,57 € |
| Kaltmiete: | 1.581,11 € |
| Miete / m²: | 9,30 € |
| Provision: | pauschal |
| Nutzfläche: | 134,47 m² |
| Zimmer: | 4 |
| WC: | 1 |
Ausstattung
Fernwärme, Personenaufzug
Internet und TV
Information zur Internet und TV Versorgung hier
Ihre persönliche Beratung
Gerald Schneidhofer
Rustler Immobilientreuhand
schneidhofer@rustler-stmk.eu
+43 316 908 900702
+43 676 834 34 702
