Wohnen in gefragter Lage in Judenburg
Haus
- Einfamilienhaus,
8750
Judenburg
Lage der Immobilie
Lage:
Dieses Haus befindet sich in ruhiger und dennoch zentraler Lage in Judenburg.
Infrastruktur:
Einkaufsmöglichkeiten, Schulen, Kindergärten und sämtliche Einrichtungen des täglichen Bedarfs sind in wenigen Minuten erreichbar, sodass Sie alles, was Sie für den Alltag benötigen, bequem nutzen können.
Umgebung:
Die Umgebung zeichnet sich durch eine angenehme Wohnatmosphäre mit gepflegten Einfamilienhäusern, Grünflächen und kurzen Wegen zu Naherholungsgebieten aus. Ideal für Familien, Ruhesuchende oder alle, die Stadt- und Naturnähe verbinden möchten.
Freizeit:
Für die Freizeitgestaltung stehen zahlreiche Möglichkeiten zur Verfügung: Wander- und Radwege beginnen direkt in der näheren Umgebung, und die Aqualux Therme in Fohnsdorf ist bequem mit dem Auto erreichbar. Golfer können ihr Handicap auf dem GC Murtal verbessern, und Motorsportfans zieht es zum Red Bull Ring in Spielberg.
Im Winter bietet die Region mehrere nahegelegene Skigebiete, Langlaufloipen und Schneeschuhrouten; Rodelstrecken, wie jene an der Winterleitenhütte, sorgen für zusätzliche winterliche Freizeitmöglichkeiten für die ganze Familie.
Beschreibung der Immobilie
Diese Liegenschaft befindet sich in zentraler Lage in Judenburg und bietet vielfältige Entwicklungsmöglichkeiten.
Einkaufsmöglichkeiten, Schulen, öffentliche Einrichtungen sowie Verkehrsanbindungen sind in kurzer Distanz erreichbar.
Der unterkellerte Bungalow befindet sich in einem renovierungs- bzw. sanierungsbedürftigen Zustand. Die bestehende Bausubstanz eröffnet jedoch zahlreiche Gestaltungsmöglichkeiten im Zuge einer umfassenden Modernisierung (Zubau und Aufstockung).
Das Grundstück verfügt über einen großzügigen Gartenbereich mit viel Freifläche zur individuellen Nutzung. Ob als Rückzugsort, Familiengarten oder zur kreativen Neugestaltung – hier stehen ausreichend Flächen zur Verfügung. Eine Gartenhütte bietet zusätzlichen Stauraum.
Diese Immobilie richtet sich an Käufer mit Weitblick, die eine Liegenschaft mit Entwicklungsperspektive suchen und bereit sind, in eine umfassende Sanierung zu investieren.
Eckdaten:
- Grundstücksfläche: 969 m²
- Wohnzimmer: 14,32 m²
- Schlafzimmer: 9,76 m²
- Küche: 11,40 m²
- Badezimmer: 4,24 m²
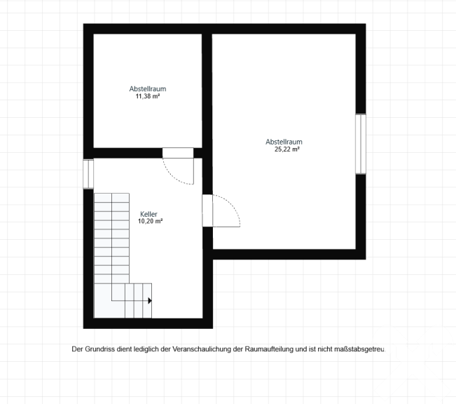
- Kellerfläche: 44,1 m²
- Baujahr: 1973
- Heizungsart: Gas
Überzeugen Sie sich selbst und vereinbaren Sie einen Besichtigungstermin!
Eckdaten
| Kaufpreis: | 178.000,00 € |
| Fläche: | 54,00 m² |
| Zimmer: | 2 |
Basisdaten zur Immobilie
| Objektnr: | 0005004960 |
| Art: | Haus - Einfamilienhaus |
| Land: | Österreich |
| Baujahr: | 1973 |
| Kaufpreis: | 178.000,00 € |
| Provision: | 3% des Kaufpreises plus 20% USt. |
| Wohnfläche: | 54,00 m² |
| Nutzfläche: | 98,00 m² |
| Grundstücksfl.: | 969,00 m² |
| Zimmer: | 2 |
| Bäder: | 1 |
| WC: | 1 |
| Terrassen: | 1 |
| Keller: | 44,00 m² |
| Heizwärmebedarf: | F 202,10 kWh/m²a |
| fGEE: | D 1,78 |
Internet und TV
Information zur Internet und TV Versorgung hier
Ihre persönliche Beratung
Frank Leitgab
Raiffeisen Steiermark
frank.leitgab@rlbstmk.at
22741
+43 664 855 02 44
