Geräumiges Büro in der Liebknechtgasse - S-Bahn Nähe
Büro / Praxis
,
1160
Wien
,
Liebknechtgasse 2+8
Lage der Immobilie
KongreßparkBeschreibung der Immobilie
Zur Vermietung steht eine attraktive Bürofläche in ruhiger Lage, unweit des Kongreßparks.
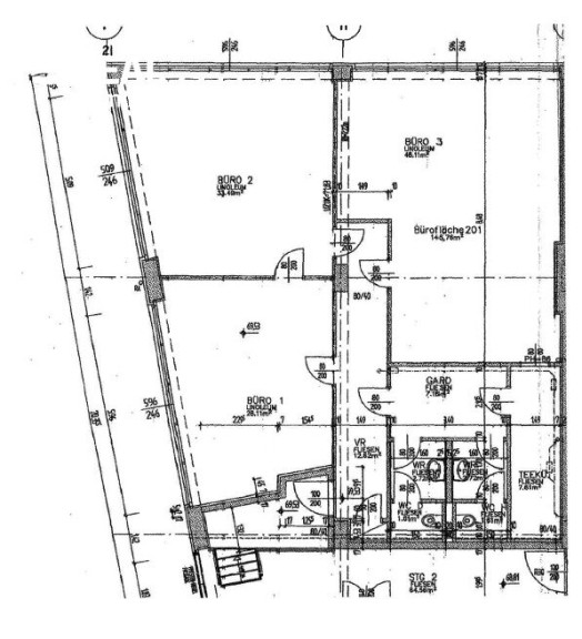
Die Gesamtfläche beträgt ca. 146 m² und umfasst drei Büroräume, eine Teeküche sowie Sanitäranlagen.
Das Objekt befindet sich im 1. Stock eines Gebäudes mit Lift (nicht vollständig barrierefrei).
Die Verkehrsanbindung ist ausgezeichnet: Der Bahnhof Hernals sowie die Straßenbahnlinien 43 und 10 sind bequem fußläufig erreichbar. In der Umgebung stehen ausreichend Parkmöglichkeiten zur Verfügung; zusätzlich können Stellplätze im Haus angemietet werden.
Die ruhige Lage mit Blick ins Grüne sowie die sehr gute Nahversorgung in unmittelbarer Umgebung bieten ideale Voraussetzungen für eine angenehme Arbeitsatmosphäre. Besonders attraktiv ist dieses Büro für alle, die eine helle, moderne Fläche in einem Altbau abseits der innerstädtischen Hektik bevorzugen.
Die monatliche Bruttomiete inklusive Betriebskosten beträgt EUR 1.703,69 (exkl. USt.) bzw. EUR 2.044,43 (inkl. 20 % USt.).
Kaution 3 BMM, Provision 3 BMM
Zwischen dem Eigentümer und der s REAL Immobilienvermittlung GmbH besteht ein wirtschaftliches Naheverhältnis.
Infrastruktur / Entfernungen
Gesundheit
Arzt <150m
Apotheke <325m
Klinik <1.100m
Krankenhaus <925m
Kinder & Schulen
Schule <425m
Kindergarten <475m
Universität <2.075m
Höhere Schule <1.650m
Nahversorgung
Supermarkt <25m
Bäckerei <200m
Einkaufszentrum <575m
Sonstige
Geldautomat <575m
Bank <575m
Post <575m
Polizei <375m
Verkehr
Bus <100m
U-Bahn <300m
Straßenbahn <175m
Bahnhof <150m
Autobahnanschluss <4.150m
Angaben Entfernung Luftlinie / Quelle: OpenStreetMap
Eckdaten
| Kaltmiete (netto): | 1.387,28 € |
| Fläche: | 145,76 m² |
| Zimmer: | 3 |
Basisdaten zur Immobilie
| Objektnr: | 965/1042 |
| Art: | Büro / Praxis |
| Land: | Österreich |
| Zustand: | Gepflegt |
| Alter: | Neubau |
| Kaltmiete (netto): | 1.387,28 € |
| Kaltmiete: | 1.703,69 € |
| Miete / m²: | 9,52 € |
| Provision: | 3 Bruttomonatsmieten zzgl. 20% USt. |
| Betriebskosten: | 316,41 € |
| Nutzfläche: | 145,76 m² |
| Bürofläche: | 145,76 m² |
| Zimmer: | 3 |
| WC: | 2 |
| Heizwärmebedarf: | B 46,00 kWh/m²a |
Ausstattung
Personenaufzug, Teeküche
Internet und TV
Information zur Internet und TV Versorgung hier
Ihre persönliche Beratung
Paul Tibaj
s REAL Kommerz
paul.tibaj@sreal.at
+43 (0)5 0100 - 26260
+43 664 88998632
