Immobilie merken

Schöne, helle Altbauwohnung (Erstbezug nach Sanierung)

Wohnung - Etage, 1030 Wien

Lage der Immobilie

Ruhige Seitengasse zwischen Ungargasse und Arenbergpark mit sehr guter Anbingung an das öffentliche Verkehrsnetz (S-Bahn-Station Rennweg, Straßenbahnlinien 1, 18, O). Geschäfte des täglichen Bedarfs sowie zahlreiche Lokale in unmittelbarer Nähe.

Beschreibung der Immobilie

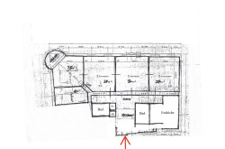
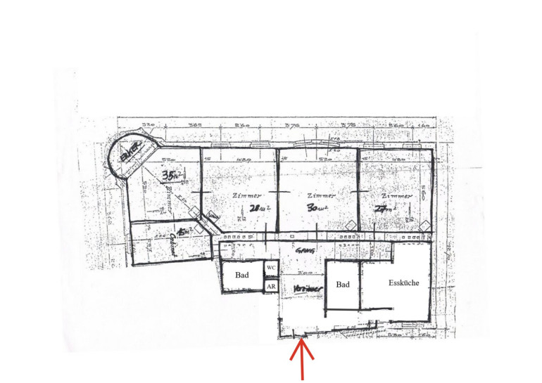
Schöne, gut geschnittene Altbauwohnung mit

- großzügigem Eingangsbereich mit kleinem Abstellraum und Gäste-WC

- vier große Zimmer im Ausmaß von 27m² bis 35m² straßenseitig (ruhige Seitengasse)

- ein kleineres Zimmer (ca 15m²)

- eine geräumige, neue Essküche (ca 26m²) mit stilvollen Zementfliesen; komplett ausgestattet mit Induktionskochplatte, Geschirrspüler, Kühl-/Gefrierkombination, Doppelspüle

- zwei Bäder mit italienischen Fliesen (eines mit Wanne, Waschbecken, WC; eines mit Dusche und Doppelwaschbecken) 

- der Kamin wurde geschliffen und ist funktionstüchtig

Die Wohnung wurde komplett neu saniert (Elektroleitungen, Heizungsleitungen, Thermen, Küche, Bäder, Heizkörper, Steckdosen, Lichtschalter, etc; Eichenholzböden wurden neu geschliffen bzw in der Küche neu verlegt).

Der Immobilienmakler erklärt, dass er – entgegen dem in der Immobilienwirtschaft üblichen Geschäftsgebrauch des Doppelmaklers – einseitig nur für den Vermieter tätig ist.

Infrastruktur / Entfernungen

Gesundheit
Arzt <500m
Apotheke <500m
Klinik <500m
Krankenhaus <500m

Kinder & Schulen
Schule <500m
Kindergarten <500m
Universität <500m
Höhere Schule <500m

Nahversorgung
Supermarkt <500m
Bäckerei <500m
Einkaufszentrum <1.000m

Sonstige
Geldautomat <500m
Bank <500m
Post <500m
Polizei <500m

Verkehr
Bus <500m
U-Bahn <1.000m
Straßenbahn <500m
Bahnhof <500m
Autobahnanschluss <2.000m

Angaben Entfernung Luftlinie / Quelle: OpenStreetMap

Eckdaten

Gesamtmiete: 2.900,00 €
Fläche: 194,00 m²
Zimmer: 6

Basisdaten zur Immobilie

Objektnr: 2234
Art: Wohnung - Etage
Land: Österreich
Baujahr: 1900
Zustand: Voll_saniert
Alter: Altbau
Gesamtmiete: 2.900,00
Kaltmiete (netto): 2.143,01 €
Kaltmiete: 2.636,36 €
Provision: Gemäß Erstauftraggeberprinzip bezahlt der Abgeber die Provision.
Betriebskosten: 425,88 €
MwSt Gesamt: 263,64 €
Wohnfläche: 194,00 m²
Zimmer: 6
Bäder: 2
WC: 2
Heizwärmebedarf:  D  124,30 kWh/m²a
fGEE:  D  2,38

Ausstattung

Fliesen, Parkett, Gas, Etagenheizung, Wohnküche / offene Küche, Personenaufzug, Badewanne, Dusche



Internet und TV

Information zur Internet und TV Versorgung hier




Immobilie anfragen




Ihre persönliche Beratung

Dr. Theresa Goriany

DIE IMMOBILIE Beratungs- und Vermittlungs GmbH

tgoriany@die-immobilie.at

+436763469414