Neues Wohnbauprojekt in Aschach an der Steyr - jetzt informieren!
Wohnung
,
4421
Aschach an der Steyr
,
Gärtnerstraße 1
Lage der Immobilie
Die Immobilie in der Gärtnerstraße 4421 in Aschach an der Steyr überzeugt durch ihre zentrale Lage in Oberösterreich. Umgeben von idyllischer Natur und einer charmanten Gemeinde, profitieren Sie von einer hervorragenden Anbindung. Bus- und Bahnhaltestellen befinden sich in unmittelbarer Nähe, was den täglichen Pendelverkehr erleichtert. Genießen Sie die perfekte Kombination aus Ruhe und urbanem Leben – ideal für Familien und Berufstätige oder Senioren!Beschreibung der Immobilie
Willkommen in Ihrem neuen Zuhause in der malerischen Gemeinde Aschach an der Steyr! Diese exklusive Gartenwohnung im Erdgeschoss bietet Ihnen nicht nur einen erstklassigen Wohnstandard, sondern auch eine perfekte Kombination aus modernem Komfort und naturnaher Lage.
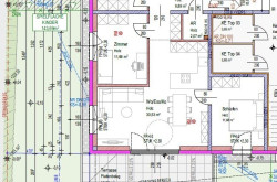
Mit einer großzügigen barrierefreien Wohnfläche von 85,98 m² und vier lichtdurchfluteten Zimmern ist diese Wohnung ideal für Familien, Paare oder auch für alle, die ein ruhiges und entspanntes Lebensumfeld suchen. Der Erstbezug ermöglicht es Ihnen, die Wohnung ganz nach Ihren Wünschen und Vorstellungen zu gestalten.
Das Herzstück dieser Immobilie ist der großzügige Garten, der Ihnen die Möglichkeit gibt, die Natur direkt vor Ihrer Tür zu genießen. Ob Sie ein schattiges Plätzchen zum Entspannen suchen oder einen kleinen Gemüsegarten anlegen möchten – hier sind Ihrer Kreativität keine Grenzen gesetzt. Die Terrasse lädt dazu ein, laue Sommerabende im Freien zu verbringen und gemeinsame Stunden mit Freunden oder der Familie zu genießen.
Die hochwertige Ausstattung der Wohnung lässt keine Wünsche offen. Edle Fliesen und stilvolles Parkett verleihen den Räumen ein modernes Ambiente, während die Fußbodenheizung für wohlige Wärme sorgt. Die offene Raumgestaltung schafft eine angenehme Atmosphäre, und die großen Fenster sorgen für eine optimale Lichtdurchflutung.
Das Badezimmer überzeugt mit einem Fenster, einer Badewanne und einer Dusche – hier können Sie sich nach einem langen Tag entspannen und erholen. Zudem stehen Ihnen zwei Stellplätze direkt vor der Wohnung zur Verfügung, was Ihnen zusätzlichen Komfort und Flexibilität bietet.
Mit einem Kaufpreis von 399.000,00 € ist diese Gartenwohnung ein attraktives Angebot auf dem Immobilienmarkt. Nutzen Sie die Gelegenheit, in eine Immobilie zu investieren, die nicht nur ein Zuhause ist, sondern auch Lebensqualität und Lebensfreude verspricht.
Lassen Sie sich diese Chance nicht entgehen! Kontaktieren Sie uns für weitere Informationen oder einen Besichtigungstermin. Ihr neues Zuhause in Aschach an der Steyr wartet auf Sie!
Infrastruktur / Entfernungen
Gesundheit
Arzt <2.725m
Apotheke <2.775m
Klinik <3.225m
Krankenhaus <2.725m
Kinder & Schulen
Schule <1.425m
Kindergarten <1.225m
Universität <7.225m
Höhere Schule <6.675m
Nahversorgung
Supermarkt <1.825m
Bäckerei <1.200m
Einkaufszentrum <5.300m
Sonstige
Bank <1.425m
Geldautomat <1.425m
Post <1.350m
Polizei <2.550m
Verkehr
Bus <75m
Bahnhof <200m
Flughafen <4.575m
Angaben Entfernung Luftlinie / Quelle: OpenStreetMap
Eckdaten
| Kaufpreis: | 399.000,00 € |
| Fläche: | 85,98 m² |
| Zimmer: | 4 |
Basisdaten zur Immobilie
| Objektnr: | 4417/1650 |
| Art: | Wohnung |
| Land: | Österreich |
| Baujahr: | 2027 |
| Zustand: | Erstbezug |
| Alter: | Neubau |
| Kaufpreis: | 399.000,00 € |
| Wohnfläche: | 85,98 m² |
| Zimmer: | 4 |
| Bäder: | 1 |
| WC: | 1 |
| Terrassen: | 1 |
| Stellplätze: | 1 |
| Garten: | 113,00 m² |
| Keller: | 3,65 m² |
| Heizwärmebedarf: | B 44,60 kWh/m²a |
| fGEE: | A+ 0,75 |
Ausstattung
Parkett, Fliesen, Fußbodenheizung, Südbalkon, Bad mit Fenster, Badewanne, Dusche, Parkplatz, Carport, Wasch/Trockenraum
Internet und TV
Information zur Internet und TV Versorgung hier
Ihre persönliche Beratung
Bmstr. Georg Altmüller
NEUWOG Immobilientreuhand und Liegenschaftserrichtungs GmbH
info@neuwog.at
+43 7227 2005340
+43 676 3388238
