2 Zimmer Wohnung in bester Lage - 1050 Wien!
Wohnung
- Etage,
1050
Wien
Lage der Immobilie
Die Siebenbrunnengasse 8 befindet sich im 5. Wiener Gemeindebezirk, Margareten, einer zentral gelegenen und lebendigen Gegend Wiens. Die Umgebung zeichnet sich durch eine Mischung aus historischen Altbauten und modernen Einrichtungen aus. In unmittelbarer Nähe finden Sie eine Vielzahl von Geschäften, Restaurants und Cafés, die zum Verweilen einladen. Die Verkehrsanbindung ist hervorragend: Die U-Bahn-Station Pilgramgasse (Linie U4) sowie die Straßenbahnlinien 62 und 65 und die Buslinien 12A, 13A und 14A sind in wenigen Minuten zu Fuß erreichbar. Diese bieten schnelle Verbindungen sowohl ins Stadtzentrum als auch in andere Bezirke Wiens. Für Erholung im Grünen sorgt der nahegelegene Einsiedlerpark, der zu Spaziergängen und Freizeitaktivitäten einlädt. Zudem befinden sich kulturelle Einrichtungen wie das Filmcasino und das Theater Scala in der Umgebung, die ein vielfältiges Programm bieten. Insgesamt bietet die Lage der Siebenbrunnengasse 8 eine ideale Kombination aus urbanem Leben, hervorragender Infrastruktur und kulturellem Angebot.Beschreibung der Immobilie
Eckdaten
| Gesamtmiete: | 948,70 € |
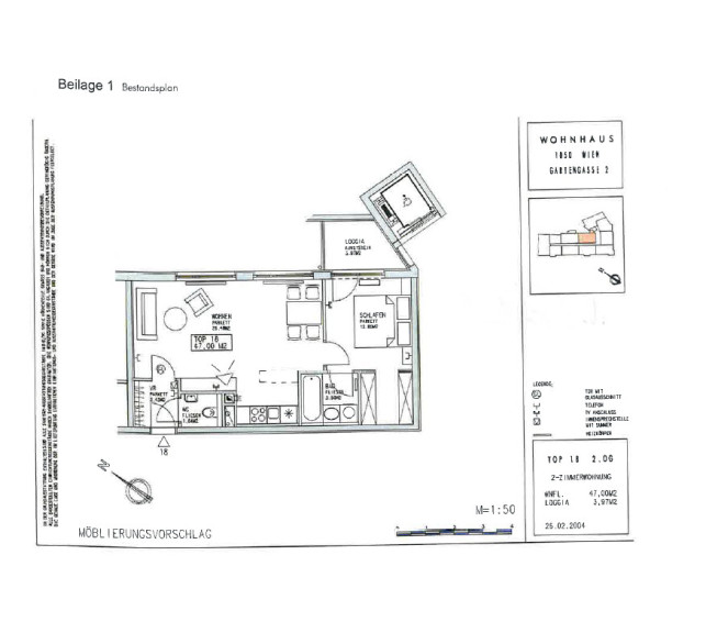
| Fläche: | 47,00 m² |
| Zimmer: | 2 |
Basisdaten zur Immobilie
| Objektnr: | 109256454_15 |
| Art: | Wohnung - Etage |
| Land: | Österreich |
| Baujahr: | 2004 |
| Zustand: | Gepflegt |
| Gesamtmiete: | 948,70 € |
| Kaltmiete (netto): | 756,70 € |
| Kaltmiete: | 948,70 € |
| Provision: | provisionsfrei für den Mieter |
| Betriebskosten: | 105,75 € |
| Wohnfläche: | 47,00 m² |
| Zimmer: | 2 |
| Bäder: | 1 |
| WC: | 1 |
| Heizwärmebedarf: | B 44,70 kWh/m²a |
| fGEE: | C 1,20 |
Ausstattung
Fliesen, Parkett, Zentralheizung, Einbauküche, Badewanne
Internet und TV
Information zur Internet und TV Versorgung hier
Ihre persönliche Beratung
Lara Steinbacher
ÖRAG Immobilien Vermittlung GmbH
lara.steinbacher@oerag.at
0043153473261
004366488962125
