Klimatisierte Dachgeschosswohnung mit sonniger Terrasse & perfekter Anbindung - ab 1.6.26 beziehbar!
Wohnung
,
1150
Wien
Lage der Immobilie
Anschützgasse nahe Schönbrunn, Mariahilfer StraßeBeschreibung der Immobilie
Liebe Wohnungssuchende!
Sofern Sie eine Besichtigung wünschen, füllen Sie bitte das Formular unter folgendem Link aus:
www.sulek.immobilien/besichtigung (bitte Michael Stadlmayr auswählen!). Da die Wohnung derzeit noch bewohnt wird, melden wir uns nach Absprache mit den aktuellen Mieter:innen, verlässlich zur Terminvereinbarung.
Wenn Sie einen Besichtigungstermin wünschen, teilen Sie uns bitte im Vorfeld folgendes mit:
- Einzugsdatum: Wann ist Ihr gewünschter Einzugstermin?
- Haushaltsgröße: Wie viele Personen möchten einziehen?
- Haushaltsnettoeinkommen: Was machen Sie beruflich? (min. erforderlich € 3.750,-)
- Gibt es Haustiere?
Herzlichen Dank!
*************************************
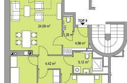
Die Wohnung.
Diese schöne 74m² große 3 Zimmer Wohnung besticht vor allem durch die vielen Fensterflächen und die damit verbundene Helligkeit und befindet sich im obersten Stockwerk dieses gepflegten und modernisierten Altbaus. Ins Dachgeschoss gelangen Sie bequem mittels Lift. Über den Eingangsbereich mit Zugang zur separaten Gäste-Toilette, gelangen Sie geradewegs in das ca. 24 m² große Wohnzimmer mit Ausgang auf die westseitige Innenhof-Terrasse, welche dazu einlädt, den Tag gemütlich ausklingen zu lassen. Durch das Wohnzimmer gelangen Sie weiters zu einem Flur, über den Sie die beiden Schlafzimmer (jeweils ca. 12/14 m² groß) separat betreten können. Das Badezimmer mit Duschkabine und WC, sowie die moderne, vollausgestattete Küche sind ebenfalls vom Flur aus zu erreichen. Ein praktisches Kellerabteil rundet das Angebot ab.
Die Wohnung besticht durch den gepflegten Allgemeinzustand, sowie durch die hochwertige Ausstattung: Klimageräte in allen Aufenthaltsräumen, Echtholz-Parkettböden, Sicherheitstüre, Rauchmeldeanlage, etc.. Die Beheizung der Wohnung erfolgt über eine Zentralheizung und die Warmwasser-Aufbereitung über einen Elektroboiler.
Wichtig zu wissen:
- Das Heizkostenakonto beträgt derzeit € 109,25 (zzgl. USt.) und ist bereits in der Gesamtmiete in Höhe von € 1.626,10 inkludiert!
- Um mit regelmäßigen und lückenlosen Mietzahlungen zu rechnen, verlangt der Eigentümer zur Bonitätsprüfung einen Einkommensnachweis (dieletzten drei Gehaltszettel oder bei Selbstständigen den aktuellsten Einkommenssteuerbescheid). Bei Mietern ohne eigenes Einkommen wird eine Bürgschaft mit entsprechendem Einkommensnachweis verlangt.
Die Lage.
Die Liegenschaft weist eine perfekte öffentliche Anbindung auf, Nähe zu Grünflächen und befindet sich zudem in einer ruhigen Einbahnstraße. In unmittelbarer Nähe befinden zahlreiche Stationen der Straßenbahnlinien 9, 10, 49 (Hütteldorf), 52 (Baumgarten/Westbahnhof), 60 (Rodaun/Westbahnhof), sowie eine Station der Buslinie 57A (Burgring). So erreichen Sie z.B. den Westbahnhof nach nur 5 Minuten Fahrtzeit. Die U-Bahn Station U4 Schönbrunn befindet sich ebenfalls in der Nähe und ist gut fußläufig erreichbar (ca. 600m) und auch mit dem Auto sind Sie ideal an das Wiener Verkehrsnetz angebunden: sowohl die Westeinfahrt, A23, als auch Innenstadt sind schnell erreicht.
Geschäfte des täglichen Bedarfs erreichen Sie problemlos zu Fuß - nur wenige Schritte entfernt befindet sich ein Supermarkt (Billa), ebenso diverse Lokale/Restaurants. Auch Kindergärten, Schulen, Banken sind in unmittelbarer Nähe.
Für Freizeitaktivitäten und sportliche Betätigung bietet sich der nahegelegene Gustav-Jäger-Park, in welchem sich auch das technische Museum befindet, sowie der Auer-Welsbach-Park an und mit dem Schlosspark Schönbrunn liegt eine der schönsten, historisch bedeutendsten Grünflächen Wiens nur einen Katzensprung entfernt.
*************************************
Sollten Sie nach Durchsicht des Inserats eine Besichtigung wünschen, bitten wir um Anfrage über das Kontaktformular und Nennung ein paar konkreter Terminvorschläge.
Noch nichts gefunden?
Wir informieren Sie als Erste/r über passende Immobilienangebote.
Legen Sie jetzt Ihren individuellen Suchagenten über folgenden Link an.
Wir senden Ihnen geeignete Immobilien unverbindlich vorab zu.
Suchagent anlegen - https://sulek-immobilien.service.immo/registrieren/de
Wir weisen darauf hin, dass zwischen dem Vermittler und dem zu vermittelnden Dritten ein familiäres oder wirtschaftliches Naheverhältnis besteht.
Der Immobilienmakler erklärt, dass er – entgegen dem in der Immobilienwirtschaft üblichen Geschäftsgebrauch des Doppelmaklers – einseitig nur für den Vermieter tätig ist.
Infrastruktur / Entfernungen
Gesundheit
Arzt <500m
Apotheke <500m
Klinik <1.000m
Krankenhaus <2.000m
Kinder & Schulen
Schule <500m
Kindergarten <500m
Universität <1.000m
Höhere Schule <2.000m
Nahversorgung
Supermarkt <500m
Bäckerei <500m
Einkaufszentrum <1.000m
Sonstige
Geldautomat <500m
Bank <500m
Post <500m
Polizei <1.000m
Verkehr
Bus <500m
U-Bahn <500m
Straßenbahn <500m
Bahnhof <500m
Autobahnanschluss <3.500m
Angaben Entfernung Luftlinie / Quelle: OpenStreetMap
Eckdaten
| Gesamtmiete: | 1.626,10 € |
| Fläche: | 74,32 m² |
| Zimmer: | 3 |
Basisdaten zur Immobilie
| Objektnr: | 26298 |
| Art: | Wohnung |
| Land: | Österreich |
| Baujahr: | 1900 |
| Zustand: | Gepflegt |
| Alter: | Altbau |
| Gesamtmiete: | 1.626,10 € |
| Kaltmiete (netto): | 1.155,45 € |
| Kaltmiete: | 1.359,09 € |
| Provision: | Gemäß Erstauftraggeberprinzip bezahlt der Abgeber die Provision. |
| Betriebskosten: | 203,64 € |
| Heizkosten: | 109,25 € |
| MwSt Gesamt: | 157,76 € |
| Wohnfläche: | 74,32 m² |
| Zimmer: | 3 |
| Bäder: | 1 |
| WC: | 2 |
| Balkone: | 1 |
| Heizwärmebedarf: | C 91,30 kWh/m²a |
| fGEE: | D 2,17 |
Ausstattung
Parkett, Fliesen, Gas, Zentralheizung, Einbauküche, Personenaufzug, Westbalkon, Dusche
Internet und TV
Information zur Internet und TV Versorgung hier
Ihre persönliche Beratung
Michael Stadlmayr
Mittelsmann Philipp Sulek GmbH
ms@sulek-immobilien.at
+43 676 325 27 15
+43 676 325 27 15
