KARMELITERVIERTEL - möblierte Bürofläche mit 7 Arbeitsplätzen in den Art & Garden Offices
Büro / Praxis
- Bürofläche,
1020
Wien
Lage der Immobilie
Karmeliterviertel, Schottenring, AugartenBeschreibung der Immobilie
Nähe Karmelitermarkt: moderne Bürofläche mit 7 Arbeitsplätzen in Top Lage
Nachdem der langjährige Mieter aus der Bürogemeinschaft ausgezogen ist, warten, in absolut zentraler Lage und nur ca. 320 Meter von der U2 /U4 (Station Herminengasse), 7 Schreibtische in 2 Räumen auf eine neue Aufgabe!
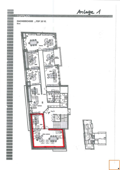
In dem 2013 generalsanierten Bürohaus ART & GARDEN Offices - dem sogenannten NITSCH Haus (benannt nach dessen künstlerischen Gestalter Prof. Herman Nitsch) kommt diese ca. 70m² große Bürofläche zuzüglich Gemeinschaftsräumen zur Vermietung.
Raumaufteilung der hellen und freundlichen Büroeinheiten:
- Büro 1 mit 5 Schreibtischen - Türe in das Stiegenhaus
- Büro 2 mit 2 Schreibtischen - Glastüre in den gemeinsamen Gangbereich
- getrennte WC-Anlage
- Gemeinschaftsküche
- gemeinsamer Gangbereich
Ausstattung:
- Klimaanlage und Bodenheizung
- 7 großzügige Arbeitsplätze (Schreibtische) mit Bürostühlen und diversen Büromöbel
- Beleuchtungskörper an den Decken
- Beschattung durch Außenjalousien
- geräumige WC-Anlage mit Waschbecken
- Gemeinschaftsküche (Kühlschrank, Mikrowelle, Kaffeemaschine....)
- Personenlift
Die Gesamtmiete beinhaltet die Betriebskosten sowie das Akonto für Heizung, Kühlung und Strom und die gesetzliche Umsatzsteuer!
Es besteht die Möglichkeit einen Parkplatz in der hauseigenen Parkgarage anzumieten - die Kosten dafür betragen derzeit monatlich € 140,00 zzgl. Ust.
Infrastruktur:
- Lage in unmittelbarer Nähe der U2 / U4 sowie der Straßenbahnlinien 2 / 31 und der Buslinie 5A
- sämtliche Einkaufsmöglichkeiten in unmittelbarer Umgebung (Karmelitermarkt) - BILLA im Haus
- Praktischer Arzt im Haus
- *** Hotel im gleichen Gebäudekomplex
- **** Hotel Radisson Red ca. 320m entfernt bei der U2 / U4 Station Herminengasse / Schottenring
- Entspannung im nahegelegenen Augarten
Der Hauptmieter ist ein international tätiges Unternehmen welches mit Papier und Holzprodukten handelt.
Sollten Sie eine Information nicht vorfinden, die Ihnen wichtig ist, übermitteln wir diese gerne bzw. recherchieren für Sie.
Ihr Team von Elisabeth Rohr Real Estate
Infrastruktur / Entfernungen
Gesundheit
Arzt <500m
Apotheke <500m
Klinik <500m
Krankenhaus <1.000m
Kinder & Schulen
Schule <500m
Kindergarten <500m
Universität <1.000m
Höhere Schule <1.000m
Nahversorgung
Supermarkt <500m
Bäckerei <500m
Einkaufszentrum <2.000m
Sonstige
Geldautomat <500m
Bank <500m
Post <500m
Polizei <500m
Verkehr
Bus <500m
U-Bahn <500m
Straßenbahn <500m
Bahnhof <500m
Autobahnanschluss <2.500m
Angaben Entfernung Luftlinie / Quelle: OpenStreetMap
Eckdaten
| Kaltmiete (netto): | 2.130,00 € |
| Fläche: | 70,00 m² |
| Zimmer: | 2 |
Basisdaten zur Immobilie
| Objektnr: | 583452 |
| Art: | Büro / Praxis - Bürofläche |
| Land: | Österreich |
| Baujahr: | 2013 |
| Zustand: | Gepflegt |
| Möbliert: | Voll |
| Alter: | Neubau |
| Kaltmiete (netto): | 2.130,00 € |
| Kaltmiete: | 2.435,00 € |
| Provision: | 3 Bruttomonatsmieten zzgl. 20% USt. |
| Betriebskosten: | 185,00 € |
| Heizkosten: | 65,00 € |
| MwSt Gesamt: | 500,00 € |
| Bürofläche: | 70,00 m² |
| Zimmer: | 2 |
| WC: | 2 |
Ausstattung
Teppichboden, Fußbodenheizung, Personenaufzug, Teeküche
Internet und TV
Information zur Internet und TV Versorgung hier
Ihre persönliche Beratung
Nina Kathan
Elisabeth Rohr Real Estate e.U.
office@rohr-real-estate.com
+43 1 585 36 63 - 14
+43 664 516 5466
