** großzügige helle Gewerbefläche (Büro / Lager / Werkstatt) mit vielseitigem Potenzial, Extras und einem Stellplatz in Frequenzlage - Nähe Augarten **
Büro / Praxis
,
1200
Wien,Brigittenau
Lage der Immobilie
Rauscherstraße, Bäuerlegasse, Wallensteinstraße, AugartenBeschreibung der Immobilie
Werte InteressentInnen!
Sofern Sie eine Besichtigung wünschen, füllen Sie bitte das Formular unter folgendem Link aus:
www.sulek.immobilien/besichtigung (bitte Herrn Bilgili auswählen!).
Herzlichen Dank!
*************************************
Gewerbefläche.
Zum Verkauf gelangt ein Geschäftslokal mit Straßenfront in der Rauscherstraße, 1200 Wien. Vielseitig Nutzbar: Ideal als Atelier-/Büro-/Studiogemeinschaft, Einzelhandel, Pop Up -nahezu keine Grenzen gesetzt.
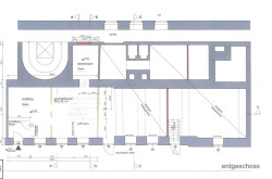
Die Liegenschaft umfasst mehrere Einheiten und bietet eine ideale Kombination aus Büro-, Werkstatt- und Lagerflächen. Neben einem großzügigen Souterrain für Lager- und Werkstattzwecke stehen ein helles Erdgeschoss mit Galerie und attraktiver Glasfläche zur Verfügung sowie zwei separates Büro, wodurch sich flexible Nutzungsmöglichkeiten für unterschiedlichste Geschäftsmodelle ergeben.
Highlights der Immobilie:
- Büro mit großzügiger Glasfläche und offenem Raumgefühl
- vielseitige Nutzungsmöglichkeit (Büro, Werkstatt, Lager)
- Heller Empfangsbereich mit Windfang
- Galerie (zusätzlicher Büro-/Arbeitsfläche)
- zwei Straßeneingänge (EG und Souterrain) sowie über Stiegenhaus
- funktionale Raumaufteilung mit mehreren getrennten Einheiten
- Zwei WC-Anlagen
- Teeküche vorhanden (Spüle, Kühlschrank und ein Geschirrspüler)
- gepflegter Zustand
- vollmöbliert
- Stellplatz im Haus (Carport - siehe Foto rote Markierung)
Flächenaufstellung / Eckdaten:
- Flächenaufstellung: rd. 358 m² verteilt auf Kellergeschoss, Erdgeschoss und Hochparterre
- mehrere Top Einheiten zusammengelegt:
- Top 1-3 Souterrain (Büro, Werkstatt u. Lager + 1 WC)
- Top 7+8 Erdgeschoss / Mezzanin mit Büro, Teeküche, WC und Galerie,
- Top 9: Hochparterre (Büro/Wohnung)
- Serverraum, Lagermöglichkeiten
- Widmung: Gewerbe + Wohnung
- Gasetagenheizung
- gute Frequenzlage
- Nicht Barrierefrei!
Gut zu Wissen:
- Die Abrechnung erfolgt noch Tops
- Aktuelle Rücklagenstand: € 54.128,94 (Stichtag: 19.3.2026)
Lage/Infrastruktur.
Die Bäuerlegasse / Rauschstraße zeichnet sich durch ihre zentrale, aber dennoch ruhige Wohnlage aus. Besonders attraktiv ist die unmittelbare Nähe zum Augarten, die nur wenige Gehminuten entfernt ist.
Die Nahversorgung ist als sehr gut zu beschreiben. Alles für den täglichen Bedarf ist fußläufig erreichbar:
-
Supermärkte: Ein Billa (ca. 3 Min - 230m) und ein Spar befinden sich in direkter Umgebung (ca. 3–5 Gehminuten). Weitere Discounter wie Lidl (ca. 3min - 200m), Penny (ca. 10min - 700m) Hofer sind ebenfalls schnell erreichbar. Hannovermarkt (700 m - 10 Min zu Fuß entfernt)
-
Gastronomie: Rund um den nahegelegenen Wallensteinplatz / Wallensteinstraße und in den Seitengassen finden sich zahlreiche Cafés & Restaurants.
-
Bildung & Gesundheit: Kindergärten, Volksschulen sowie Apotheken und praktische Ärzte sind im Viertel zahlreich vorhanden.
-
Freizeit: Der Augarten (ca. 400 m entfernt) und Donaukanal (ca. 850 m) bietet Sportmöglichkeiten, weitläufige Laufstrecken und Erholungsflächen. Die Donauinsel ist mit dem Rad oder den Öffis in ca. 10–15 Minuten erreichbar.
Die Anbindung an das Wiener Öffi-Netz ist sehr gut, da Sie sowohl U-Bahn- als auch Straßenbahnlinien in kurzer Distanz haben. Mit der Straßenbahnlinie 5 erreichen Sie den Praterstern (U1, U2, S-Bahn) in nur wenigen Minuten. Die Linie 33 bringt Sie direkt zum Schottentor (Universität/Zentrum):
- Straßenbahn 5 ( 85 m - 1 Gehminute) , 12, 31, 33 ( 600 m - 9 Minuten)
- U-Bahn U4 (Friedensbrücke - 900 m - rd. 13 Minuten Gehzeit; 3 Stationen mit der Straßenbahn)
- Buslinien 5A ( 85 m - 1 Gehminute), 5B - Nightline N31( 600 m - 9 Minuten)
*************************************
Sollten Sie nach Durchsicht des Inserats eine Besichtigung wünschen, bitten wir um Anfrage über das Kontaktformular und Nennung ein paar konkreter Terminvorschläge.
*************************************
Die zur Verfügung gestellten Informationen beruhen auf die Angaben des Abgebers, der Gemeinde und der Hausverwaltung bzw. der jeweiligen Professionisten. Für die Richtigkeit und Vollständigkeit der Angaben kann keine Gewähr bzw. Haftung übernommen werden.
Noch nichts gefunden?
Wir informieren Sie als Erste/r über passende Immobilienangebote.
Legen Sie jetzt Ihren individuellen Suchagenten über folgenden Link an.
Wir senden Ihnen geeignete Immobilien unverbindlich vorab zu.
Suchagent anlegen - https://sulek-immobilien.service.immo/registrieren/de
Der Vermittler ist als Doppelmakler tätig.
Infrastruktur / Entfernungen
Gesundheit
Arzt <500m
Apotheke <500m
Klinik <1.000m
Krankenhaus <1.000m
Kinder & Schulen
Schule <500m
Kindergarten <500m
Universität <1.000m
Höhere Schule <1.000m
Nahversorgung
Supermarkt <500m
Bäckerei <500m
Einkaufszentrum <1.000m
Sonstige
Geldautomat <500m
Bank <500m
Post <500m
Polizei <500m
Verkehr
Bus <500m
U-Bahn <1.000m
Straßenbahn <500m
Bahnhof <1.000m
Autobahnanschluss <1.500m
Angaben Entfernung Luftlinie / Quelle: OpenStreetMap
Eckdaten
| Kaufpreis: | 741.000,00 € |
| Fläche: | 358,00 m² |
| Zimmer: | 3 |
Basisdaten zur Immobilie
| Objektnr: | 26293 |
| Art: | Büro / Praxis |
| Land: | Österreich |
| Baujahr: | 1897 |
| Zustand: | Gepflegt |
| Möbliert: | Voll |
| Alter: | Altbau |
| Kaufpreis: | 741.000,00 € |
| Kaufpreis / m²: | auf Anfrage |
| Provision: | 3% des Kaufpreises zzgl. 20% USt. |
| Betriebskosten: | 488,09 € |
| MwSt Gesamt: | 121,00 € |
| Nutzfläche: | 358,00 m² |
| Zimmer: | 3 |
| WC: | 2 |
| Stellplätze: | 1 |
| Heizwärmebedarf: | D 109,10 kWh/m²a |
| fGEE: | D 2,21 |
Ausstattung
Fliesen, Parkett, Gas, Etagenheizung, Carport, Teeküche
Internet und TV
Information zur Internet und TV Versorgung hier
Ihre persönliche Beratung
Kenan Bilgili
Mittelsmann Philipp Sulek GmbH
kb@sulek-immobilien.at
+43 676 64 33 124
+43 664 354 11 44
