Sichtbar. Zentral. Erfolgreich – deine neue Geschäftsfläche in 2191 Gaweinstal
Büro / Praxis
,
2191
Gaweinstal
,
Wiener Straße
Beschreibung der Immobilie
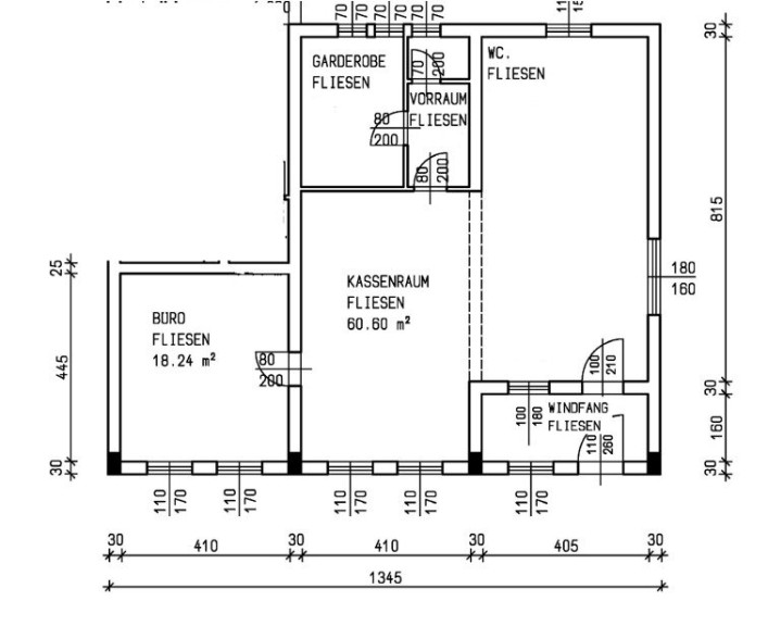
Zur Vermietung gelangt eine vielseitig nutzbare Geschäftsfläche mit ca. 100 m² in Gaweinstal. Die Immobilie eignet sich ideal als Verkaufsraum oder Büro und bietet durch ihre großzügige Raumaufteilung zahlreiche Nutzungsmöglichkeiten.
Der große, helle Hauptraum schafft eine angenehme Arbeits- bzw. Verkaufsatmosphäre und lässt sich flexibel gestalten. Eine vorhandene Einbauküche sorgt für zusätzlichen Komfort im Arbeitsalltag. Ein WC ist ebenfalls vorhanden.
Ob Einzelhandel, Dienstleistungsbetrieb oder Büro – diese Fläche bietet die perfekte Grundlage für Ihr Geschäft.
Auf dem Grundstück befindet sich ein eigener, großer Kunden- und Mitarbeiterparkplatz.
Das Mietobjekt besticht nicht nur durch seine hochwertige Einrichtung, sondern vor allem auch durch die gute Erreichbarkeit: Innerhalb von nur 5 Autominuten gelangt man zur Nordautobahn A5! Bis zur Stadtgrenze Wien sind es nur 20 Autominuten! Nahversorger und diverse Geschäftslokale sind in unmittelbarer Umgebung vorhanden.
Bei Interesse oder für weitere Informationen freue ich mich auf Ihre Kontaktaufnahme!
Hinweis gemäß Energieausweisvorlagegesetz: Ein Energieausweis wurde vom Eigentümer bzw. Verkäufer, nach unserer Aufklärung über die generell geltende Vorlagepflicht, sowie Aufforderung zu seiner Erstellung noch nicht vorgelegt. Daher gilt zumindest eine dem Alter und der Art des Gebäudes entsprechende Gesamtenergieeffizienz als vereinbart. Wir übernehmen keinerlei Gewähr oder Haftung für die tatsächliche Energieeffizienz der angebotenen Immobilie.
Wir weisen darauf hin, dass zwischen dem Vermittler und dem zu vermittelnden Dritten ein familiäres oder wirtschaftliches Naheverhältnis besteht.
Der Vermittler ist als Doppelmakler tätig.
Infrastruktur / Entfernungen
Gesundheit
Arzt <250m
Apotheke <250m
Kinder & Schulen
Kindergarten <250m
Schule <500m
Nahversorgung
Supermarkt <250m
Bäckerei <7.750m
Sonstige
Bank <250m
Geldautomat <2.500m
Polizei <250m
Post <500m
Verkehr
Bus <250m
Autobahnanschluss <1.500m
Bahnhof <3.250m
Angaben Entfernung Luftlinie / Quelle: OpenStreetMap
Eckdaten
| Kaltmiete (netto): | 850,00 € |
| Fläche: | 100,00 m² |
| Zimmer: | 3 |
Basisdaten zur Immobilie
| Objektnr: | 6211/262 |
| Art: | Büro / Praxis |
| Land: | Österreich |
| Zustand: | Gepflegt |
| Kaltmiete (netto): | 850,00 € |
| Kaltmiete: | 1.050,00 € |
| Provision: | 3 Bruttomonatsmieten zzgl. 20% USt. |
| Betriebskosten: | 200,00 € |
| MwSt Gesamt: | 210,00 € |
| Nutzfläche: | 100,00 m² |
| Bürofläche: | 100,00 m² |
| Zimmer: | 3 |
| WC: | 1 |
Ausstattung
Fliesen, Teppichboden, Einbauküche, Bad mit Fenster
Internet und TV
Information zur Internet und TV Versorgung hier
Ihre persönliche Beratung
Julia Kolarik
JuNi Immobilien GmbH
immo@juni.at
06607370504
+43 660 737 05 04
