Beschreibung der Immobilie
In begehrter Lage im Innsbrucker Stadtteil Hötting, unweit des Botanischen Garten, gelangt diese charmante Altbauwohnung zum Verkauf. Die hervorragende Erreichbarkeit sowie die Nähe zur Universität Innsbruck und zur Universitätsklinik Innsbruck machen diese Immobilie besonders attraktiv für Eigennutzer.
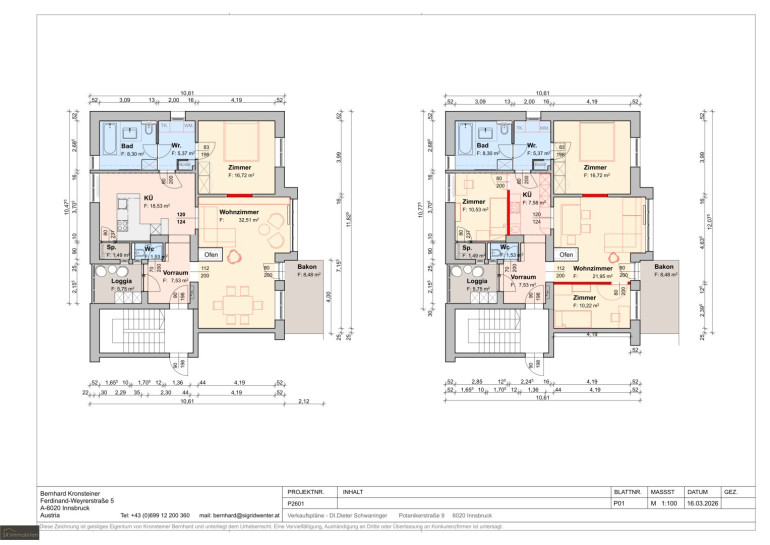
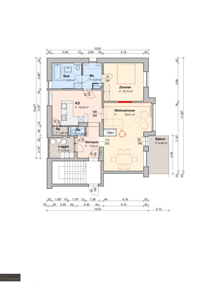
Die Wohnung präsentiert sich aktuell als großzügige 2-Zimmer-Wohnung, bietet jedoch mit geringem Aufwand die Möglichkeit zur Umgestaltung in eine 3- oder 4-Zimmer-Wohnung – ideal für Familien, Wohngemeinschaften oder flexible Nutzungskonzepte.
Ein besonderes Highlight ist der einladende Wohnbereich mit stilvollem Kachelofen, der für eine warme und behagliche Atmosphäre sorgt. Von hier aus gelangt man auf den Balkon, der mit einem herrlichen Blick ins Grüne sowie Richtung Stadt begeistert – ein perfekter Ort zum Entspannen.
Die Ausstattung überzeugt mit einer gelungenen Kombination aus klassischem Charme und modernen Elementen:
- Eichenparkettboden im Wohnbereich
- Naturstein im Badezimmer
- Modernisiertes Bad (2009/2010)
- Erneuerte Elektrik im Zuge der Sanierung
Die Beheizung erfolgt über eine Gasbrennwert-Therme (Baujahr 2025), während die Warmwasseraufbereitung getrennt über einen Elektroboiler erfolgt.
Zusätzlichen Komfort bieten ein eigenes Kellerabteil sowie ein großzügiges Dachbodenabteil, die ausreichend Stauraum schaffen.
Diese Wohnung vereint Altbauflair, eine ausgezeichnete Lage und vielseitige Nutzungsmöglichkeiten – eine seltene Gelegenheit in einer der gefragtesten Wohngegenden Innsbrucks.
Kaufnebenkosten:
3,50 % Grunderwerbsteuer
1,10 % Eintragung Eigentumsrecht
3,00 % + 20 % USt. Vermittlungshonorar
1,50 % + 20 % USt. Kaufvertragserrichtung Notar Dr. Staggl
Beglaubigungskosten
Wichtiger Hinweis
Wir weisen darauf hin, dass wir gemäß unserer Nachweispflicht gegenüber dem Auftraggeber nur Anfragen mit vollständiger Angabe Ihrer persönlichen Daten, Vor- und Nachname, Telefonnummer und E-Mailadresse bearbeiten können.
Rechtlicher Hinweis
Dieses freibleibende Angebot wird Ihnen von der SRI GmbH, welche als Makler tätig ist, überreicht. Alle Angaben erfolgen aufgrund der Informationen und Unterlagen, welche uns vom Eigentümer oder/und von Dritten übermittelt wurden, und sind ohne Gewähr.
Noch nichts gefunden? Wir informieren Sie über geeignete Immobilienangebote noch vor allen anderen.
Legen Sie jetzt Ihren individuellen Suchagenten unter folgendem Link an. Wir schicken Ihnen passende Immobilien exklusiv vorab zu.
Suchagent anlegen - https://sri.service.immo/registrieren/de
Infrastruktur / Entfernungen
Gesundheit
Arzt <500m
Apotheke <500m
Klinik <1.500m
Krankenhaus <1.000m
Kinder & Schulen
Schule <500m
Kindergarten <500m
Universität <500m
Höhere Schule <500m
Nahversorgung
Supermarkt <500m
Bäckerei <500m
Einkaufszentrum <1.000m
Sonstige
Bank <500m
Geldautomat <500m
Polizei <500m
Post <1.000m
Verkehr
Bus <500m
Straßenbahn <500m
Autobahnanschluss <2.000m
Bahnhof <1.000m
Flughafen <3.000m
Angaben Entfernung Luftlinie / Quelle: OpenStreetMap
Eckdaten
| Kaufpreis: | 669.000,00 € |
| Fläche: | 98,20 m² |
Basisdaten zur Immobilie
| Objektnr: | 7473/405 |
| Art: | Wohnung |
| Land: | Österreich |
| Alter: | Altbau |
| Kaufpreis: | 669.000,00 € |
| Provision: | 3% des Kaufpreises zzgl. 20% USt. |
| Betriebskosten: | 316,66 € |
| Wohnfläche: | 98,20 m² |
| Bäder: | 1 |
| WC: | 2 |
| Balkone: | 1 |
| Heizwärmebedarf: | C 72,00 kWh/m²a |
| fGEE: | C 1,65 |
Ausstattung
Gas, Etagenheizung, Bad mit Fenster, Badewanne
Internet und TV
Information zur Internet und TV Versorgung hier
Ihre persönliche Beratung
Reinhard Siller
SRI
info@sri.co.at
+43 664 48 11 153
+43 664 48 11 153
