Lage der Immobilie
Die Liegenschaft Muthgasse 50 befindet sich im Herzen des 19. Bezirks, einem der gefragtesten und dynamischsten Entwicklungsgebiete Wiens. Das Areal liegt zwischen Donaukanal, Heiligenstadt, und der Döblinger Hauptstraße und profitiert von einer außergewöhnlich starken Infrastruktur, hervorragender öffentlicher Anbindung und einem wachsenden, hochwertigen Nutzungsmix. Top‑Anbindung an den öffentlichen Verkehr U4 Heiligenstadt in wenigen Gehminuten erreichbar S‑Bahn & Regionalzüge direkt am Bahnhof Heiligenstadt Straßenbahn & Buslinien in unmittelbarer Nähe Direkte Verbindung in die Wiener Innenstadt und zum Knotenpunkt Spittelau Hervorragende Erreichbarkeit für Individualverkehr Schnelle Anbindung an die B14 (Heiligenstädter Lände) Direkte Zufahrt zur A22 Donauuferautobahn 270 Tiefgaragenplätze im Projektumfeld, inkl. E‑LadestationenBeschreibung der Immobilie
Gastronomie & Nahversorgung im neuen Lebensraum Muthgasse – über 300 Wohnungen, Kindergarten & Studentenwohnheim mit 300 Plätzen
Die Gastronomie- und Nahversorgungsflächen befinden sich im Erdgeschoss eines modernen, architektonisch hochwertigen Wohn- und Geschäftsensembles. Mit über 300 neu entstehenden Wohnungen, einem Kindergarten mit 6 Gruppen sowie einem Wohnheim entsteht ein vielfältiges, urbanes Quartier, das eine starke, verlässliche Grundfrequenz garantiert.
👥 Starke, ganztägige Frequenz durch vielfältige Nutzergruppen
Die Kombination aus Wohnen, Bildung, Arbeiten und Nahversorgung schafft ein durchgehend belebtes Umfeld. Die Gastronomie profitiert von einer außergewöhnlich breiten Zielgruppe:
-
über 300 Wohnungen* direkt im Quartier
-
Kindergarten mit 6 Gruppen – Eltern, Kinder, Pädagog*innen, tägliche Bring- und Abholfrequenz
-
Wohnheim – zusätzliche Grundauslastung und Abendfrequenz
-
Mitarbeiter*innen der umliegenden Büro- und Forschungsstandorte
-
Studierende der nahegelegenen Universitätsbereiche
-
Laufkundschaft durch die Nähe zur U4 Heiligenstadt
-
Besucher*innen des öffentlichen Platzes mit Wasserspielen und Aufenthaltszonen
Diese Mischung sorgt für kontinuierliche Frequenz vom frühen Morgen bis in den Abend – ideal für Frühstück, Mittagsgeschäft, Nachmittagsbetrieb und Abendgastronomie.
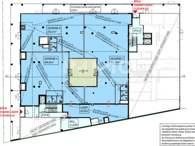
Flexible Gastronomieflächen mit Außenbereich
Die drei Einheiten im Erdgeschoss bieten ideale Voraussetzungen für unterschiedliche Betreiberkonzepte:
-
Gewerbe A – 266,54 m²
-
Gewerbe B – 239,21 m²
-
Gewerbe C – 368,12 m²
-
Gastgartenpotenzial – 83,80 m²
Großzügige Glasfronten, klare Grundrisse und moderne technische Vorbereitungen ermöglichen eine individuelle Gestaltung und hohe Sichtbarkeit. Lager- und Müllräume befinden sich in unmittelbarer Nähe, was den Betrieb effizient unterstützt.
Urbanes, hochwertiges Umfeld
Der vorgelagerte Platz mit Wasserspielen, Sitzbereichen und Grünflächen schafft eine einladende Atmosphäre und erhöht die Aufenthaltsqualität. Die Gastronomie profitiert von:
-
attraktiven Außenbereichen
-
hoher Sichtbarkeit im Quartier
-
moderner Architektur
-
einem wachsenden, zukunftsorientierten Stadtteil
22,- Miete inkl. BK und inkl. ( Ust.)
Wir weisen darauf hin, dass zwischen dem Vermittler und dem zu vermittelnden Dritten ein familiäres oder wirtschaftliches Naheverhältnis besteht.
Der Vermittler ist als Doppelmakler tätig.
Infrastruktur / Entfernungen
Gesundheit
Arzt <500m
Apotheke <500m
Klinik <1.500m
Krankenhaus <2.000m
Kinder & Schulen
Schule <500m
Kindergarten <500m
Universität <500m
Höhere Schule <1.000m
Nahversorgung
Supermarkt <500m
Bäckerei <500m
Einkaufszentrum <500m
Sonstige
Geldautomat <500m
Bank <500m
Post <500m
Polizei <1.500m
Verkehr
Bus <500m
U-Bahn <500m
Straßenbahn <500m
Bahnhof <500m
Autobahnanschluss <500m
Angaben Entfernung Luftlinie / Quelle: OpenStreetMap
Eckdaten
| Kaltmiete (netto): | 3.585,00 € |
| Fläche: | 239,21 m² |
Basisdaten zur Immobilie
| Objektnr: | 1939/217225 |
| Art: | Gastgewerbe - Gastronomie/Restaurant |
| Land: | Österreich |
| Kaltmiete (netto): | 3.585,00 € |
| Kaltmiete: | 3.585,00 € |
| Miete / m²: | 15,00 € |
| Provision: | 3 Bruttomonatsmieten zzgl. 20% USt. |
| Nutzfläche: | 239,21 m² |
| Verkaufsfläche: | 239,21 m² |
Internet und TV
Information zur Internet und TV Versorgung hier
Ihre persönliche Beratung
Roman Schmatzer
IMMOcontract Immobilien Vermittlung GmbH
R.Schmatzer@IMMOcontract.at
+43 664 4360663
+43 664 4360663
