Wohnen, wo andere ihre Freizeit genießen; Traumhaftes Gartendomizil bei der Alten Donau mit 235m² Freifläche. Nur 400 Meter zum Wassser!
Wohnung
- Terrassenwohnung,
1220
Wien
Lage der Immobilie
Die Lage an der Alten Donau zählt zu den beliebtesten Wohnlagen Wiens. Hier finden Sie alles was Ihr Herz begehrt, angefangen von Lokalitäten und Restaurants direkt am Wasser, mehrere Bootsverleiher sowie genügend idyllische Fleckchen, an denen Sie entspannen und verweilen können. Nicht weit entfernt befindet sich das Donauzentrum/ Donauplex, welches eine Vielzahl an Geschäften bietet und für reichlich Entertainment sorgt. Schulen, Ärzte und Geschäfte des täglichen Bedarfs befinden sich ein paar Fahrminuten entfernt.Beschreibung der Immobilie
Baurechtsliegenschaft in Top Lage!
In einer kleinen Wohnhausanlage mit nur 7 Wohneinheiten wird eine fast uneinsichtige 3-Zimmerwohnung mit insgesamt 235 m² Freifläche zum Kauf angeboten, in der sich das Heimkehren wie das Ankommen im Urlaub anfühlt.
Nehmen Sie doch Ihre Reisekoffer und ziehen Sie noch diesen Sommer Nähe der Alten Donau ein...
Und wenn Sie keine Lust zum Rausgehen haben, genießen Sie einfach entspannte Tages- und Abendstunden im eigenen designten Garten im mediterranen Stil.
Da ja bekanntlich Träume und Geschmäcker vielfältig und individuell sind, könnte der Verkäufer, der Baumeister ist, Änderungswünsche noch zeitnah in Topqualität umsetzen.
Die Wohnung selbst und die zugehörenden Außenanlagen mit Garten sind neuwertig und haben nichts mehr mit dem Baujahr und ursprünglichen Zustand und Ausstattung gemeinsam, denn sie wurden zwischen 2020 - 2022 nicht nur renoviert, sondern durch die Eigentümer/Baumeister mit eigener Baufirma, Gartenarchitekten und Gärtner liebevoll und aufwendig neu gestaltet.
Beim aufmerksamen Hinsehen erkennt man, dass die Wohnung ( nach der Umgestaltung ) über 2 Toiletten verfügt, eine davon getrennt vom Bad, der Eingangsbereich nicht nur als begehbarer Kleiderschrank und Garderobe, sondern auch als Hauswirtschaftsraum nutzbar ist.
Eine Schiebetür versteckt alles, was fremde Augen nicht sehen sollen.
Für Behaglichkeit in der Wohnung sorgt die zeitgerechte und mehr als willkommene Klima- Anlage, die ebenfalls im Zuge der Renovierung neu eingebaut wurde, und das in einer Zeit, in der es Jahr für Jahr wärmer wird.
Drinnen Wohnen, entspannen oder grillen direkt vor der Türe;
und wenn sich ein Garten so perfekt und symbiotisch präsentiert und die Herzen gewinnt, dann trägt er die Handschrift eines Gartenarchitekten, und das kann sich sehen lassen.
Die Eigentümer haben auch hier wahrlich nicht gespart:
Er ist in mehrere sogenannte "grüne Zimmer" unterteilt, erstreckt sich über 2 Ebenen und verfügt über 3 Terrassen, welche die Wohnung auf allen 3 Seiten umschließen. Stein und Erde wechseln sich gekonnt ab, Beleuchtungen deuten auf ein Lichtkonzept hin, die Farben sind perfekt ausgewählt, in einem Wort: Mediterran.
Ein KFZ Stellplatz, welcher gegen einen Aufpreis von 19.000.- Euro zu erwerben ist, rundet dieses Immobilienangebot ab.
Baurechtswohnungseigentumsvertrag
Es handelt sich hierbei um eine Wohnhausanlage auf Baurechtsgrund, wo der mit dem Stift Klosterneuburg abgeschlossene Baurechtsvertrag am 01.07.2005 mit einer Laufzeit von zunächst 100 Jahre abgeschlossen wurde und daher vorerst bis Juni 2105 läuft. Der zurzeit auf die Wohnung anteilig anfallende Baurechtszins beträgt 256,63.- EUR monatlich.
BK Aufstellung gesamt:
Betriebskosten Netto: 229,91.-
Rep. Rücklage: 170,47.-
Wasser: 29,65.-
Baurechtszins: 256,63.-
Ergreifen Sie die Chance und verwirklichen Sie sich Ihren Wohntraum in einem der beliebtesten Naherholungsgebiete der Stadt; der Alten Donau!
Der Vermittler ist als Doppelmakler tätig.
Infrastruktur / Entfernungen
Gesundheit
Arzt <500m
Apotheke <1.000m
Klinik <2.000m
Krankenhaus <3.000m
Kinder & Schulen
Schule <500m
Kindergarten <1.000m
Universität <2.500m
Höhere Schule <2.000m
Nahversorgung
Supermarkt <500m
Bäckerei <1.000m
Einkaufszentrum <1.000m
Sonstige
Geldautomat <500m
Bank <500m
Post <1.000m
Polizei <1.500m
Verkehr
Bus <500m
U-Bahn <1.000m
Straßenbahn <500m
Bahnhof <1.000m
Autobahnanschluss <1.500m
Angaben Entfernung Luftlinie / Quelle: OpenStreetMap
Eckdaten
| Kaufpreis: | 789.000,00 € |
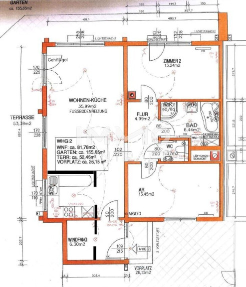
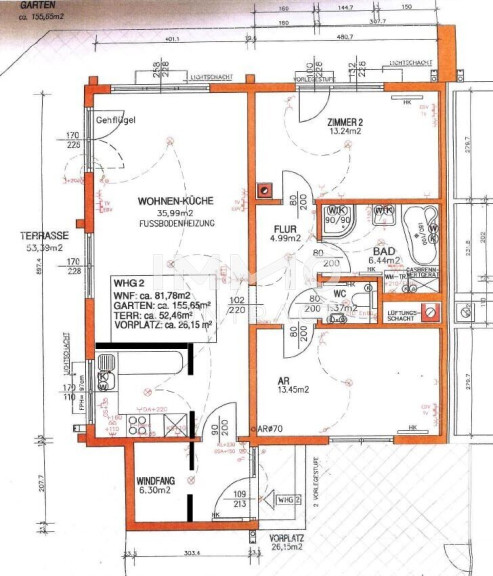
| Fläche: | 81,78 m² |
| Zimmer: | 3 |
Basisdaten zur Immobilie
| Objektnr: | 1939/124046 |
| Art: | Wohnung - Terrassenwohnung |
| Land: | Österreich |
| Baujahr: | 2011 |
| Kaufpreis: | 789.000,00 € |
| Provision: | 28.404,00 € inkl. 20% USt. |
| Betriebskosten: | 301,95 € |
| MwSt Gesamt: | 30,20 € |
| Wohnfläche: | 81,78 m² |
| Zimmer: | 3 |
| Bäder: | 1 |
| WC: | 2 |
| Terrassen: | 1 |
| Garten: | 155,65 m² |
| Keller: | 16,00 m² |
| Heizwärmebedarf: | B 42,00 kWh/m²a |
| fGEE: | B 0,91 |
Ausstattung
Gas, Fußbodenheizung, Einbauküche, Dusche
Internet und TV
Information zur Internet und TV Versorgung hier
Ihre persönliche Beratung
Martin Steininger
IMMOcontract Immobilien Vermittlung GmbH
M.Steininger@IMMOcontract.at
+ 43 50/450-562
+43 676 841 420 562
