Neubau Betriebsobjekt im Wiener Norden
Halle / Lager / Produktion
- Lager,
1210
Wien
Lage der Immobilie
Die Betriebsliegenschaft befindet sich in einer etablierten Gewerbelage im Wiener Norden. Die Umgebung ist geprägt von Betriebsansiedlungen sowie gewerblich genutzten Liegenschaften und bietet ideale Rahmenbedingungen für Unternehmen unterschiedlichster Branchen. Die Anbindung an das überregionale Verkehrsnetz ist ausgezeichnet. Die Nähe zur Donauuferautobahn (A22) sowie die rasche Erreichbarkeit der Südosttangente (A23) gewährleisten eine optimale Verkehrsanbindung sowohl für den Individualverkehr als auch für den Liefer- und Schwerverkehr. In fußläufiger Nähe befindet sich die Buslinie 36B, über welche die U1-Endstation Leopoldau in kurzer Zeit erreichbar ist. Dadurch besteht eine direkte Verbindung in die Wiener Innenstadt sowie eine gute Anbindung an das öffentliche Verkehrsnetz. Durch die gute infrastrukturelle Lage sowie die funktionale Umgebung eignet sich der Standort hervorragend für Unternehmen mit logistischen Anforderungen sowie für Büro- und Betriebsnutzungen mit Kunden- und Mitarbeiterfrequenz.Beschreibung der Immobilie
Eckdaten
| Gesamtmiete: | 12.600,00 € |
| Fläche: | 1.080,00 m² |
Basisdaten zur Immobilie
| Objektnr: | IVG-I-13206/N1 |
| Art: | Halle / Lager / Produktion - Lager |
| Land: | Österreich |
| Baujahr: | 2026 |
| Zustand: | Erstbezug |
| Gesamtmiete: | 12.600,00 € |
| Kaltmiete (netto): | 10.500,00 € |
| Kaltmiete: | 12.600,00 € |
| Miete / m²: | 9,72 € |
| Provision: | 3 BMM zzgl. 20% USt. |
| Nutzfläche: | 1.080,00 m² |
| Gesamtfläche: | 1.080,00 m² |
| Lagerfläche: | 599,00 m² |
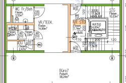
| Bürofläche: | 180,00 m² |
| Stellplätze: | 6 |
Ausstattung
Fußbodenheizung, Personenaufzug
Internet und TV
Information zur Internet und TV Versorgung hier
Ihre persönliche Beratung
Dipl. Wirt. Ing. (FH) Wolfgang von Poellnitz
OTTO Immobilien GmbH
w.vonpoellnitz@otto.at
00436645116220
00436645116220
F 004315137778
