** ab sofort: großzügige Gewerbefläche mit Büro, Verkaufsräumen und Lagerfläche - Straßeneingang, Klimaanlage, Laderampe, uvm. ** unbefristete Miete **
Einzelhandel
,
1050
Wien
Lage der Immobilie
Castelligasse, Ramperstorffergasse, Margaretenstraße, Pilgramgasse (U4)Beschreibung der Immobilie
Geschätzte InteressentInnen!
Zur vereinfachten Abstimmung bitten wir um Übermittlung konkreter Terminvorschläge Ihrerseits über das Kontaktformular oder um telefonische Kontaktaufnahme!
ERZÄHLEN SIE UNS VON IHREM KONZEPT!
Herzlichen Dank!
**********************************
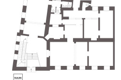
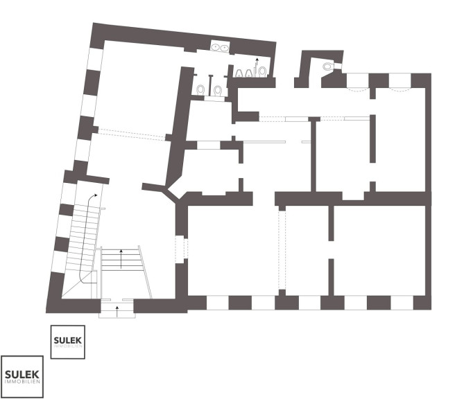
Gewerbefläche/Räumlichkeiten.
Zur unbefristeten Vermietung gelangt eine großzügig geschnittene Gewerbeeinheit mit vielseitigen Nutzungsmöglichkeiten. Die Fläche eignet sich ideal als Verkaufs-, Büro- oder Dienstleistungsstandort und überzeugt durch eine gute interne Aufteilung sowie zusätzliche Lagerfläche (inkl. Laderampe) im Keller.
Flächenverteilung:
Gesamt weist die Einheit laut Planunterlagen eine Fläche von rd. 285 m² auf. Diese verteilt sich wie folgt:
- EG/HP 168,58 m² (Verkaufsfläche &Büro)
- 4 getrennte Toiletten - 2 Damen-WC und ein Herren WC mit Pissoirs und WC
- zwei Büroräumlichkeiten (rd. 45 m²)
- fünf großzügige Verkaufsräume (zw. 14 - 33 m²)
- ein großzügiger Eingangsbereich / Entreé mit Kellerabgang
- Keller 116,61 m² (Lager / Abstellräume)
- Lagerfläche
- Lagerrampe
- Technikraum
Ausstattung / Inventar:
- bodenverflieste Räume
- Therme / Gasetagenheizung
- Klimaanlage
- nicht barrierefrei
Konditionen:
- unbefristet - 3 Monate Kündigungsfrist zum Ende eines Kalenderquartals
- Vergebührung an das Finanzamt
- Kaution: 3 Bruttomonatsmieten
- Provision: 3 Bruttomonatsmieten
Lage / Infrastruktur.
Die Wohnung befindet sich in der Castelligasse im 5. Bezirk von Wien, inmitten eines lebendigen und urbanen Stadtteils. Der 5. Bezirk, auch bekannt als Margareten, bietet eine ausgezeichnete Mischung aus städtischem Flair und grünen Oasen und ist bei jungen Leuten und Familien gleichermaßen beliebt.
In unmittelbarer Nähe auf der Margaretenstraße oder Schönbrunner Straße (Schlossquadrat), befinden sich zahlreiche Einkaufsmöglichkeiten, Cafés, Restaurants und lokale Geschäfte, die das tägliche Leben bequem und abwechslungsreich gestalten. Für eine perfekte Nahversorgung sorgt der nur 5 Gehminuten entfernte Eurospar & DM.
Die Anbindung an den öffentlichen Verkehr ist bestens gegeben: Um die Ecke der Liegenschaft finden Sie eine Bushaltestelle (12A, 14A, 59A). Fußläufig ca. 600 m entfernt erreichen Sie die U4 Station "Pilgramgasse" und bringt Sie ohne Umsteigen direkt in die Innenstadt.
*************************************
Sollten Sie nach Durchsicht des Inserats eine Besichtigung wünschen, bitten wir um Anfrage über das Kontaktformular und Nennung ein paar konkreter Terminvorschläge.
*************************************
Die zur Verfügung gestellten Informationen beruhen auf Angaben des Abgebers, der Gemeinde und der Hausverwaltung bzw. der jeweiligen Professionisten. Für die Richtigkeit und Vollständigkeit der Angaben kann keine Gewähr bzw. Haftung übernommen werden. Weiters weisen wir auf ein wirtschaftliches und/oder familiäres Naheverhältnis hin. Festgehalten wird, dass unser Maklerunternehmen gem. § 17 MaklerG einseitig nur für den Vermieter tätig wird, nicht für den Mieter.
Bitte beachten Sie, dass unser Unternehmen keine Reisekosten übernimmt, die im Zusammenhang mit der Besichtigung von Immobilien anfallen. Alle anfallenden Kosten für Anreise, Unterkunft und Verpflegung müssen von den Interessenten selbst getragen werden. Des Weiteren übernehmen wir keine Haftung für Kosten, die durch kurzfristige Stornierungen oder Änderungen von Besichtigungsterminen entstehen können. Wir danken Ihnen für Ihr Verständnis.
*************************************
Noch nichts gefunden?
Wir informieren Sie als Erste/r über passende Immobilienangebote.
Legen Sie jetzt Ihren individuellen Suchagenten über folgenden Link an.
Wir senden Ihnen geeignete Immobilien unverbindlich vorab zu.
Suchagent anlegen - https://sulek-immobilien.service.immo/registrieren/de
Wir weisen darauf hin, dass zwischen dem Vermittler und dem zu vermittelnden Dritten ein familiäres oder wirtschaftliches Naheverhältnis besteht.
Der Vermittler ist als Doppelmakler tätig.
Infrastruktur / Entfernungen
Gesundheit
Arzt <500m
Apotheke <500m
Klinik <500m
Krankenhaus <500m
Kinder & Schulen
Schule <500m
Kindergarten <500m
Universität <500m
Höhere Schule <500m
Nahversorgung
Supermarkt <500m
Bäckerei <500m
Einkaufszentrum <1.000m
Sonstige
Geldautomat <500m
Bank <500m
Post <500m
Polizei <500m
Verkehr
Bus <500m
U-Bahn <500m
Straßenbahn <1.000m
Bahnhof <500m
Autobahnanschluss <3.500m
Angaben Entfernung Luftlinie / Quelle: OpenStreetMap
Eckdaten
| Kaltmiete (netto): | 2.739,06 € |
| Fläche: | 285,19 m² |
| Zimmer: | 7 |
Basisdaten zur Immobilie
| Objektnr: | 26267 |
| Art: | Einzelhandel |
| Land: | Österreich |
| Baujahr: | 1879 |
| Zustand: | Gepflegt |
| Alter: | Altbau |
| Kaltmiete (netto): | 2.739,06 € |
| Kaltmiete: | 3.336,41 € |
| Betriebskosten: | 597,35 € |
| MwSt Gesamt: | 667,28 € |
| Nutzfläche: | 285,19 m² |
| Zimmer: | 7 |
| WC: | 4 |
| Keller: | 116,61 m² |
| Heizwärmebedarf: | E 183,90 kWh/m²a |
| fGEE: | F 3,63 |
Ausstattung
Parkett, Fliesen, Gas, Etagenheizung
Internet und TV
Information zur Internet und TV Versorgung hier
Ihre persönliche Beratung
Kenan Bilgili
Mittelsmann Philipp Sulek GmbH
kb@sulek-immobilien.at
+43 676 64 33 124
+43 664 354 11 44
