Küche inklusive! Schlüsselfertiges Traumhaus in Klagenfurter Bestlage I Vorstadtleben Hörtendorf
Haus
- Einfamilienhaus,
9020
Klagenfurt am Wörthersee
Lage der Immobilie
Der Stadtteil Hörtendorf überzeugt durch sein großzügiges Nahversorgerangebot und eine hervorragend ausgebaute Infrastruktur. Alle Einrichtungen des täglichen Bedarfs sind in wenigen Minuten erreichbar. Wichtige Bildungseinrichtungen, mehrere Arztpraxen sowie vielfältige Einkaufsmöglichkeiten befinden sich in unmittelbarer Nähe. Eine regelmäßige Busverbindung sorgt zudem für eine komfortable Anbindung an das Stadtzentrum. Die Nähe zur Autobahn A2 und zum Flughafen Klagenfurt unterstreicht die attraktive Lage zusätzlich. Genießen Sie ruhiges Wohnen im Grünen, ohne auf die Vorzüge urbaner Infrastruktur zu verzichten. Das Projekt Vorstadtleben Hörtendorf verbindet auf ideale Weise die Ruhe des Landlebens mit dem Komfort der Stadt. Verkehrsanbindung: Klagenfurt ~6 min. Ebenthal ~7 min. Grafenstein ~8 min. Völkermarkt ~20 min. Autobahnzubringer Klagenfurt-Ost ~7 min. Flughafen Klagenfurt ~10 min. Nahversorger & Infrastruktur: Adeg-Markt ~3 min. Metro Cash & Carry ~6 min. Haltestalle STW Bus ~1 min. Volksschule ~4 min. Allgemeinarzt ~2 min. Penny Markt ~2 min.Beschreibung der Immobilie
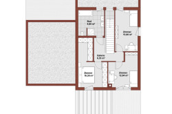
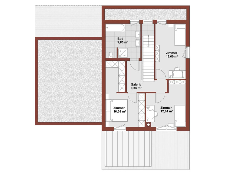
Mit einer Nettogrundfläche von ca. 129 m², verteilt auf zwei Etagen, bietet dieses stilvoll gestaltete Einfamilienhaus in bewährter Holzriegelbauweise ein komfortables Wohngefühl auf kompakter Fläche und ausreichend Platz für die gesamte Familie.
Bei der Planung des Projekts wurde größter Wert auf Energieeffizienz und einen schonenden Ressourceneinsatz gelegt. Beheizt wird das Haus mittels moderner Luft-Wasser-Wärmepumpe der Firma Viessmann, die eine ökologische Lebensweise unterstützt und gleichzeitig zur Senkung der Heizkosten beiträgt. Durch die hochwertigen Baumaterialien, das durchdachte Heizsystem sowie das erstklassige Wärmedämmverbundsystem weisen die Häuser hervorragende Energiekennzahlen auf.
Bei diesem Projekt wurde besonderer Wert auf eine umfangreiche und hochwertige Ausstattung gelegt. Sämtliche verwendeten Materialien und Einrichtungsgegenstände stammen von namhaften Markenherstellern und garantieren langfristige Wertbeständigkeit sowie ein angenehmes Wohngefühl.
Folgende Highlights sind unter anderem im Angebot enthalten:
-
Grundstück in Klagenfurter Bestlage mit 475 m² Grundfläche (Gst. 220/4 lt. Teilungsplan), Einfriedung des Grundstücks mit Doppelstabmattenzaun
-
Küche im Kaufpreis enthalten
-
Sämtliche Kosten und Gebühren für Infrastrukturanschlüsse
-
Vorbereitung für Glasfasernetzanschluss
-
Mülltonnenbox
-
Asphaltierte Zufahrt und gepflasterte Einfahrt in ruhiger Sackgassenlage
-
Regelmäßige Busverbindung in unmittelbarer Nähe für eine komfortable Anbindung an das Stadtgebiet
-
Elegante Eichentreppe mit Niro-Sprossengeländer
-
Luft-Wasser-Wärmepumpe der Fa. Viessmann mit 300-Liter-Warmwasserspeicher - Fußbodenheizung mit Einzelraumregelung
-
Kunststoff-Alu-Fenster inkl. Fliegengitter und elektrischer Rollläden
-
XXL-Doppelcarport mit Holz-Attika
-
Terrasse mit Belag sowie luxuriöser Pergola, Beleuchtung und Außenwasseranschluss
-
Vorbereitung für eine Photovoltaikanlage
Verkaufspreis „All-Inclusive“-Variante: € 599.000,– inkl. Küche, Carport, Terrasse & Mülltonnenbox (Preisvorteil: € 22.500,–)
Infrastruktur / Entfernungen
Gesundheit
Arzt <4.000m
Apotheke <4.000m
Krankenhaus <4.500m
Klinik <7.000m
Kinder & Schulen
Schule <1.500m
Kindergarten <4.500m
Universität <7.000m
Höhere Schule <6.000m
Nahversorgung
Supermarkt <1.500m
Bäckerei <3.500m
Einkaufszentrum <4.000m
Sonstige
Bank <3.500m
Geldautomat <4.000m
Polizei <4.500m
Post <5.000m
Verkehr
Bus <500m
Autobahnanschluss <2.000m
Bahnhof <5.500m
Flughafen <4.500m
Angaben Entfernung Luftlinie / Quelle: OpenStreetMap
Eckdaten
| Kaufpreis: | 599.000,00 € |
| Fläche: | 129,00 m² |
| Zimmer: | 5 |
Basisdaten zur Immobilie
| Objektnr: | 1557/57 |
| Art: | Haus - Einfamilienhaus |
| Land: | Österreich |
| Baujahr: | 2025 |
| Zustand: | Erstbezug |
| Alter: | Neubau |
| Kaufpreis: | 599.000,00 € |
| Wohnfläche: | 129,00 m² |
| Grundstücksfl.: | 475,00 m² |
| Zimmer: | 5 |
| Bäder: | 2 |
| WC: | 2 |
| Stellplätze: | 2 |
| Heizwärmebedarf: | B 39,70 kWh/m²a |
| fGEE: | A+ 0,62 |
Ausstattung
Fliesen, Kunststoffboden, Fußbodenheizung, Einbauküche, Wohnküche / offene Küche, Bad mit Fenster, Badewanne, Dusche, Carport
Internet und TV
Information zur Internet und TV Versorgung hier
Ihre persönliche Beratung
Melanie Wollinger
W&H Bauträger GmbH
wollinger@wh-bau.at
+43 6644243310
