Ruhelage & Stadtnähe - Ihr Eigenheim mit viel Platz für Familie und Garten - nur 13 Minuten nach Klagenfurt!
Haus
- Einfamilienhaus,
9064
Eixendorf
,
Eixendorf 29
Lage der Immobilie
Das sonnige Südgrundstück befindet sich in der Marktgemeinde Magdalensberg. Die ruhige, naturnahe Umgebung bietet eine hohe Lebensqualität, während die hervorragende Infrastruktur eine schnelle Anbindung an umliegende Städte ermöglicht.Beschreibung der Immobilie
Ihr Wohntraum in Bestlage - Nur 13 Minuten nach Klagenfurt und dennoch im Grünen!
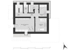
Dieses exklusive Ziegelmassivhaus vereint modernes Wohnen mit höchstem Komfort und beeindruckt durch eine durchdachte Architektur. Auf rund 130 m² Wohnfläche bietet das Haus eine ideale Raumaufteilung für die ganze Familie. Ergänzt durch einen voll unterkellerten Bereich mit 60 m² Nutzfläche und drei separaten Lagerräumen – perfekt für zusätzlichen Stauraum.
Im Erdgeschoss erwarten Sie ein lichtdurchfluteter Wohn-Essbereich mit weitläufigen Fensterfronten und direktem Zugang zur überdachten XXL-Terrasse & eine moderne offene Küche. Das Obergeschoss verfügt über ein großzügiges Hauptschlafzimmer, zwei weitere helle Schlafzimmer sowie ein komfortables Familienbad mit Badewanne, Dusche und WC. Für höchsten Wohnkomfort sorgen zahlreiche Ausstattungsdetails wie Fußbodenheizung mit Einzelraumregelung, Luftwärmepumpe, elektrische Rollläden und Glasfaseranschluss.
Das riesige Grundstück (südseitig ausgerichtet) mit ca. 1.100 m² bietet viel Sonne und ausreichend Platz für Garten, Freizeit und Erholung.
Weitere Ausstattungshighlights
- Sonniges, ca. 1.100 m² großes Grundstück
- Überdachte XXL-Terrasse
- Sichtdachstuhl in luxuriöser Ausführung
- Volle Unterkellerung (ca. 60 m²) - von Außen begehbar
- Hochwertige Alu-Eingangstüre mit Eingangsüberdachung
- 3-fach verglaste Kunststoff-Alu-Fenster (Internorm)
- Rollläden mit E-Antrieb und Bus-System-Steuerung
- Echtholzparkett & italienische Markenfliesen
- Viessmann Luftwärmepumpe inkl. Warmwasserspeicher
- Fußbodenheizung mit Einzelraumsteuerung
- Überdachter Eingangsbereich
- Gepflasterte Einfahrt
- Glasfaseranschluss für High-Speed Internet
- ... und vieles mehr!
Dieses Traumhaus vereint Sonnengrundstück, moderne Architektur und hochwertige Ausstattung – verpassen Sie nicht die Gelegenheit Ihr neues Zuhause zu besichtigen.
(Die in den Bildern gezeigten Möbel und die Ausstattung sind nicht im Kaufpreis enthalten.)
Infrastruktur / Entfernungen
Gesundheit
Arzt <6.975m
Apotheke <6.325m
Krankenhaus <9.675m
Kinder & Schulen
Schule <2.800m
Kindergarten <2.575m
Nahversorgung
Supermarkt <1.875m
Bäckerei <9.325m
Einkaufszentrum <8.975m
Sonstige
Bank <3.050m
Polizei <6.900m
Geldautomat <3.050m
Post <1.875m
Verkehr
Bus <75m
Autobahnanschluss <5.450m
Bahnhof <7.200m
Flughafen <5.400m
Angaben Entfernung Luftlinie / Quelle: OpenStreetMap
Eckdaten
| Kaufpreis: | 609.000,00 € |
| Fläche: | 130,00 m² |
| Zimmer: | 4 |
Basisdaten zur Immobilie
| Objektnr: | 1557/62 |
| Art: | Haus - Einfamilienhaus |
| Land: | Österreich |
| Zustand: | Erstbezug |
| Alter: | Neubau |
| Kaufpreis: | 609.000,00 € |
| Wohnfläche: | 130,00 m² |
| Grundstücksfl.: | 1.094,00 m² |
| Zimmer: | 4 |
| Bäder: | 2 |
| WC: | 2 |
| Terrassen: | 1 |
| Stellplätze: | 2 |
| Keller: | 60,00 m² |
| Heizwärmebedarf: | B 40,90 kWh/m²a |
| fGEE: | A 0,75 |
Ausstattung
Parkett, Fliesen, Fußbodenheizung, Südbalkon, Bad mit Fenster, Badewanne, Dusche, Parkplatz
Internet und TV
Information zur Internet und TV Versorgung hier
Ihre persönliche Beratung
Melanie Wollinger
W&H Bauträger GmbH
wollinger@wh-bau.at
+43 6644243310
