Kaiserallee Grafenstein - Einfamilienhaus belagsfertig (gekoppelt)
Haus
- Einfamilienhaus,
9131
Grafenstein
Lage der Immobilie
Grün, ruhig und dennoch bestens angebunden Die ruhige Lage in einer naturverbundenen Umgebung sorgt für Erholung direkt vor der Haustür. Die nahegelegene Koralmbahn ermöglicht eine schnelle und komfortable Verbindung in der Region – ob zur Arbeit, zum Einkaufen oder zum nächsten Kultur-/ Freizeitangebot. Nahversorger, Bank und Restaurants befinden sich ebenfalls in unmittelbarer Nähe.Beschreibung der Immobilie
Einfamilienhäuser mit Wohlfühlfaktor – belagsfertig ab € 483.000,-
In der Kaiserallee entstehen im westlichen Bereich drei moderne, gekoppelte Einfamilienhäuser. Hier vereinen sich Privatsphäre, Qualität und Lebensfreude – der perfekte Ort für Familien, die ein bezugsfertiges Zuhause mit durchdachten Details suchen. Die Häuser sind ausschließlich über die Carports miteinander gekoppelt. Jedes Haus steht auf einem eigenständigen Grundstück!
Ihre Vorteile auf einen Blick
- Belagsfertige Ausführung – Innenausbau & Ausstattung nach Ihren Vorstellungen
- eigenständige Grundstücke mit eigener Infrastruktur (daher kein Wohnungseigentum)
- Gartenflächen mit überdachter Terrasse (26 m²) für entspannte Stunden im Freien
- Süd-Ausrichtung für helle Wohnräume
- Hochwertige Wärmedämmung für Energieeffizienz
- Regionale Fernwärme (Ganzjahresbetrieb)
- Langlebige Kunststoff-Alu-Fenster
- Glasfaser-Internetanschluss für höchste Konnektivität
- Vorbereitung für PV-Anlage – nachhaltig und zukunftssicher
- Außenwasseranschluss für die Gartenbewässerung
- und vieles mehr…
Die Häuser begeistern mit einem klar strukturierten Grundriss und viel Raum zum Wohlfühlen.
Der offene Wohn-Essbereich mit direktem Zugang zur Terrasse bildet das Herzstück des Hauses und schafft eine einladende Verbindung zwischen Innen und Außen. Im Obergeschoss erwarten Sie helle Zimmer, die Rückzug und Geborgenheit bieten. So entsteht ein Zuhause, das Wärme, Komfort und Lebensqualität vereint – perfekt auf die Bedürfnisse moderner Familien abgestimmt.
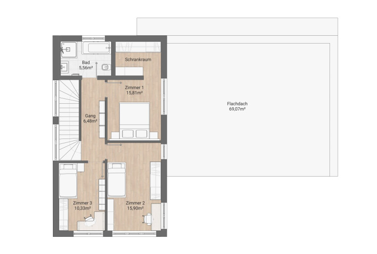
Raumaufteilung im Detail
Erdgeschoss
- Wohnen / Kochen / Essen: 45,70 m²
- Speis: 3,24 m²
- Wäsche / Technik: 8,32 m²
- WC: 2,18 m²
- Garderobe / Vorraum: 4,00 m²
Obergeschoss
- Zimmer I: 15,81 m²
- Zimmer II: 15,90 m²
- Zimmer III: 10,33 m²
- Bad: 5,56 m²
- Gang: 6,48 m²
Wohnfläche gesamt: 117,52 m²
Qualität & Grundstücksgrößen
Jedes Haus steht auf einem eigenständigen Grundstück mit eigener Infrastruktur – somit kein Wohnungseigentum, sondern Ihr persönliches Grundstück. Die Grundstücke variieren in Größen zwischen 493 m² und 682 m² und schaffen damit den idealen Rahmen für individuelle Entfaltung.
Grundstücksgrößen im Überblick
Top 1 – 682 m²
Top 2 – 493 m²
Top 3 – 649 m²
Hier entsteht mehr als nur ein Haus – hier entsteht ein Ort zum Ankommen, Wohlfühlen und Wachsen.
Kaufpreis ab € 483.000,- (belagsfertig, exkl. Carport & Freizeitbox)
Infrastruktur / Entfernungen
Gesundheit
Apotheke <1.000m
Arzt <1.000m
Krankenhaus <1.000m
Kinder & Schulen
Schule <1.000m
Kindergarten <1.000m
Höhere Schule <10.000m
Nahversorgung
Supermarkt <500m
Bäckerei <1.500m
Einkaufszentrum <8.500m
Sonstige
Bank <500m
Geldautomat <3.000m
Post <6.500m
Polizei <500m
Verkehr
Bus <500m
Autobahnanschluss <2.500m
Bahnhof <500m
Flughafen <9.500m
Angaben Entfernung Luftlinie / Quelle: OpenStreetMap
Eckdaten
| Kaufpreis: | 483.000,00 € |
| Fläche: | 118,00 m² |
| Zimmer: | 4 |
Basisdaten zur Immobilie
| Objektnr: | 1557/58 |
| Art: | Haus - Einfamilienhaus |
| Land: | Österreich |
| Baujahr: | 2025 |
| Zustand: | Erstbezug |
| Alter: | Neubau |
| Kaufpreis: | 483.000,00 € |
| Kaufpreis / m²: | auf Anfrage |
| Wohnfläche: | 118,00 m² |
| Grundstücksfl.: | 493,00 m² |
| Zimmer: | 4 |
| Bäder: | 2 |
| WC: | 2 |
| Terrassen: | 1 |
| Stellplätze: | 2 |
| Garten: | 314,00 m² |
Ausstattung
Parkett, Estrichboden, Fliesen, Kunststoffboden, Fußbodenheizung, Südbalkon, Bad mit Fenster, Badewanne, Dusche, Carport
Internet und TV
Information zur Internet und TV Versorgung hier
Ihre persönliche Beratung
Melanie Wollinger
W&H Bauträger GmbH
wollinger@wh-bau.at
+43 6644243310
