Kaiserallee Grafenstein - Einfamilienhaus I-III schlüsselfertig & unterkellert (freistehend)
Haus
- Einfamilienhaus,
9131
Grafenstein
Lage der Immobilie
Grün, ruhig und dennoch bestens angebunden Die ruhige Lage in einer naturverbundenen Umgebung sorgt für Erholung direkt vor der Haustür. Die nahegelegene Koralmbahn ermöglicht eine schnelle und komfortable Verbindung in der Region – ob zur Arbeit, zum Einkaufen oder zum nächsten Kultur-/ Freizeitangebot. Nahversorger, Bank und Restaurants befinden sich ebenfalls in unmittelbarer Nähe.Beschreibung der Immobilie
Wohnen mit Charme, Komfort und Charakter – schlüsselfertig ab € 740.000,-
Im westlichen Teil der Kaiserallee entstehen vier moderne, freistehende Einfamilienhäuser, die ländliche Ruhe mit bester Infrastruktur verbinden. Hier vereinen sich Privatsphäre, Qualität und Lebensfreude – der perfekte Ort für Familien, die ihr Zuhause individuell gestalten möchten.
Ihre Vorteile auf einen Blick
- Schlüsselfertige Ausführung – sofort bezugsbereit
- Vollständig unterkellert
- Inklusive Doppelcarport mit Platz für 2 PKWs
- Inklusive Freizeitbox für zusätzlichen Stauraum
- Großzügige Privatgärten für Spiel, Entspannung und Genuss
- Überdachte Terrasse – viel Platz für gemeinsame Stunden im Freien
- Parkettböden
- Fußbodenheizung samt Unterputzverteiler inkl. zentralem Thermostat
- Großformatige Fliesen
- Hochwertige Innentüren in verschiedenen Designs
- Sanitärkeramik vom Markenhersteller
- Separater Technikraum für die Haustechnik
- Glasfaser-Internetanschluss für höchste Konnektivität
- Vorbereitung für PV-Anlage – nachhaltig und zukunftsorientiert
- Außenwasseranschluss für Gartenbewässerung
- Hochwertige Wärmedämmung & langlebige Kunststoff-Alu-Fenster
- Grundstück bereits mit Zaun eingefriedet
- und vieles mehr…
Wohnen mit durchdachtem Konzept
Jede Einheit überzeugt mit einer klaren, modernen Raumaufteilung: ein weitläufiger Wohn- und Essbereich im Erdgeschoss, ein separates Zimmer für Homeoffice oder als Gästezimmer sowie drei helle Schlafzimmer im Obergeschoss. Der Spielflur lässt auch Kinderherzen höherschlagen und bietet zusätzlichen Platz für Spiel, Arbeit oder Rückzug. So entsteht ein Zuhause, das allen Bedürfnissen einer Familie gerecht wird.
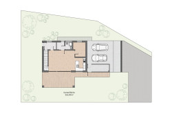
Raumaufteilung im Detail
Erdgeschoss
- Wohnen / Kochen / Essen: 44,10 m²
- Hauswirtschaft: 5,85 m²
- Dusche / WC: 3,20 m²
- Garderobe / Vorraum: 3,78 m²
- Büro / Homeoffice: 10,77 m²
Obergeschoss
- Schlafzimmer I: 15,92 m²
- Schlafzimmer II: 17,02 m²
- Schlafzimmer III: 15,67 m²
- Bad: 7,93 m²
- Spielflur: 11,51 m²
- WC: 1,93 m²
- Dusche: 4,25 m²
Wohnfläche gesamt: 141,93 m²
Überdachte Terrasse: 33,38 m², Freizeitbox: 10,83 m²
Dachterrasse (optional gegen Aufpreis): 18,00 m²
Qualität und Grundstücksgrößen
Die Häuser entstehen auf großzügigen Grundstücken zwischen 546 m² und 745 m², welche bereits mit einer Einfriedung versehen sind und bieten damit viel Platz für Garten und Freizeit.
Grundstücksgrößen
- Haus I – 678 m²
- Haus II – 546 m²
- Haus III – 745 m²
Kaufpreis
Hier entsteht mehr als nur ein Haus – hier entsteht ein Ort zum Ankommen, Wohlfühlen und Wachsen. Mit der belagsfertigen Ausführung haben Sie die Freiheit, Ihr Zuhause nach Ihren eigenen Vorstellungen zu gestalten.
Kaufpreis ab € 740.000,- schlüsselfertig (inkl. Carport, inkl. Freizeitbox, inkl. Keller)
Infrastruktur / Entfernungen
Gesundheit
Apotheke <1.000m
Arzt <1.000m
Krankenhaus <1.000m
Kinder & Schulen
Schule <1.000m
Kindergarten <1.000m
Höhere Schule <10.000m
Nahversorgung
Supermarkt <500m
Bäckerei <1.500m
Einkaufszentrum <8.500m
Sonstige
Bank <500m
Geldautomat <3.000m
Post <6.500m
Polizei <500m
Verkehr
Bus <500m
Autobahnanschluss <2.500m
Bahnhof <500m
Flughafen <9.500m
Angaben Entfernung Luftlinie / Quelle: OpenStreetMap
Eckdaten
| Kaufpreis: | 740.000,00 € |
| Fläche: | 142,00 m² |
| Zimmer: | 5 |
Basisdaten zur Immobilie
| Objektnr: | 1557/55 |
| Art: | Haus - Einfamilienhaus |
| Land: | Österreich |
| Baujahr: | 2025 |
| Zustand: | Erstbezug |
| Alter: | Neubau |
| Kaufpreis: | 740.000,00 € |
| Kaufpreis / m²: | auf Anfrage |
| Wohnfläche: | 142,00 m² |
| Grundstücksfl.: | 546,00 m² |
| Zimmer: | 5 |
| Bäder: | 3 |
| WC: | 2 |
| Terrassen: | 1 |
| Garten: | 312,00 m² |
| Keller: | 71,00 m² |
Ausstattung
Estrichboden, Fliesen, Kunststoffboden, Parkett, Fußbodenheizung, Südbalkon, Bad mit Fenster, Badewanne, Dusche, Carport
Internet und TV
Information zur Internet und TV Versorgung hier
Ihre persönliche Beratung
Melanie Wollinger
W&H Bauträger GmbH
wollinger@wh-bau.at
+43 6644243310
