Baustart bereits erfolgt! Kaiserallee Grafenstein - Baukörper K3 Top 2 (EG)
Wohnung
,
9131
Grafenstein
Lage der Immobilie
Grün, ruhig und dennoch bestens angebunden Die ruhige Lage in einer naturverbundenen Umgebung sorgt für Erholung direkt vor der Haustür. Die nahegelegene Koralmbahn ermöglicht eine schnelle und komfortable Verbindung in der Region – ob zur Arbeit, zum Einkaufen oder zum nächsten Kultur-/ Freizeitangebot. Nahversorger, Bank und Restaurants befinden sich ebenfalls in unmittelbarer Nähe.Beschreibung der Immobilie
Modernes Wohnen mit historischem Flair mitten im Grünen und nur 45 Minuten nach Graz:
Sichern Sie sich jetzt Ihr Zuhause mit hoher Lebensqualität, nachhaltiger Bauweise und idealer Anbindung!
Viel Raum für Lebensqualität
Drei großzügige Gartenwohnungen laden mit eigenen Terrassen und grünen Außenflächen zum Entspannen im Freien ein – ideal für Familien mit Kindern oder Gartenliebhaber.
Komfortable Ausstattung für modernes Wohnen
Das Gebäude ist voll unterkellert und jeder Wohneinheit steht ein eigenes Kellerabteil zur Verfügung – ideal für zusätzlichen Stauraum. Darüber hinaus bieten Allgemeinflächen im Untergeschoss ausreichend Platz zum Abstellen von Fahrrädern, Kinderwägen und anderen Gegenständen.
Parken mit Zukunft
Jeder Wohnung ist ein fixer PKW-Stellplatz zugeordnet – wahlweise offen oder überdacht. Auf Wunsch kann ein zweiter Stellplatz zusätzlich erworben werden. Alle Stellplätze sind mit einer Vorbereitung für eine E-Ladestation ausgestattet – zukunftssicher und umweltbewusst.
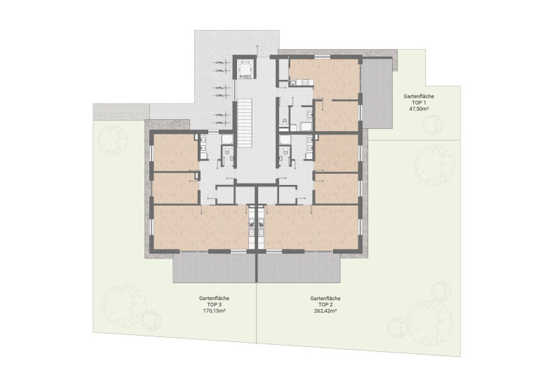
Die Wohnung Top 2 befindet sich im Erdgeschoss, ist nach Süd-Osten ausgerichtet und weist folgende räumliche Aufteilung auf:
- Wohnen / Kochen / Essen: 41,25 m²
- Zimmer I: 15,03 m²
- Zimmer II: 12,42 m²
- Bad: 6,03 m²
- WC: 1,82 m²
- Garderobe / Vorraum: 9,77 m²
- Abstellraum: 2,71 m²
- Speis: 3,18 m²
Wohnfläche: 92,21 m²
Gartenfläche: 262,42 m² private Gartenfläche
- Terrasse: 22,26 m²
- Kellerabteil: ~20 m² (die Größe des Kellerabteils variiert je TOP)
- Stellplätze PKW: Ein Stellplatz ist verpflichtend vorgesehen und nicht im Kaufpreis enthalten. Auf Wunsch kann auch ein weiterer Stellplatz erworben werden – Stellplatz freistehend: € 8.000,- oder Carport: € 15.000,-
Kaufpreis Wohnung: € 449.000,-
Infrastruktur / Entfernungen
Gesundheit
Apotheke <1.000m
Arzt <1.000m
Krankenhaus <1.000m
Kinder & Schulen
Schule <1.000m
Kindergarten <1.000m
Höhere Schule <10.000m
Nahversorgung
Supermarkt <500m
Bäckerei <1.500m
Einkaufszentrum <8.500m
Sonstige
Bank <500m
Geldautomat <3.000m
Post <6.500m
Polizei <500m
Verkehr
Bus <500m
Autobahnanschluss <2.500m
Bahnhof <500m
Flughafen <9.500m
Angaben Entfernung Luftlinie / Quelle: OpenStreetMap
Eckdaten
| Kaufpreis: | 449.000,00 € |
| Fläche: | 92,00 m² |
| Zimmer: | 3 |
Basisdaten zur Immobilie
| Objektnr: | 1557/41 |
| Art: | Wohnung |
| Land: | Österreich |
| Baujahr: | 2025 |
| Zustand: | Erstbezug |
| Alter: | Neubau |
| Kaufpreis: | 449.000,00 € |
| Kaufpreis / m²: | auf Anfrage |
| Wohnfläche: | 92,00 m² |
| Zimmer: | 3 |
| Bäder: | 1 |
| WC: | 1 |
| Terrassen: | 1 |
| Garten: | 263,00 m² |
| Keller: | 21,00 m² |
Ausstattung
Fliesen, Kunststoffboden, Parkett, Fußbodenheizung, Personenaufzug, Dusche, Carport, Parkplatz
Internet und TV
Information zur Internet und TV Versorgung hier
Ihre persönliche Beratung
Melanie Wollinger
W&H Bauträger GmbH
wollinger@wh-bau.at
+43 6644243310
