Immobilie merken
Lage der Immobilie
Das Objekt befindet sich in zentraler Lage am Wienerberg mit ausgezeichneter öffentlicher und individueller Verkehrsanbindung. Öffentliche Verkehrsmittel: - 7A → U4 Meidlinger Hauptstraße - 7B & 15A → S-Bahn & U6 Meidling (alle 8 Min.) - 65A → U1 Reumannplatz - Kostenloser City-Shuttle zur Wiener Innenstadt (Oper) Auto & Fahrrad: - 3 Parkgaragen mit 2.000 Stellplätzen - E-Car-Ladestationen & Carsharing (SHARE NOW) - Top ausgestatteter Fahrradraum mit Spinden & Duschen - E-Bike-Ladestationen & Reparaturservice Sharing-Angebote: - Carsharing: SHARE NOW in der Garage Twin Towers - E-Bikes: WienMobil Rad - E-ScooterBeschreibung der Immobilie
Das Projekt CHS 4 ist ein modernes und vielseitig ausgestattetes Gebäude am Wienerberg, das eine erstklassige Infrastruktur für Büro- und Veranstaltungsnutzung bietet. Mit einer Gesamtfläche von ca. 22.933 m² und einer modernen Architektur entstehend mit diesem Gebäude neue Maßstäbe in Bezug auf Komfort und Funktionalität.
Highlights des Projekts:
- Twelve Konferenzzentrum mit 12 Hightech-ausgestatteten Räumen
- Thirty Five Event-Location im 35. Stockwerk der Twin Towers
- TwentyTwo Restaurant im 22. Stockwerk des Clarion Hotels
- Komfortable Community-Lounge und Außenbereiche
- Großzügiger Fahrradraum mit Garderobe & Duschen
- Diverse Serviceleistungen: Schuster-, Schneider-Service, Blumenbestellung, Kleiderreinigung
Weitere Vorteile vor Ort:
- Shopping-Möglichkeiten: Supermarkt, Drogerie, Trafik, Bäcker
- Gastronomie: Vielfältige Restaurants & Cafés
- Dienstleistungen: Post, Banken, Reisebüro
- Freizeit: Cineplexx Wienerberg, 4-Sterne-Hotel
- Kinderbetreuung: Kindergarten & Hort
Eckdaten
| Gesamtmiete: | 346.800,00 € |
| Fläche: | 17.000,00 m² |
Basisdaten zur Immobilie
| Objektnr: | IVG-O-12539/G |
| Art: | Büro / Praxis - Bürofläche |
| Land: | Österreich |
| Gesamtmiete: | 346.800,00 € |
| Kaltmiete (netto): | 289.000,00 € |
| Kaltmiete: | 346.800,00 € |
| Miete / m²: | 17,00 € |
| Provision: | 3 BMM zzgl. 20% USt. |
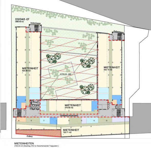
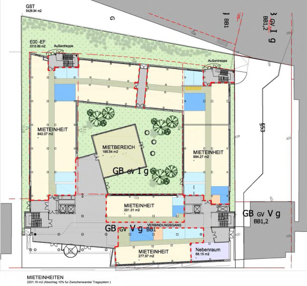
| Nutzfläche: | 17.000,00 m² |
| Bürofläche: | 17.000,00 m² |
Internet und TV
Information zur Internet und TV Versorgung hier
Ihre persönliche Beratung
Helmut Wanjek
OTTO Immobilien GmbH
h.wanjek@otto.at
00436648549193
00436648549193
F 004315137778
