Sonniges Luxus-Penthouse
Wohnung
,
5721
Piesendorf
Lage der Immobilie
Das Projekt befindet sich in Piesendorf, unweit von Zell am See. Die Region ist bekannt für ihre landschaftliche Schönheit und ausgebaute Infrastruktur. Viele Arbeitsplätze und ein weitreichendes Lifestyle-Angebot für Sommer und Winter ergeben eine äußerst hohe Lebensqualität.
Piesendorf ist mit der Mittersiller Straße (B 168) perfekt an die Region angebunden. Der südliche Stadtteil von Zell am See mit vielen Einkaufsmöglichkeiten ist in wenigen Autominuten erreichbar. Zwei Bahnhöfe (jeweils rund 450 m entfernt) stellen die öffentliche Anbindung sicher.
Innerhalb des Ortes bietet sich eine sehr vorteilhafte und zentrale Lage. Direkt im südlichen Zentrum gelegen ist das Projektgrundstück nur etwa 180 Meter von der Kirche und 140 Meter von einem Lebensmittelgeschäft, einer Apotheke, mehreren Restaurants, Kaffeehäusern, einem Bäcker, einer Pizzeria, einem Friseur und anderen Betrieben des täglichen Bedarfs entfernt.
Für Familien mit Kindern ist die Lage perfekt, da die Volksschule nur etwa 200 Meter entfernt ist und Ihre Kinder daher einen sehr kurzen und sicheren Schulweg haben.
Beschreibung der Immobilie
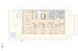
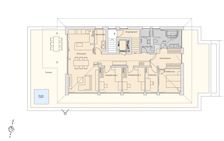
Dieses einzigartige Penthouse ist das Juwel des gesamten Projekts. Mit einer luxuriösen Wohnfläche von 126 m², Klimaanlage, Kamin und direktem Zugang über einen privaten Lift bietet diese uneinsichtige Einheit höchste Privatsphäre und einen unvergleichlichen Wohnkomfort. Die beeindruckende dreiseitige Terrasse mit einer Fläche von 127 m² ist perfekt ausgerichtet und bietet einen atemberaubenden Panoramaausblick in alle Himmelsrichtungen.
Die Wohnung verfügt über einen großzügigen, lichtdurchfluteten Wohnraum, der sich ideal für gesellige Abende eignet. Das ruhige Schlafzimmer bietet direkten Zugang zum Schrankraum und zum Badezimmer. Ergänzt wird das Raumangebot durch einen separten, geräumigen Schrankraum sowie zwei gleich große Zimmer, die flexibel als Kinder- oder Gästezimmer genutzt werden können. Ein zusätzliches Zimmer eignet sich hervorragend als Büro oder Hobbyraum. Das Hauptbad ist hochwertig ausgestattet mit Dusche, Badewanne, Doppelwaschbecken und WC, während ein weiteres Gästebad mit Dusche und WC zur Verfügung steht.
Eckdaten
| Kaufpreis: | 995.000,00 € |
| Fläche: | 127,00 m² |
| Zimmer: | 5 |
Basisdaten zur Immobilie
| Objektnr: | 00030032220001 |
| Art: | Wohnung |
| Land: | Österreich |
| Baujahr: | 2023 |
| Kaufpreis: | 995.000,00 € |
| Provision: | 3% des Kaufpreises plus 20% USt. |
| Betriebskosten: | 375,17 € |
| Heizkosten: | 109,36 € |
| Wohnfläche: | 127,00 m² |
| Zimmer: | 5 |
| Bäder: | 1 |
| WC: | 1 |
| Terrassen: | 1 |
| Keller: | 8,00 m² |
| Heizwärmebedarf: | B 26,00 kWh/m²a |
| fGEE: | A++ 0,55 |
Ausstattung
Zentralheizung, Personenaufzug, Dusche, Wasch/Trockenraum
Internet und TV
Information zur Internet und TV Versorgung hier
Ihre persönliche Beratung
Sandra Bräuer
Raiffeisen Salzburg
sandra.braeuer@immoraiffeisen.at
72218
+43 664 3832290
