LeopoldQuartier Office | Modernes Büro in Holzhybridbauweise | Nahe Donaukanal
Büro / Praxis
- Bürofläche,
1020
Wien
Lage der Immobilie
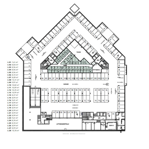
Öffentliche Anbindung: - U-Bahn U4 Station Rossauer Lände - Straßenbahn: Linie 31 Verkehrsanbindung: Die Hauptverkehrsstraßen Obere Donaustraße sowie Maria-Theresien-Straße bieten für den Individualverkehr eine gute Anbindung Distanzen: - In den Augarten: 5 min. (zu Fuß) - Zur U4 Rossauer Lände: 5 min. (zu Fuß) - In den 1. Bezirk: 10 min. (zu Fuß) - Zum Flughafen: 20 min. (Auto) - PKW-Stellplätze: bis zu 130 - Sharing-Angebot: Elektro-Autos und E-Bikes - E-Ladestationen: 32 - Fahrradabstellraum: im EGBeschreibung der Immobilie
Eckdaten
| Miete / m²: | 26,10 € |
| Fläche: | 2.465,98 m² |
Basisdaten zur Immobilie
| Objektnr: | IVG-O-04327/6 |
| Art: | Büro / Praxis - Bürofläche |
| Land: | Österreich |
| Baujahr: | 2025 |
| Zustand: | Projektiert |
| Miete / m²: | 26,10 € |
| Provision: | 3 BMM zzgl. 20 % USt. |
| Nutzfläche: | 2.465,98 m² |
| Bürofläche: | 2.465,98 m² |
| Heizwärmebedarf: | B 27,70 kWh/m²a |
| fGEE: | A+ 0,65 |
Ausstattung
Personenaufzug
Internet und TV
Information zur Internet und TV Versorgung hier
Ihre persönliche Beratung
Isabella Plessl
OTTO Immobilien GmbH
i.plessl@otto.at
004366488590403
004366488590403
F 004315137778
