Wohnbauprojekt – baugenehmigt! 2 Doppelhäuser in LKH-Nähe
Grundstück
- Baugrund Eigenheim,
8044
Schaftal
Lage der Immobilie
Das Grundstück befindet sich in der idyllischen Ortschaft Schaftal im Bezirk Graz-Umgebung, nur wenige Kilometer östlich der Landeshauptstadt Graz. Die Lage überzeugt durch ihre ruhige, naturnahe Umgebung und bietet gleichzeitig eine ausgezeichnete Anbindung an das urbane Zentrum.
In einer leicht hügeligen Landschaft zeichnet sich die Umgebung durch eine lockere Bebauung mit Einfamilienhäusern, gepflegten Gärten sowie landwirtschaftlich genutzten Flächen aus. Die Gegend ist besonders bei Familien und Ruhesuchenden beliebt, da sie eine hohe Lebensqualität mit viel Grünraum und Erholungsmöglichkeiten bietet.
Die Verkehrsanbindung ist sehr gut: Das Grazer Stadtzentrum ist sowohl mit dem Auto als auch mit öffentlichen Verkehrsmitteln in kurzer Zeit erreichbar. Wichtige Einrichtungen des täglichen Bedarfs wie Einkaufsmöglichkeiten, Schulen, Kindergärten und medizinische Versorgung befinden sich in den nahegelegenen Gemeinden bzw. der Landeshauptstadt.
Freizeit- und Erholungsmöglichkeiten sind in unmittelbarer Nähe zahlreich vorhanden. Die umliegende Natur lädt zu Spaziergängen, Wanderungen und sportlichen Aktivitäten im Freien ein.
Insgesamt bietet die Lage eine gelungene Kombination aus ländlicher Ruhe und stadtnaher Infrastruktur und eignet sich ideal für alle, die naturnah wohnen und dennoch auf eine gute Erreichbarkeit nicht verzichten möchten.
Beschreibung der Immobilie
Wohnbauprojekt – baugenehmigt! 2 Doppelhäuser in LKH-Nähe
Zum Verkauf steht ein attraktives Grundstück in Schaftal.
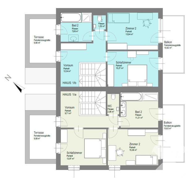
Zwei moderne Doppelhäuser mit Unterkellerung, Wärmepumpen inkl. Schmutzwasserkanalanlage und Versickerungsanlage für Oberflächenwässer können ab sofort realisiert werden. Das Projekt (nach vorliegendem Planentwurf) umfasst pro Doppelhaus 4 Tiefgaragen-Stellplätze, eine PV-Anlage am Dach und Geländeveränderungen. Die Zufahrt zum Grundstück erfolgt über eine bereits bewilligte aber noch nicht hergestellte Brücke.
Bei Interesse übermittle ich Ihnen gerne die weiteren Unterlagen und stehe für Fragen oder eine Besichtigung gerne zur Verfügung
Eckdaten
| Kaufpreis: | 495.000,00 € |
| Fläche: | 1.500,00 m² |
Basisdaten zur Immobilie
| Objektnr: | 0005005073 |
| Art: | Grundstück - Baugrund Eigenheim |
| Land: | Österreich |
| Kaufpreis: | 495.000,00 € |
| Provision: | 3% des Kaufpreises plus 20% USt. |
| Grundstücksfl.: | 1.500,00 m² |
| Gesamtfläche: | 1.500,00 m² |
Internet und TV
Information zur Internet und TV Versorgung hier
Ihre persönliche Beratung
Nicole Puchinger
Raiffeisen Steiermark
nicole.puchinger@rlbstmk.at
22707
+43 664 627 39 91
