Lage der Immobilie
Diese charmante Wohnung in 1220 Wien besticht durch ihre ideale Lage in unmittelbarer Nähe zur Alten Donau. Hier genießen Sie die Ruhe und Natur, während die Annehmlichkeiten des urbanen Lebens nur einen Katzensprung entfernt sind. Ärzte, Apotheken, Schulen, Kindergärten und Supermärkte sind bequem zu Fuß erreichbar. Auch ein Einkaufszentrum, Bäckereien, Banken und öffentliche Verkehrsanbindungen wie Bus, U-Bahn und Straßenbahn sind in der Nähe, was Ihnen höchsten Komfort und Lebensqualität bietet.Beschreibung der Immobilie
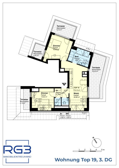
Im 3. Dachgeschoss gelegen, präsentiert sich diese außergewöhnliche Wohnung als das Highlight der gesamten Anlage. Auf rund 79,15 m² Wohnfläche verbindet sie Großzügigkeit, Ruhe und eine hochwertige Ausführung zu einem stimmigen Gesamtbild.
Bereits die Ankunft ist angenehm gelöst – der Lift bringt Sie direkt in die oberste Ebene des Hauses. Beim Betreten der Wohnung zeigt sich sofort die klare Struktur: ein großzügiger Vorraum mit Platz für Garderobe, ein modern gestaltetes Badezimmer sowie eine separate Toilette – funktional, hochwertig und zeitlos ausgeführt.
Der Wohnbereich bildet das Herzstück dieser Wohnung und hebt sich deutlich vom Standard ab. Küche und Wohnraum gehen fließend ineinander über und schaffen eine offene, repräsentative Fläche mit viel Licht und Raum. Hier ist Platz – nicht nur für Möbel, sondern für echtes Wohnen.
Das Schlafzimmer ist ruhig situiert und bietet direkten Zugang zur Loggia. Von hier aus genießen Sie einen angenehmen Blick in Richtung Südwesten zur Alten Donau, die nur etwa 170 Meter entfernt liegt – eine Lage, die sowohl im Alltag als auch in der Freizeit spürbar ist.
Die Wohnung wird als Erstbezug schlüsselfertig übergeben und ist sofort beziehbar. Beheizt wird sie über eine Fußbodenheizung mittels moderner Luftwärmepumpe – effizient, komfortabel und zukunftsorientiert.
Ein Kellerabteil ist selbstverständlich vorhanden und bequem mit dem Lift erreichbar. Je nach Bedarf können ein bis drei Garagenplätze zusätzlich erworben werden – ein nicht zu unterschätzender Vorteil in dieser Lage.
Die Wohnanlage wurde auf einem Baurechtsgrund errichtet. Der Bauzins ist transparent in der Kostenaufstellung unter „Sonstiges“ ausgewiesen.
Eine Dachgeschosswohnung, die sich bewusst vom Üblichen abhebt – großzügig, hochwertig und in einer Lage, die für sich spricht.
Gerne übermitteln wir Ihnen bei einer Online-Anfrage die ausführliche Baubeschreibung mit allen Details.
Wir weisen darauf hin, dass zwischen dem Vermittler und dem zu vermittelnden Dritten ein familiäres oder wirtschaftliches Naheverhältnis besteht.
Der Vermittler ist als Doppelmakler tätig.
Infrastruktur / Entfernungen
Gesundheit
Arzt <500m
Apotheke <500m
Klinik <2.500m
Krankenhaus <3.500m
Kinder & Schulen
Schule <500m
Kindergarten <1.000m
Universität <2.000m
Höhere Schule <1.500m
Nahversorgung
Supermarkt <500m
Bäckerei <500m
Einkaufszentrum <500m
Sonstige
Geldautomat <500m
Bank <500m
Post <500m
Polizei <1.000m
Verkehr
Bus <500m
U-Bahn <500m
Straßenbahn <500m
Bahnhof <500m
Autobahnanschluss <2.000m
Angaben Entfernung Luftlinie / Quelle: OpenStreetMap
Eckdaten
| Kaufpreis: | 720.000,00 € |
| Fläche: | 79,15 m² |
| Zimmer: | 2 |
Basisdaten zur Immobilie
| Objektnr: | 1767 |
| Art: | Wohnung |
| Land: | Österreich |
| Baujahr: | 2025 |
| Zustand: | Erstbezug |
| Alter: | Neubau |
| Kaufpreis: | 720.000,00 € |
| Kaufpreis / m²: | 9.096,65 € |
| Provision: | 25.920,00 € inkl. 20% USt. |
| Betriebskosten: | 168,10 € |
| MwSt Gesamt: | 20,01 € |
| Wohnfläche: | 79,15 m² |
| Zimmer: | 2 |
| Bäder: | 1 |
| WC: | 1 |
| Terrassen: | 4 |
| Heizwärmebedarf: | B 27,30 kWh/m²a |
| fGEE: | A+ 0,68 |
Ausstattung
Fliesen, Parkettboden, Fußbodenheizung, Zentralheizung, Personenaufzug, Badewanne
Internet und TV
Information zur Internet und TV Versorgung hier
Ihre persönliche Beratung
Ing. Richard Gstettner
RG3 Immobilientreuhand GmbH
office@rg3-immo.at
0676 3121180
