Renovierter Altbau-Charme mit hofseitiger Loggia
Wohnung
- Etage,
1150
Wien
Lage der Immobilie
Talgasse (15., Fünfhaus), benannt (um 1864/1869) nach dem Gefälle zum Wiental; vorher Josefigasse.Beschreibung der Immobilie
Leben im florierenden Reindorfviertel
Diese fantastische Wohnung mit Loggia befindet sich in einem 2021 neu revitalisierten Altbau im 2.Stock mit Lift und ist noch bis 15.06.2026 befristet vermietet.
Schlagen Sie jetzt schon zu, danach ist sie perfekt für den Eigenbedarf als feine Stadtwohnung für Sie oder Ihre Kinder geeignet.
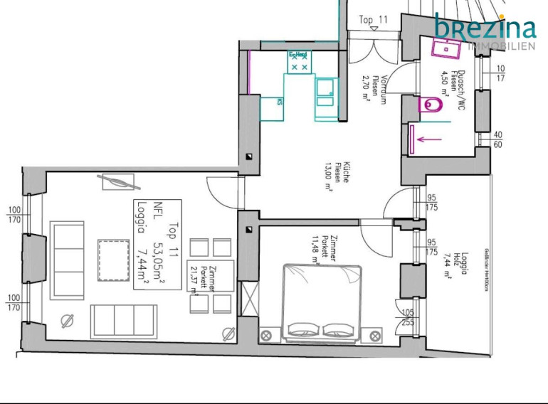
- Einladendes Vorzimmer
- Wohnzimmer ca. 21,37 m²
- sep. hofseitiges Schlafzimmer ca. 11,48 m²
- Küche möbliert mit Tischlerküche
- Badezimmer mit Dusche, WC und Waschmaschinenanschluss
- Loggia ca. 7,44 m², begehbar vom Vorzimmer und Schlafzimmer
- Flügeltür zwischen WZ & SZ
- neue Kunststofffenster
- Parkettboden - Dielen
- Video Gegensprechanlage
- Kellerabteil vorhanden
- Fahrradabstellraum vorhanden
- Orientierung O/W
Die unmittelbare Umgebung:
- Die Talgasse befindet sich in einem Viertel des 15. Bezirks, dass in den letzten Jahren durch zahlreiche Initiativen neu belebt und aufgewertet wurde.
- Die Wohnumgebung ist ruhig, zugleich vielfältig und lebendig durch die Nähe zur Äußeren Mariahilferstraße und Reindorfgasse sowie dem neuen Westbahnhof.
Die zentrale Lage und unmittelbare Anbindung an den öffentlichen Verkehr halten die Wege gering - sowohl zum Arbeitsplatz in der City als auch hinaus an die grünen Grenzen Wiens. Von der Talgasse aus sind alle Geschäfte des täglichen Bedarfs (Lebensmittel, Restaurants, Bekleidungsgeschäfte) sowie auch Banken und diverse Arztpraxen in nur wenigen Gehminuten erreichbar. Nur wenige Gehminuten entfernt befindet sich die U6-Station Gumpendoferstraße sowie Westbahnhof. Weitere öffentliche Verkehrsmittel sind die Buslinien 12A, 48A und die Straßenbahn 49. Eine Schule liegt in unmittelbarer Gehweite und Kindergärten sind in der Umgebung vorhanden. Das Schloss Schönbrunn mit dem dortigen Naherholungsgebiet kann fußläufig erreicht werden. Zahlreiche Einkaufsmöglichkeiten u.a. auch die IKEA CITY befinden sich in unmittelbarer Nähe. Die Mariahilfer Straße ist die größte und eine der bekanntesten Einkaufsstraßen Wiens, diese bietet Ihnen zudem eine Vielzahl an kulinarischen Restaurants und trendigen Szene-Lokalen.
- Mehrere Apotheken: ca. 4 - 10 Gehminuten
- Ärzte: ca. 1 - 15 Gehminuten
- Barmherzige Schwestern Krankenhaus Wien: ca. 15 Gehminuten
- SPAR: ca. 4 Gehminuten
- BILLA: ca. 11 Gehminuten
- PENNY Markt: ca. 12 Gehminuten
- Volksschulen: ca. 4 - 15 Gehminuten
- Kindergärten und Hort: ca. 4 - 17 Gehminuten
- Neue Mittelschulen: ca. 1 - 20 Gehminuten
- Gymnasium: ca. 3 Gehminuten
- Restaurants in der Umgebung fußläufig zu erreichen
- Raimund Theater: ca. 8 Gehminuten
- IKEA City: ca. 7 Gehminuten
- Schönbrunn: ca. 20 Gehminuten
- Technisches Museum: ca. 18 Gehminuten
- Wiener Stadthalle: ca. 20 Gehminuten
- Schloss Schönbrunn: ca. 15 Minuten mit Straßenbahn
- U4 Vienna: ca. 18 Gehminuten
- Reithofferpark: ca. 15 Gehminuten
- Stadtwildnis: ca. 10 Gehminuten
- Bruno-Kreisky-Park: ca. 14 Gehminuten
Öffentliche Verkehrsmittel:
- U-Bahn Station U3 Westbahnhof: ca. 10 Gehminuten
- U-Bahn Station U6 Westbahnhof: ca. 10 Gehminuten
- Straßenbahnstationen 60 Westbahnhof: ca. 10 Gehminuten
- Straßenbahnstationen 9 Geibelgasse: ca. 4 Gehminuten
- Straßenbahnstationen 18 Geibelgasse: ca. 4 Gehminuten
- Straßenbahnstationen 49 Geibelgasse: ca. 4 Gehminuten
- Straßenbahnstationen 52 Geibelgasse: ca. 4 Gehminuten
- Busstation 12A Geibelgasse: ca. Gehminuten
- Busstation 57A: ca. 4 Gehminuten
- Busstation VAL 1 Westbahnhof: ca. Gehminuten
- Nachtbus N6 Westbahnhof: ca. 12 Gehminuten
- Nachtbus N8 Westbahnhof: ca. 12 Gehminuten
- Nachtbus N49 Westbahnhof: ca. 12 Gehminuten
- Nachtbus N54 Westbahnhof: ca. 12 Gehminuten
Weitere Informationen:
- Doppelmakler: JA
- Wirtschaftliches Naheverhältnis: JA
- Weitere Unterlagen wie zB. EA,Grundrisse, Wohnungseigentumsvertrag, Vorausschau etc. können separat angefragt werden.
- Hinweis: Wir dürfen Sie auf die neuen EU-Verbraucherrichtlinien (VRUG/FAGG), welche mit 13.Juni 2014 rechtskräftig geworden sind, aufmerksam machen. Diese bedingen eine ausdrückliche, schriftliche Aufforderung von Ihrer Seite, dass Sie unsere Dienstleistungen in Anspruch nehmen möchten.
- Gerne können Sie auch direkt über unsere Seite, www.brezina.at ein Suchprofil anlegen, oder wir besprechen persönlich Ihre Wünsche und können Ihnen ggf. gleich weitere Immobilien anbieten.
Wir weisen darauf hin, dass zwischen dem Vermittler und dem zu vermittelnden Dritten ein familiäres oder wirtschaftliches Naheverhältnis besteht.
Der Vermittler ist als Doppelmakler tätig.
Infrastruktur / Entfernungen
Gesundheit
Arzt <500m
Apotheke <500m
Klinik <500m
Krankenhaus <1.000m
Kinder & Schulen
Schule <500m
Kindergarten <500m
Universität <500m
Höhere Schule <1.500m
Nahversorgung
Supermarkt <500m
Bäckerei <500m
Einkaufszentrum <1.500m
Sonstige
Geldautomat <1.000m
Bank <1.000m
Post <500m
Polizei <500m
Verkehr
Bus <500m
U-Bahn <500m
Straßenbahn <500m
Bahnhof <500m
Autobahnanschluss <4.000m
Angaben Entfernung Luftlinie / Quelle: OpenStreetMap
Eckdaten
| Kaufpreis: | 345.000,00 € |
| Fläche: | 52,90 m² |
| Zimmer: | 2 |
Basisdaten zur Immobilie
| Objektnr: | 10684 |
| Art: | Wohnung - Etage |
| Land: | Österreich |
| Baujahr: | 1900 |
| Alter: | Altbau |
| Kaufpreis: | 345.000,00 € |
| Provision: | 12.420,00 € inkl. 20% USt. |
| Betriebskosten: | 124,46 € |
| Heizkosten: | 65,40 € |
| MwSt Gesamt: | 25,53 € |
| Wohnfläche: | 52,90 m² |
| Nutzfläche: | 60,34 m² |
| Zimmer: | 2 |
| Bäder: | 1 |
| WC: | 1 |
| Keller: | 2,39 m² |
| Heizwärmebedarf: | B 32,20 kWh/m²a |
| fGEE: | B 0,93 |
Ausstattung
Parkett, Dielenboden, Fliesen, Gas, Zentralheizung, Einbauküche, Personenaufzug, Westbalkon, Bad mit Fenster, Dusche
Internet und TV
Information zur Internet und TV Versorgung hier
Ihre persönliche Beratung
Ulrike Höreth
Brezina-Real
u.hoereth@brezina.at
+43 664 454 13 56
