Renovierte, attraktive Werkstatt | 2 Zimmer - 80 m² | Küche & Badezimmer | Nähe Aumannplatz
Halle / Lager / Produktion
,
1180
Wien
,
Währinger Straße
Lage der Immobilie
Diese attraktive Gewerbeimmobilie in 1180 Wien besticht durch ihre hervorragende Lage nahe dem Aumannplatz. Umgeben von einer vielfältigen Infrastruktur, stehen Ihnen zahlreiche Annehmlichkeiten zur Verfügung: Ärzte, Apotheken, Schulen und Kindergärten befinden sich in unmittelbarer Nähe. Auch Supermärkte, Bäckereien und Geldautomaten sind schnell erreichbar. Die Anbindung an öffentliche Verkehrsmittel ist optimal – egal ob Bus, Straßenbahn oder Bahnhof, hier sind Sie bestens vernetzt.Beschreibung der Immobilie
Gewerbefläche in zentraler Lage!
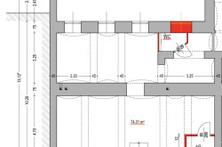
Das Gebäude befindet sich in sehr zentraler Lage, mit hervorragender Infrastruktur und perfekter öffentlicher Anbindung, im 18. Wiener Gemeindebezirks, in Währing. Die vielseitige Werkstatt, liegend im Souterrain, wurde hochwertig saniert und ist vielseitig nutzbar. Mit einer großzügigen Fläche von ca. 80 m² und zwei praktisch aufgeteilten Zimmern steht Ihnen hier eine Immobilie voller Möglichkeiten zur Verfügung. Die separate Küche bietet die Möglichkeit, auch während der Arbeit eine kleine Pause einzulegen, das Badezimmer mit WC sorgt für zusätzlichen Komfort. Die Werkstatt ist weiters mit einer Etagenheizung ausgestattet, die für ein angenehmes Arbeitsklima sorgt.
Der Kaufpreis von 179.000,00 € macht diese Immobilie zu einer attraktiven Investition in einer gefragten Lage. Mit Bus, Straßenbahn und Bahnhof in unmittelbarer Nähe ist man bestens angebunden. Dies sorgt nicht nur für eine einfache Erreichbarkeit, sondern auch für eine hohe Frequentierung, die der Geschäftstätigkeit zugutekommt. Die Kombination aus einer attraktiven Lage, einer soliden Infrastruktur und der Möglichkeit, die Räumlichkeiten nach den eigenen Wünschen zu gestalten, macht diese Gewerbeimmobilie zu einer echten Rarität.
Virtueller 3D Immobilien Rundgang: JETZT STARTEN
Fakten | Highlights | Ausstattung
- 80 m² Fläche
- 2 Räume + Küche
- Dusche + Toilette
- 1 Abstellraum
- Gute öffentliche Anbindung
- Sehr gute Infrastruktur
- Zentrale Lage
Wir weisen darauf hin, dass zwischen dem Vermittler und dem zu vermittelnden Dritten ein familiäres oder wirtschaftliches Naheverhältnis besteht.
Der Vermittler ist als Doppelmakler tätig.
Maklervereinbarung & gesetzliche Hinweispflichten
Wir ersuchen um Verständnis, dass wir bei Anfragen zur Objektadresse bzw. für einen Besichtigungstermin, aufgrund aktueller gesetzlicher Bestimmungen, Unterlagen erst dann zusenden können, wenn Sie uns vorab bestätigen, dass Sie unser sofortiges Tätigwerden wünschen und über Ihre Rücktrittsrechte und Nebenkosten aufgeklärt wurden. Sie bekommen nach Ihrer schriftlichen Anfrage mit vollständiger Angabe Ihres Namens, Anschrift und Telefonnummer ein E-Mail zugesandt, in der Sie diese Punkte bestätigen können.
Infrastruktur / Entfernungen
Gesundheit
Arzt <250m
Apotheke <250m
Klinik <750m
Krankenhaus <1.250m
Kinder & Schulen
Schule <250m
Kindergarten <250m
Universität <1.000m
Höhere Schule <250m
Nahversorgung
Supermarkt <500m
Bäckerei <250m
Einkaufszentrum <1.250m
Sonstige
Geldautomat <500m
Bank <750m
Post <750m
Polizei <250m
Verkehr
Bus <250m
U-Bahn <1.250m
Straßenbahn <250m
Bahnhof <500m
Autobahnanschluss <2.750m
Angaben Entfernung Luftlinie / Quelle: OpenStreetMap
Eckdaten
| Kaufpreis: | 169.000,00 € |
| Fläche: | 80,04 m² |
| Zimmer: | 3 |
Basisdaten zur Immobilie
| Objektnr: | 6819/367 |
| Art: | Halle / Lager / Produktion |
| Land: | Österreich |
| Baujahr: | 1907 |
| Alter: | Altbau |
| Kaufpreis: | 169.000,00 € |
| Kaufpreis / m²: | auf Anfrage |
| Provision: | 3% des Kaufpreises zzgl. 20% USt. |
| Betriebskosten: | 199,60 € |
| Sonstige Kosten: | 88,16 € |
| Nutzfläche: | 80,04 m² |
| Lagerfläche: | 80,04 m² |
| Zimmer: | 3 |
| Bäder: | 1 |
| WC: | 1 |
| Heizwärmebedarf: | F 215,00 kWh/m²a |
| fGEE: | D 1,87 |
Ausstattung
Gas, Etagenheizung, Einbauküche
Internet und TV
Information zur Internet und TV Versorgung hier
Ihre persönliche Beratung
Alexander Kratzer
KRATZER Immobilien OG
office@kratzer-immobilien.at
+43 677 61002926
