Bestlage beim Hamerlingplatz! Sonnige und möblierte 2-Zimmer-Altbau-Wohnung in Vorstadthaus
Wohnung
,
1080
Wien
Beschreibung der Immobilie
Zum sofortigen Verkauf gelangt eine lichtdurchflutete, stilvoll möblierte Altbau-Wohnung mit ca. 55,00 m² Wohnfläche im ersten Obergeschoss in einem liebevoll renovierten Vorstadthaus. Das Apartment wurde im Jahre 2012 umfassend saniert.
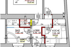
Man betritt die Wohnung über einen Vorraum, von dem aus alle Räume dieses Apartments zentral begehbar sind. Das großzügige Wohnzimmer mit ca. 21,00 m² sorgt mit seinen großen Fenstern für ein sonniges und lichtdurchflutetes Ambiente und unterstreicht den zeitlosen Altbau-Charakter dieser Wohnung. Hochwertige Möbel und stilvolle Details schaffen eine absolute Wohlfühl-Atmosphäre, die Wärme und Exklusivität verbindet.
Über den zentralen Flur gelangt man in das moderne, geräumige Badezimmer, welches mit Badewanne, Dusche, Handtuchwärmer und einem Waschbecken mit Unterschrank ausgestattet ist, sowie zu einer separaten Toilette.
Weiters erreicht man direkt die komplett ausgestattete Küche sowie das gemütliche, lichtdurchflutete Schlafzimmer.
Diese perfekt geschnittene Altbau-Wohnung bewahrt in gelungener Weise den Charme vergangener Zeiten und bietet gleichzeitig ein stilvolles und modernes Wohnerlebnis.
+ erste Etage
+ ca. 54,91 m² Wohnfläche
+ ca. 21,15 m² Wohnzimmer
+ ca. 11,93 m² Schlafzimmer
+ ca. 7,41 m² Küche
+ ca. 7,66 m² Badezimmer
+ ca. 5,46 m² Vorraum
+ separate Toilette
Ausstattung
+ Vollholz-Parkettböden
+ Fliesenböden im Flur und in den Nassräumen
+ stilvolle Möblierung und Designer-Ausstattung
+ komplett ausgestattete Küche mit Kühl-Gefrier-Kombination, Ceranfeld, Herd, Geschirrspüler und kleinem Steh-Essplatz
+ modern ausgestattetes Badezimmer mit Badewanne, Dusche, Waschbecken sowie Handtuchwärmer
+ Gasetagenheizung
+ begrünter Innenhof zur gemeinschaftlichen Nutzung
+ Fahrrad-Abstellmöglichkeit im Innenhof
Verkehrsanbindung
+ U-Bahn-Linie U6
+ Straßenbahn-Linien 2, 5, 32 und 46
+ Autobus-Linie 13A
Die Wiener Innenstadt ist innerhalb von 15 Minuten auch fußläufig erreichbar.
Lage und Infrastruktur
Der achte Wiener Gemeindebezirk "Josefstadt" zählt zu den bevorzugten Wohngegenden Wiens. In unmittelbar fußläufiger Nähe befinden sich sämtliche Geschäfte des täglichen Bedarfs, herrliche Kaffeehäuser sowie diverse Szene-Lokale und gemütliche Restaurants. Das Theater in der Josefstadt befindet sich in nur zehn Gehminuten Entfernung. Die Nähe des kleinsten Wiener Gemeindebezirks zur Wiener Innenstadt und die architektonische Struktur der aus den im 18., 19. und frühen 20. Jahrhundert erbauten Zinshäusern bieten hierbei eine besondere Atmosphäre.
Die ausgesprochen gute Lage nahe der Josefstädter Straße und dem Hamerlingpark besticht nicht nur durch eine hervorragende Infrastruktur, sondern auch durch eine ideale Verkehrsanbindung.
Als Grünflächen und Naherholungsgebiete bieten sich der Hamerlingpark, der Schönbornpark sowie der Kinderspielplatz im Tigerpark in fußläufiger Entfernung zum Verweilen an.
Sonstiges
Die Benutzung des Personenliftes ist nach Vereinbarung mit der Hausverwaltung jederzeit möglich und betragen die Betriebskosten hierfür ca. 50,00 plus 10% USt.
Die Möblierung ist im Kaufpreis bereits enthalten.
Wir ersuchen um Verständnis, dass wir aufgrund unserer Nachweispflicht gegenüber dem Eigentümer nur Anfragen mit vollständigen Kontaktdaten (Name, Adresse, Mobilnummer, Email) bearbeiten können.
Der Vermittler ist als Doppelmakler tätig.
Infrastruktur / Entfernungen
Gesundheit
Arzt <500m
Apotheke <500m
Klinik <500m
Krankenhaus <1.000m
Kinder & Schulen
Schule <500m
Kindergarten <500m
Universität <1.000m
Höhere Schule <500m
Nahversorgung
Supermarkt <500m
Bäckerei <500m
Einkaufszentrum <1.000m
Sonstige
Geldautomat <500m
Bank <500m
Post <500m
Polizei <500m
Verkehr
Bus <500m
U-Bahn <500m
Straßenbahn <500m
Bahnhof <500m
Autobahnanschluss <4.000m
Angaben Entfernung Luftlinie / Quelle: OpenStreetMap
Eckdaten
| Kaufpreis: | 435.000,00 € |
| Fläche: | 54,91 m² |
| Zimmer: | 2 |
Basisdaten zur Immobilie
| Objektnr: | 3996 |
| Art: | Wohnung |
| Land: | Österreich |
| Baujahr: | 1856 |
| Zustand: | Teil_vollrenoviert |
| Möbliert: | Voll |
| Alter: | Altbau |
| Kaufpreis: | 435.000,00 € |
| Provision: | 3% des Kaufpreises zzgl. 20% USt. |
| Betriebskosten: | 166,32 € |
| MwSt Gesamt: | 16,63 € |
| Wohnfläche: | 54,91 m² |
| Nutzfläche: | 54,91 m² |
| Zimmer: | 2 |
| Bäder: | 1 |
| WC: | 1 |
| Heizwärmebedarf: | D 130,20 kWh/m²a |
| fGEE: | D 2,07 |
Ausstattung
Parkett, Fliesen, Gas, Etagenheizung, Einbauküche, Personenaufzug, Dusche, Bad mit Fenster, Badewanne, Kabel/Satelliten-TV
Internet und TV
Information zur Internet und TV Versorgung hier
Ihre persönliche Beratung
Gabriela Luksch
Gottlieb Properties Immobilientreuhand GmbH
gabriela.luksch@gottliebproperties.at
+43 660 5133361
