Beschreibung der Immobilie
Zu kaufen ist dieses großzügige Ein- oder Zweifamilienhaus mit zweitem Grundstück unweit von der Wiener Stadtgrenze.
Das Objekt besteht aus zwei Grundstücken:
Auf dem 537m² großen Grundstück an der Straße befindet sich das Wohnhaus.
Dahinter befindet sich ein 542m² großes unbebautes Grundstück, welches momentan als Garten benutzt wird, aber auch bebaut oder weiterverkauft werden kann.
Nutzungsmöglichkeiten:
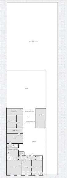
Als Einfamilienhaus mit ca. 176m² Wohnfläche mit 6-7 Zimmern, Küche(n), 2 Bäder, 2 WCs, zusätzlich kleiner Kellerraum und Nebengebäude mit Garage.
oder
Als Zweifamilienhaus mit separaten Eingängen mit einer 59m² (Zwei Zimmer, Küche, Bad, WC) Wohneinheit im Erdgeschoß und einer 85m² (2 Schlafzimmer, Wohnzimmer, Küche, Bad, WC, Abstellraum) Wohneinheit im Obergeschoß, zusätzlich noch gemeinsames Vorzimmer, Stüberl, kleiner Kellerraum und Nebengebäude mit Garage.
Das Haus wurde 1992 auf die heutige Größe ausgebaut und aufgestockt.
Beheizung und Warmwasseraufbereitung erfolgt im Erdgeschoß mittels Gastherme, die Heizung im Obergeschoß mittels Elektroheizkörper.
Die 2-fach verglasten Internorm-Fenster sind von 2009 und mit Außenjalousien und Insektenschutzgittern ausgestattet.
Das Haus wurde innen und außen 2026 neu ausgemalt.
Die Nebengebäude werden derzeit als Werkstatt, Lager und Außenküche genutzt, die Garage ist mit einer Grube zum Autoschrauben ausgestattet.
Bebaubarkeit des zweiten Grundstücks:
Bauklasse I + II
Verbaubare Fläche ca. 130m²
Aufschließung ist bezahlt.
DAVE-Startpreis: 470.000€
Besichtigungsmöglichkeiten nach Voranmeldung:
Fr., 10.04.2026, 15:00-17:00 Uhr
Fr., 17.04.2026, 14:30-16:30 Uhr
Nachdem Sie die Immobilie besichtigt haben, bekommen Sie den Link zum DAVE-Bieterverfahren, wo alle Unterlagen hinterlegt sind. Wenn die Finanzierung gesichert ist, können Sie bis voraussichtlich 09.05.2026 mitbieten.
Wir empfehlen die Finanzierung, unabhängig davon welche Immobilie Sie kaufen, bereits vorab zu klären, damit Sie, wenn die passende Immobilie kommt, rasch zuschlagen können.
Noch nichts gefunden? Wir informieren Sie über geeignete Immobilienangebote noch vor allen anderen.
Legen Sie jetzt Ihren individuellen Suchagenten unter folgendem Link an. Wir schicken Ihnen passende Immobilien exklusiv vorab zu.
Suchagent anlegen - https://remax-vital.service.immo/registrieren/de
Infrastruktur / Entfernungen
Gesundheit
Apotheke <1.000m
Arzt <3.500m
Krankenhaus <5.000m
Kinder & Schulen
Kindergarten <500m
Schule <3.000m
Nahversorgung
Supermarkt <500m
Bäckerei <1.000m
Sonstige
Post <500m
Geldautomat <1.000m
Bank <1.000m
Polizei <2.000m
Verkehr
Bus <500m
Autobahnanschluss <3.500m
Bahnhof <3.500m
Flughafen <4.000m
Angaben Entfernung Luftlinie / Quelle: OpenStreetMap
Eckdaten
| Kaufpreis: | 470.000,00 € |
| Fläche: | 176,00 m² |
| Zimmer: | 6 |
Basisdaten zur Immobilie
| Objektnr: | 2434/2200 |
| Art: | Haus - Zweifamilienhaus |
| Land: | Österreich |
| Baujahr: | 1992 |
| Kaufpreis: | 470.000,00 € |
| Provision: | 3% des Kaufpreises zzgl. 20% USt. |
| Wohnfläche: | 176,00 m² |
| Grundstücksfl.: | 1.079,00 m² |
| Zimmer: | 6 |
| Bäder: | 2 |
| WC: | 2 |
Ausstattung
Elektro, Gas, Etagenheizung, Einbauküche, Dusche, Kabel/Satelliten-TV, Garage, Parkplatz
Internet und TV
Information zur Internet und TV Versorgung hier
Ihre persönliche Beratung
Ingeborg NAGL
RE/MAX Vital
i.nagl@remax-vital.at
+43 1 70 70 900
+43 664 100 300 8
