Ideale Gewerbeliegenschaft für Logistik & Produktion – mit Büro und Wohnung
Halle / Lager / Produktion
- Produktion,
2522
Oberwaltersdorf
Beschreibung der Immobilie
OBJEKT
Zum Verkauf steht ein vielseitig nutzbares Gewerbeobjekt im Bauland-Betriebsgebiet (Bauklasse III). Derzeit ist eine Baufirma eingemietet, jedoch eignet sich das Areal aufgrund seiner Struktur und Flächen ideal für Produktionsbetriebe, Logistikunternehmen oder Lagerstätten.
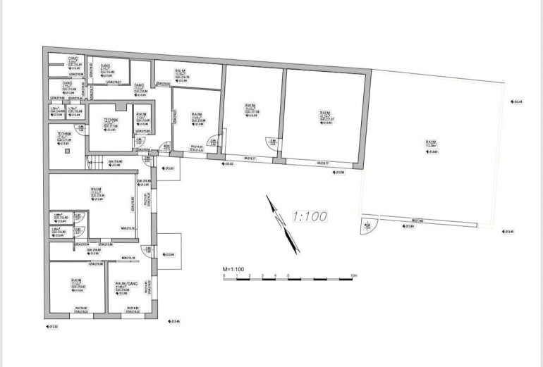
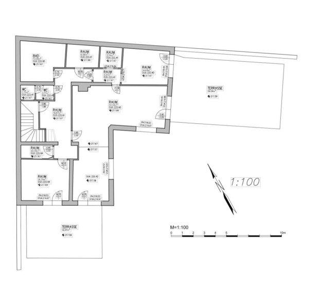
Die Liegenschaft bietet 4.647 m² Grundfläche, aufgeteilt auf großzügige Hallen- und Lagerbereiche. Zusätzlich stehen eine Wohnung mit 126 m² sowie ein neu saniertes Büro mit 70 m² zur Verfügung – optimale Ergänzungen für Betriebsleiter, Mitarbeiter oder Verwaltung.
FAST FACTS
- Grundstücksgröße 4.647 m²
- Bauland-Betriebsgebiet, Bauklasse III
- Wohnung -126 m² / Terasse - 63 m²
- Saniertes Büro - 70m²
- Autobahn in 3 Minuten, Wien in 15–20 Minuten erreichbar
LAGE & VERKEHRSANBINDUNG
Die Anbindung ist besonders attraktiv:
- 3 Minuten zur Autobahn
- ca. 15–20 Minuten ins Stadtzentrum Wien
Damit bietet die Liegenschaft die ideale Kombination aus ruhiger Betriebsumgebung und hervorragender Erreichbarkeit.
BESICHTIGUNG
Aus Sicherheitsgründen stehen aktuell keine Fotos von den Lagerflächen zur Verfügung. Selbstverständlich können diese bei einer persönlichen Besichtigung vor Ort umfassend besichtigt werden.
Der Energieausweis ist bereits bestellt, und wird nachgereicht.
RECHTLICHES
In Entsprechung des FAGG (Fern- und Auswärtsgeschäfte-Gesetz) und des VRUG (Verbraucherrechte-Richtlinie-Umsetzungsgesetz) ist es uns leider nur mehr möglich, Termine nach Erhalt einer schriftlichen Anfrage mit vollständigen Kontaktdaten zu vereinbaren. Dies gilt ebenso für die Nennung relevanter Informationen wie z.B. der Lage. Sehr gerne sind wir auf diesem Wege bereit, die gewünschten Informationen und Unterlagen samt Adresse an Sie zu senden.
Unbedingt erforderlich sind:
+ Vor- und Nachname
+ aktuelle Meldeadresse (Hauptwohnsitz)
+ Telefonnummer
+ E-Mail Adresse
Sämtliche Informationen wurden uns von den Eigentümern, sowie von externen Stellen zur Verfügung gestellt. Für die Richtigkeit der Daten, sowie für Irrtum, Satz- und Druckfehler kann unsererseits keine Haftung übernommen werden.
Infrastruktur / Entfernungen
Gesundheit
Arzt <1.000m
Apotheke <1.500m
Klinik <5.000m
Krankenhaus <7.000m
Kinder & Schulen
Kindergarten <1.500m
Schule <1.500m
Nahversorgung
Supermarkt <1.500m
Bäckerei <1.500m
Einkaufszentrum <6.500m
Sonstige
Bank <1.000m
Geldautomat <1.000m
Post <3.000m
Polizei <3.000m
Verkehr
Bus <1.000m
Bahnhof <1.000m
Autobahnanschluss <3.000m
Straßenbahn <7.000m
Flughafen <6.000m
Angaben Entfernung Luftlinie / Quelle: OpenStreetMap
Eckdaten
| Kaufpreis: | 1.495.000,00 € |
| Fläche: | 312,00 m² |
Basisdaten zur Immobilie
| Objektnr: | 2699/1712 |
| Art: | Halle / Lager / Produktion - Produktion |
| Land: | Österreich |
| Baujahr: | 1980 |
| Alter: | Neubau |
| Kaufpreis: | 1.495.000,00 € |
| Kaufpreis / m²: | auf Anfrage |
| Provision: | 3% des Kaufpreises zzgl. 20% USt. |
| Nutzfläche: | 312,00 m² |
| Grundstücksfl.: | 4.647,00 m² |
Internet und TV
Information zur Internet und TV Versorgung hier
Ihre persönliche Beratung
Eldin Cankovic
RE/MAX Welcome Hornyik Immobilienmakler GmbH&CoKG
e.cankovic@remax-welcome.at
0667 77 99 556
