Lage der Immobilie
Nähe WolfersbergBeschreibung der Immobilie
Charmantes Einfamilienhaus mit Südgarten, Pool & Wienerwaldblick
In einer der begehrtesten Wohnlagen des 14. Bezirks (Penzing) – gelangt dieses charmante Einfamilienhaus mit großzügigem Garten und viel Potenzial zum Verkauf. Die ruhige, grüne Umgebung am Rand des Wienerwaldes kombiniert naturnahes Wohnen mit einer sehr guten Anbindung an die Wiener Innenstadt.
Haus & Raumaufteilung
Das ursprünglich im Jahr 1968 errichtete Haus wurde 1975 zu einem Einfamilienhaus erweitert.
Der Eingangsbereich wurde aus der ehemaligen Terrasse entwickelt und später über einen großzügigen, stark verglasten Wintergarten erweitert. Dieser lichtdurchflutete Bereich ist mit Jalousien ausgestattet und schafft eine freundliche Verbindung zwischen Haus und Garten. Ein weitere Zugang ist über die Rückseite des Hauses möglich.
Das zentrale Wohnzimmer mit rund 30 m² bildet das Herzstück des Hauses. Der angrenzende Wintergarten Ein historischer Holzkamin sorgt hier für eine besonders gemütliche Atmosphäre. Der angrenzende Wintergarten Große Fensterflächen bieten einen schönen Blick in den Garten und führen weiter zum vorgelagerten Wintergarten bzw. zur Terrasse.
Die angrenzende Küche verfügt über ca. 6 m². Zusätzlich befindet sich im Erdgeschoss ein weiterer Raum, der sich ideal als zweiter Essbereich oder Frühstückszimmer eignet. Ebenfalls auf dieser Ebene liegt der Heizkesselraum. verfügt über
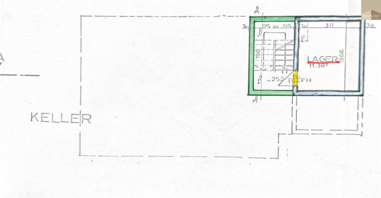
Im Kellergeschoss besteht nur aus einem Raum in diesem sich der alte inaktive Öltank befindet. Weitere Kellerräume sind nicht vorhanden.
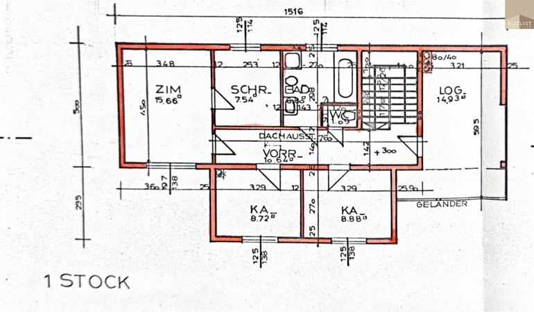
Obergeschoss
Das Obergeschoss bietet eine klassische Familienaufteilung:
- 3 Schlafzimmer mit ca. 16 m², 9 m² und 9 m²
- zentral begehbarer Flur
- zusätzlicher Schrankraum mit ca. 8 m²
- Badezimmer (ca. 8 m²)
- separates WC
Ein besonderes Highlight ist die offene Loggia im östlichen Gebäudeteil, die sich unter dem Dach befindet. Sie verfügt über einen offenen Kamin und bietet einen wunderschönen Blick auf die Hügel des Wienerwaldes und die umliegenden Grünflächen des 14. Bezirks.
Dachgeschoss
Der ausgebaute Dachstuhl wurde früher als Hobbyraum genutzt und bietet zusätzliche Nutzfläche.
Garten & Außenbereich
Das Grundstück besticht durch einen großen, sonnigen Südgarten mit viel Privatsphäre. Vor dem Haus befindet sich ein südseitig ausgerichtetes Schwimmbecken.
Zusätzlich stehen mehrere ältere Nebengebäude und Gartenhäuser am Grundstück, darunter auch ein Saunahaus.
Parken & Zufahrt
- elektrisches Garagentor
- Carport
Lage & Infrastruktur
Der Wolfersberg zählt zu den beliebtesten Wohnlagen im Westen Wiens und bietet eine ideale Kombination aus Natur, Ruhe und guter Verkehrsanbindung.
- Buslinie 43A in unmittelbarer Nähe
- ca. 10 Minuten zum Bahnhof Hütteldorf und U4-Station Hütteldorf
- Anbindung an das Stadtzentrum
- unmittelbare Nähe zum Wienerwald mit zahlreichen Spazier- und Freizeitmöglichkeiten
Highlights auf einen Blick
- begehrte Ruhelage am Wolfersberg (1140 Wien)
- großer Südgarten mit Pool
- Wintergarten & Terrasse
- historischer Kamin im Wohnzimmer
- Loggia mit Kamin und Wienerwaldblick
- 3 Schlafzimmer + Schrankraum
- ausgebauter Dachboden / Hobbyraum
- Garage / Carport mit elektrischem Tor
- gute Öffi-Anbindung zur U4 Hütteldorf
Dieses Haus bietet eine seltene Gelegenheit, ein Objekt in einer der grünsten und ruhigsten Lagen Wiens zu erwerben – ideal für Familien oder Liebhaber von naturnahem Wohnen mit Entwicklungspotenzial.
Gerne übermitteln wir Ihnen weitere Informationen oder vereinbaren einen Besichtigungstermin.
Unser nachhaltiger Denkansatz sieht auch die Vermeidung unnötiger Ausdrucke in Papierform vor. Daher geben Sie uns bitte Bescheid, ob Sie die Unterlagen in gedruckter Form ausgehändigt haben möchten oder ob wir sie Ihnen einfach per E-Mail zusenden sollen. Wir richten uns gerne nach Ihren Wünschen!
Wir weisen darauf hin, dass zwischen dem Vermittler und dem zu vermittelnden Dritten ein familiäres oder wirtschaftliches Naheverhältnis besteht.
Der Vermittler ist als Doppelmakler tätig.
Infrastruktur / Entfernungen
Gesundheit
Arzt <1.750m
Apotheke <1.000m
Klinik <3.500m
Krankenhaus <2.500m
Kinder & Schulen
Schule <750m
Kindergarten <1.000m
Universität <1.000m
Höhere Schule <6.000m
Nahversorgung
Supermarkt <750m
Bäckerei <1.500m
Einkaufszentrum <1.750m
Sonstige
Geldautomat <1.500m
Bank <1.500m
Post <1.750m
Polizei <1.750m
Verkehr
Bus <250m
U-Bahn <2.000m
Straßenbahn <1.500m
Bahnhof <750m
Autobahnanschluss <1.750m
Angaben Entfernung Luftlinie / Quelle: OpenStreetMap
Eckdaten
| Kaufpreis: | 849.000,00 € |
| Fläche: | 120,00 m² |
| Zimmer: | 4 |
Basisdaten zur Immobilie
| Objektnr: | 311042 |
| Art: | Haus |
| Land: | Österreich |
| Zustand: | Gepflegt |
| Möbliert: | Voll |
| Alter: | Neubau |
| Kaufpreis: | 849.000,00 € |
| Kaufpreis / m²: | auf Anfrage |
| Provision: | 3% des Kaufpreises zzgl. 20% USt. |
| Wohnfläche: | 120,00 m² |
| Grundstücksfl.: | 712,00 m² |
| Zimmer: | 4 |
| Bäder: | 1 |
| WC: | 2 |
| Stellplätze: | 1 |
| Heizwärmebedarf: | G 387,10 kWh/m²a |
| fGEE: | G 4,34 |
Ausstattung
Fliesen, Öl, Zentralheizung, Einbauküche, Bad mit Fenster, Badewanne, Dusche, Kabel/Satelliten-TV, Carport, Swimmingpool
Internet und TV
Information zur Internet und TV Versorgung hier
Ihre persönliche Beratung
Peter Krammer
BESTLIST Immobilien GmbH
anfrage@bestlist.immo
+43 2252 25 28 28
+43 676 31 31 657
