Etablierter, aktiver Pensionsbetrieb in Kritzendorf bei Klosterneuburg
Gastgewerbe
- Pensionen,
3420
Kritzendorf
,
Hauptstraße
Beschreibung der Immobilie
Zum Verkauf gelangt diese gepflegte Liegenschaft in Kritzendorf bei Klosterneuburg.
Das Objekt besteht aus zwölf Appartements sowie einer separaten Betreiberwohnung.
Die Einheiten verfügen über funktionale Grundrisse mit durchdachter Raumaufteilung und befinden sich in einem ordentlichen, laufend instand gehaltenen Zustand.
Die klare Gebäudestruktur ermöglicht eine übersichtliche Organisation der Einheiten und bietet eine solide Grundlage für unterschiedliche Nutzungs- und Entwicklungsmöglichkeiten.
Das Objekt wurde im Jahr 1994/95 umfassend umgebaut bzw. hat ein großzügiger Zubau stattgefunden.
Im Jahr 2001 erfolgte die Erneuerung der Elektrik.
Insgesamt präsentiert sich die Liegenschaft in gepflegtem Zustand.
Die Appartements sind jeweils mit einer Küchenzeile sowie einem Badezimmer mit Dusche und WC ausgestattet und eignen sich sowohl für kurz- als auch längerfristige Aufenthalte.
Ein Frühstücksraum mit Küche ist vorhanden, wurde zuletzt anderweitig genutzt und kann ohne größeren baulichen Aufwand wieder seiner ursprünglichen Funktion zugeführt werden.
Zusätzlich steht eine eigenständige Betreiberwohnung zur Verfügung, die flexibel nutzbar ist – etwa zur Eigennutzung oder als zusätzliche Einheit.
Übersicht
-
Objektart: Pension
-
Einheiten: 12 Appartements + 1 Betreiberwohnung
-
Standort: Kritzendorf, Klosterneuburg
-
Zustand: Gepflegt, laufend instand gehalten
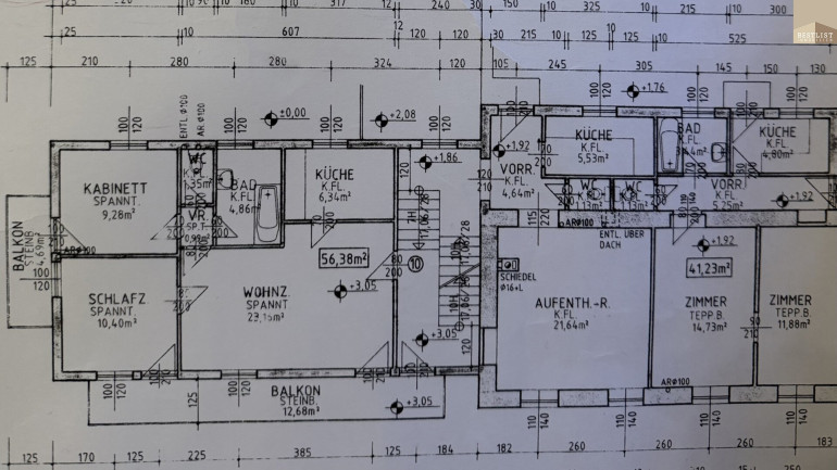
Einheiten
TOP 1: ca. 28,24 m² | TOP 2: ca. 28,17 m² | TOP 3: ca. 19,78 m²
TOP 4: ca. 19,82 m² | TOP 5: ca. 34,25 m² | TOP 6: ca. 18,91 m²
TOP 7: ca. 17,41 m² | TOP 8: ca. 19,36 m²
TOP 9: ca. 41,23 m² inkl. Terrasse und eigenem Parkplatz
TOP 10: ca. 56,38 m² – Betreiberwohnung mit Balkon
TOP 11: ca. 31,14 m² | TOP 12: ca. 17,19 m² | TOP 13: ca. 17,22 m²
Weiters verfügt das Haus über einen geräumigen Dachboden, sowie über einen Keller.
Außenbereiche & Parkmöglichkeiten
-
Großzügige Parkflächen am Objekt vorhanden
-
Versperrbarer Fahrradabstellbereich
Lage, Aussicht & Freizeitwert
Die Liegenschaft besticht durch eine unverbaubare Aussicht über die Donau-Auen. Das historisch bedeutende Strombad Kritzendorf ist fußläufig erreichbar. Die angrenzende Kleingartenanlage mit dokumentierter Künstler- und Sommerfrischegeschichte unterstreicht den besonderen Charakter des Standorts.
Der Freizeit- und Erholungswert ist überdurchschnittlich hoch:
-
Direkte Lage an Rad- und Wanderwegen
-
Donau und Au-Landschaft in unmittelbarer Nähe
-
Direkte Anbindung an den Donauradweg Passau–Wien
Die Kombination aus Natur, Geschichte und Infrastruktur macht den Standort sowohl für Gäste als auch für alternative Wohn- und Nutzungskonzepte besonders attraktiv.
Verkehrsanbindung & Erreichbarkeit
-
Bahnhof Kritzendorf fußläufig erreichbar
-
S-Bahn-Anbindung im 30-Minuten-Takt Richtung Wien
-
U4 Wien (Heiligenstadt) in ca. 15 Minuten erreichbar
-
Sehr gute Individualverkehrsanbindung
Die Nähe zu Wien sorgt für eine konstant hohe Nachfrage, insbesondere im Bereich Naherholung, Wochenend- und Kurzaufenthalte.
Infrastruktur & Nahversorgung
Die Infrastruktur in Kritzendorf ist sehr gut ausgebaut und überwiegend fußläufig nutzbar:
-
Arzt: ca. 100 m
-
Tierarzt: ca. 400 m
-
Heurige, Gasthäuser und Pizzeria: fußläufig erreichbar
-
Schule & Kindergarten Kritzendorf: ca. 750 m
-
BG/BRG Klosterneuburg, Privates Gymnasium, Musikschule Klosterneuburg: gut erreichbar
-
Banken & Geldautomat: ca. 200 m
-
Einkaufsmöglichkeiten (Stadtplatz Klosterneuburg): ca. 2 km
Fazit:
Eine solide, gepflegte Liegenschaft in attraktiver Lage mit klarer Struktur, guter Substanz und vielseitigem Nutzungspotenzial.
Unser nachhaltiger Denkansatz sieht auch die Vermeidung unnötiger Ausdrucke in Papierform vor. Daher geben Sie uns bitte Bescheid, ob Sie die Unterlagen in gedruckter Form ausgehändigt haben möchten oder ob wir sie Ihnen einfach per E-Mail zusenden sollen. Wir richten uns gerne nach Ihren Wünschen!
Wir weisen darauf hin, dass zwischen dem Vermittler und dem zu vermittelnden Dritten ein familiäres oder wirtschaftliches Naheverhältnis besteht.
Der Vermittler ist als Doppelmakler tätig.
Infrastruktur / Entfernungen
Gesundheit
Arzt <2.500m
Apotheke <2.750m
Krankenhaus <3.000m
Klinik <2.000m
Kinder & Schulen
Schule <750m
Kindergarten <1.000m
Universität <4.000m
Nahversorgung
Supermarkt <500m
Bäckerei <2.500m
Einkaufszentrum <7.250m
Sonstige
Bank <500m
Geldautomat <2.750m
Post <3.000m
Polizei <2.250m
Verkehr
Bus <250m
Straßenbahn <8.250m
Bahnhof <250m
Autobahnanschluss <2.250m
Angaben Entfernung Luftlinie / Quelle: OpenStreetMap
Eckdaten
| Kaufpreis: | 1.490.900,00 € |
| Fläche: | 407,67 m² |
Basisdaten zur Immobilie
| Objektnr: | 311013 |
| Art: | Gastgewerbe - Pensionen |
| Land: | Österreich |
| Baujahr: | 1900 |
| Zustand: | Gepflegt |
| Kaufpreis: | 1.490.900,00 € |
| Kaufpreis / m²: | auf Anfrage |
| Provision: | 3% des Kaufpreises zzgl. 20% USt. |
| Wohnfläche: | 407,67 m² |
| Grundstücksfl.: | 901,00 m² |
| Balkone: | 5 |
| Terrassen: | 1 |
Ausstattung
Fliesen, Laminatboden, Teppichboden, Gas, Einbauküche, Bad mit Fenster, Dusche, Kabel/Satelliten-TV, Parkplatz, Gastterrasse
Internet und TV
Information zur Internet und TV Versorgung hier
Ihre persönliche Beratung
Florian Stift
BESTLIST Immobilien GmbH
anfrage@bestlist.immo
+43 2252 25 28 28
+43 676 51 44 162
