Immobilie merken

Wohnen mit Lebensqualität – 1-Zimmer-Wohnung in Aflenz Kurort

Wohnung , 8623 Aflenz Kurort

Lage der Immobilie

8623 Aflenz Kurort

Beschreibung der Immobilie

961/36022

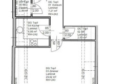
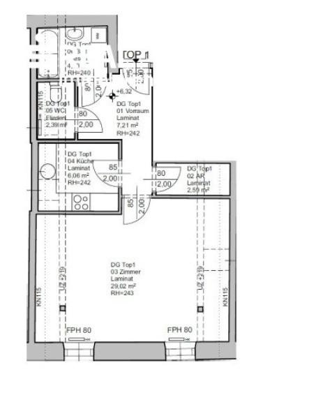
Diese charmante Mietwohnung bietet auf 51,27 m² eine durchdachte Raumaufteilung und hohen Wohnkomfort.

Sie gliedert sich wie folgt:

  • Vorraum – einladend und praktisch für Garderobe und Stauraum
  • Badezimmer – mit Badewanne, ideal für entspannende Momente
  • Separates WC – für zusätzlichen Komfort
  • Küche – eine neue Einbauküche wird nach Vorlage eines Mietangebots installiert
  • Abstellraum – bietet Platz für Vorräte oder Haushaltsgeräte
  • Geräumiges Zimmer – als Wohn- und Schlafbereich nutzbar

Die Wohnung wird frisch ausgemalt und geräumt übergeben.

Ausstattung:

  • Fernwärmeversorgung – effizient und umweltfreundlich
  • Neue Einbauküche nach Absprache
  • Helle, gepflegte Räume
  • Praktischer Abstellraum

Lage:

Die Wohnung befindet sich im Herzen von Aflenz Kurort, einem charmanten Luft- und Höhenkurort in der Steiermark. Die Lage vereint Ruhigkeit und Naturverbundenheit mit einer guten Infrastruktur: Einkaufsmöglichkeiten, Arzt, Apotheke und öffentliche Verkehrsmittel sind fußläufig erreichbar. Umgeben von Bergen und Wäldern, bietet der Standort zahlreiche Möglichkeiten für Wanderungen, Wintersport und Outdoor-Aktivitäten. So genießen die Bewohner sowohl die Vorzüge eines lebendigen Ortszentrums als auch die Idylle der Natur direkt vor der Haustür.

HWB:                            125,2 kWh/m²a

Gesamtmiete:             € 529,85 (inkl. BK und Heizung)

Kaution:                      3 Bruttomonatsmieten

Wir weisen darauf hin, dass zwischen dem Vermittler und dem zu vermittelnden Dritten ein familiäres oder wirtschaftliches Naheverhältnis besteht.

Infrastruktur / Entfernungen

Gesundheit
Arzt <500m
Apotheke <500m
Klinik <500m

Kinder & Schulen
Schule <2.500m
Kindergarten <2.500m

Nahversorgung
Supermarkt <500m
Bäckerei <2.500m

Sonstige
Bank <500m
Geldautomat <500m
Post <2.500m
Polizei <2.500m

Verkehr
Bus <500m
Flughafen <6.000m

Angaben Entfernung Luftlinie / Quelle: OpenStreetMap

Eckdaten

Gesamtmiete: 529,85 €
Fläche: 51,27 m²
Zimmer: 1

Basisdaten zur Immobilie

Objektnr: 961/36022
Art: Wohnung
Land: Österreich
Gesamtmiete: 529,85
Kaltmiete (netto): 307,62 €
Kaltmiete: 383,50 €
Provision: Gemäß Erstauftraggeberprinzip bezahlt der Abgeber die Provision.
Betriebskosten: 75,88 €
Heizkosten: 90,00 €
MwSt Gesamt: 56,35 €
Nutzfläche: 51,27 m²
Zimmer: 1
Bäder: 1
WC: 1
Heizwärmebedarf: 125,20 kWh/m²a

Ausstattung

Fernwärme



Internet und TV

Information zur Internet und TV Versorgung hier




Immobilie anfragen




Ihre persönliche Beratung

s REAL - Leoben

Katarina Trajkovic

Real-Service für steirische Sparkassen Realitätenvermittlungs-Ges.m.b.H.

katarina.trajkovic@sreal.at

+43 5 0100 - 26419

+43 664 8184145