Immobilie merken

Luxusvilla mit historischem Charme und modernem Komfort in Hartberg | ZELLMANN IMMOBILIEN

Haus - Villa, 8230 Hartberg

Beschreibung der Immobilie

Diese wunderschöne Villa wurde 1912 im damals noblen Viertel in massiver Bauweise errichtet und zwischen 2004 und 2005 umfassend saniert und modernisiert. (fiktives Baujahr = 2005). Sie ist unterkellert und verfügt über ein Erd- und ein ausgebautes Dachgeschoss. Der Keller, oder eigentlich das Souterrain, umfasst verschiedene Räume wie einen Heizraum, Weinkeller und ausreichend Platz für einen Fitness-Saunabereich. Ebenso ist dort eine ca. 80 m² große Einlegerwohnung untergebracht. Im Erdgeschoss befinden sich großzügige Räume wie ein Foyer, Ess-Wohnraum, Küche und ein Herrenzimmer. Das Dachgeschoss bietet eine Galerie, drei Zimmer, zwei Badezimmer und zwei Schrankräume.

Objektbeschreibung Diese exklusive Villa wurde im Jahr 1912 in massiver Bauweise errichtet und befindet sich in einer ruhigen Wohngegend in Hartberg. Die hochwertige Architektur und die aufwendige Sanierung in den Jahren 2004 bis 2006 machen dieses Anwesen zu einem einzigartigen Zuhause für anspruchsvolle Käufer. Die Villa beeindruckt durch ihre großzügige Wohnfläche, eine durchdachte Raumaufteilung sowie eine elegante, historische Bauweise mit modernen Ergänzungen.

Eckdaten der Immobilie

  • Grundstücksfläche: 2.582 m²

  • Wohnfläche: ca. 468,54 m²

  • Baujahr: 1912, generalsaniert 2005

  • Bauweise: Ziegel-Massivbauweise mit repräsentativem Stuck

  • Keller: 75,11 m², inklusive Weinkeller, Saunabereich und einer zusätzlichen 80 m² großen Einlegerwohnung mit ebenerdigem Zugang zum Garten sowie direktem Zugang von der Doppelgarage

  • 2 Terrassen: 82,12 m²

  • Garage: Großzügige Doppelgarage mit darüberliegender Terrasse und zusätzlichem Abstellraum

  • Carport: ca. 30 m² für 2 PKWs

Ausstattung & Besonderheiten
  • Fenster: Hochwertige Holzfenster mit 2-fach Verglasung

  • Bodenbeläge: Hochwertiger Fischgrät-Parkett aus Eiche, bzw. Kirsche, Steinboden, Fliesen

  • Sanitäreinrichtungen: Exklusive Ausstattung mit großzügigen Badezimmern

  • Heizung: Erdwärmeheizung, Fußbodenheizung, Bauträgerheizung, 3 zur Gänze sanierte Jugendstil Kachelöfen

  • Elektroinstallationen: Moderne Verkabelung, Alarmanlage

  • Innentüren: Geschliffene und neu lackierte original Holztüren im klassischen Kassetten Stil

  • Zusätzlich: offener Kamin, aufwendige Stuckelemente, große Raumhöhen von durchschnittlich 3,60 m 

  • Einzigartig: Mondäne Einfahrt, Einlegerwohnung im Souterrain, Weinstüberl

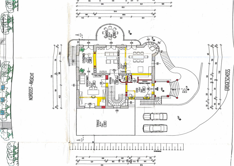
Raumaufteilung Das Objekt verfügt über eine durchdachte Aufteilung auf mehrere Etagen:
  • Erdgeschoss: Großzügiges Foyer mit WC und Abstellraum, beeindruckendes Stiegenhaus, weitläufiger Ess- und Wohnbereich mit Jugendstil Kachelofen, angrenzende stilvolle Küche, Herrenzimmer mit offenem Kamin, Zugang zu den Terrassen aus allen Zimmern.

  • Obergeschoss: Galerie mit Stiegenaufgang, Master-Schlafzimmer mit angrenzendem Badezimmer und Ankleideraum und Jugendstil Kachelofen, zwei weitere Schlafzimmer und ein weiteres Badezimmer und ein weiterer Ankleideraum.

  • Souterrain, bzw. Kellergeschoss: Vorraum mit Stiegenaufgang, Heizraum, Tankraum, eleganter Weinkeller, ausreichender Platz für einen Wellnessbereich mit Sauna und Fitnessraum, 80 m² große Einleger- oder Gästewohnung mit ebenerdigem Zugang zum Garten sowie direktem Zugang von der Doppelgarage.

Außenanlagen
  • Großer Garten mit gepflegter Bepflanzung und altem Baumbestand

  • Salettl und Brunnen im Garten

  • Terrassen mit viel Platz für Entspannung und gesellige Abende

  • Separates Carport und großzügige Doppelgarage mit oberliegender Terrasse

  • Mondäne Einfahrt mit stilvoller Gestaltung und fernbedienbarem Eisentor

Lage & Infrastruktur Die Villa befindet sich in einer ruhigen Nebenstraße mit guter Anbindung an öffentliche Verkehrsmittel und die Infrastruktur der Stadt Hartberg:
  • Bildungseinrichtungen: Schulen und Kindergärten im Umkreis von 3 km

  • Gesundheit: Arztpraxen, Apotheken und Krankenhaus in unmittelbarer Nähe

  • Einkaufsmöglichkeiten: Supermärkte und Einzelhandel in der Umgebung

  • Freizeit & Natur: Sport- und Kultureinrichtungen, Parks und Naherholungsgebiete

Lagebeschreibung 

Hartberg ist eine charmante Stadt in der Steiermark und besticht durch ihre hohe Lebensqualität. Die Stadt verbindet historischen Charme mit modernem Komfort. Das Stadtzentrum bietet eine Vielzahl an Einkaufsmöglichkeiten, Cafés und Restaurants. Die umliegende Natur lädt zu ausgedehnten Spaziergängen, Radtouren und Erholung in der freien Natur ein. Dank der guten Verkehrsanbindung sind größere Städte wie Graz und Wien gut erreichbar. Zudem bietet Hartberg eine hervorragende Infrastruktur mit Bildungs- und Gesundheitseinrichtungen sowie zahlreichen Freizeitmöglichkeiten.

Fazit Diese hochwertige Villa bietet eine perfekte Kombination aus Eleganz, Komfort und Funktionalität. Die großzügige Raumaufteilung, die luxuriöse Ausstattung und die ruhige Lage machen sie zu einer erstklassigen Immobilie in Hartberg.

Nachdem wir Ihre Anfrage erhalten haben, übersenden wir Ihnen sehr gerne viele weitere Fotos, wie auch alle Unterlagen und Pläne dieser wunderschönen Immobilie.

Noch nichts gefunden? Wir informieren Sie über geeignete Immobilienangebote noch vor allen anderen.
Legen Sie jetzt Ihren individuellen Suchagenten unter folgendem Link an. Wir schicken Ihnen passende Immobilien exklusiv vorab zu. 

-> Suchagent anlegen

Der Vermittler ist als Doppelmakler tätig.

Unser Service – Vertrauen. Service. Qualität.

Bei ZELLMANN IMMOBILIEN legen wir größten Wert auf persönliche Beratung, Transparenz und Service auf höchstem Niveau. Jede Besichtigung ist unverbindlich und findet in entspannter Atmosphäre statt. Nach Vertragsabschluss übernehmen wir selbstverständlich sämtliche Formalitäten – von der Übergabedokumentation bis zur Abstimmung mit Hausverwaltung und Energieversorgern. Ihr Anliegen ist bei uns in den besten Händen – auch nach Vertragsabschluss.

Rechtliche Hinweise

Bitte überprüfen Sie nach Übermittlung Ihrer Anfrage auch Ihren SPAM- bzw. WERBE-Ordner, da automatisierte E-Mail-Zustellungen technisch bedingt fallweise dort eingeordnet werden können. Wir bearbeiten Anfragen üblicherweise innerhalb weniger Stunden, auch an Wochenenden. Die Bekanntgabe einer Telefonnummer erfolgt freiwillig; diese kann ausschließlich zur ergänzenden Verständigung (z. B. SMS-Benachrichtigung über die Exposé-Übermittlung) verwendet werden. Dieses Angebot ist unverbindlich und freibleibend. Alle Angaben erfolgen auf Basis von Informationen des Eigentümers und vorliegenden Unterlagen; eine Haftung für Richtigkeit, Vollständigkeit und Aktualität wird nicht übernommen. Änderungen, Irrtümer, Zwischenverkauf sowie Abweichungen bleiben vorbehalten. Flächenangaben sind ca.-Werte. Das Exposé stellt kein verbindliches Angebot dar. Im Erfolgsfall beträgt die Käuferprovision 3 % des Kaufpreises zzgl. 20 % USt gemäß §§ 6 ff MaklerG und Immobilienmaklerverordnung, BGBl. 262/1996 idgF. Bei Mietobjekten gilt das gesetzliche Bestellerprinzip (§ 17a MaklerG): Provision ist von jener Partei zu tragen, die den Makler zuerst beauftragt hat; für Wohnungssuchende fällt grundsätzlich keine Provision an.

Infrastruktur / Entfernungen

Gesundheit
Arzt <500m
Apotheke <500m
Krankenhaus <1.000m
Klinik <1.000m

Kinder & Schulen
Schule <500m
Kindergarten <500m

Nahversorgung
Supermarkt <500m
Bäckerei <1.000m
Einkaufszentrum <1.500m

Sonstige
Bank <500m
Geldautomat <500m
Post <500m
Polizei <500m

Verkehr
Bus <500m
Autobahnanschluss <3.000m
Bahnhof <1.000m

Angaben Entfernung Luftlinie / Quelle: OpenStreetMap

Eckdaten

Kaufpreis: 1.990.000,00 €
Fläche: 468,54 m²
Zimmer: 8

Basisdaten zur Immobilie

Objektnr: 25596
Art: Haus - Villa
Land: Österreich
Baujahr: 1912
Zustand: Modernisiert
Alter: Altbau
Kaufpreis: 1.990.000,00
Wohnfläche: 468,54 m²
Zimmer: 8
Bäder: 3
WC: 4
Terrassen: 2
Stellplätze: 2
Keller: 75,11 m²
Heizwärmebedarf:  D  136,20 kWh/m²a
fGEE:  C  1,45

Ausstattung

Parkett, Steinboden, Erdwärme, Fußbodenheizung, Zentralheizung, Einbauküche, Wohnküche / offene Küche, Nordbalkon, Südbalkon, Bad mit Fenster, Badewanne, Dusche, Kabel/Satelliten-TV, Garage, Carport, Alarmanlage, Sauna



Internet und TV

Information zur Internet und TV Versorgung hier




Immobilie anfragen




Ihre persönliche Beratung

ZELLMANN IMMOBILIEN GmbH | Vertrauen. Service. Qualität.

Christian Zellmann

ZELLMANN IMMOBILIEN GmbH | Vertrauen. Service. Qualität.

office@zellmann.at

+43 699 15 15 22 00

+43 699 15 15 22 00


ZELLMANN IMMOBILIEN GmbH | Vertrauen. Service. Qualität. - Immobilen Makler

Stuhlhofergasse 8, 1230 Wien-Mauer

+43 699 15 15 22 00

https://www.zellmann.at