Neubau in Hietzing – Grünlage & perfekte U4-Anbindung
Wohnung
,
1130
Wien
,
Auhofstraße
Lage der Immobilie
Wohnen im grünen Hietzing – mit direkter Anbindung in die Stadt. Der Bahnhof Hütteldorf (U4, S-Bahn, Bus) ist in wenigen Minuten erreichbar und sorgt für eine schnelle Verbindung in die Wiener Innenstadt sowie ins Umland. Die Nahversorgung ist hervorragend: Supermärkte, Bäckereien, Apotheken, Ärzte sowie das St.-Josef-Krankenhaus befinden sich in unmittelbarer Umgebung. Schulen und Kindergärten sind ebenfalls gut erreichbar. Für Erholung sorgt die Nähe zum Lainzer Tiergarten und zum Wienfluss-Radweg – ideale Voraussetzungen für Freizeit, Sport und Ausgleich im Alltag.Beschreibung der Immobilie
In attraktiver Lage des 13. Bezirks wurde ein hochwertiger Neubau mit rund 40 modernen Eigentumswohnungen realisiert.
Die Wohnungen überzeugen durch durchdachte Grundrisse, helle Räume und großzügige Freiflächen – ob Balkon, Loggia, Terrasse oder Eigengarten.
Ein besonderes Highlight ist die moderne Deckenheizung und -kühlung, die ganzjährig für ein angenehmes Raumklima sorgt – effizient und komfortabel.
Die Kombination aus ruhiger Grünlage und schneller Erreichbarkeit macht dieses Projekt besonders attraktiv für Eigennutzer und Anleger.
Wohnungen im Überblick
-
2 bis 4 Zimmer
- ca. 45 bis 90 m² Wohnfläche
- moderne Wohnküchen
- Freiflächen je nach Einheit (Balkon, Loggia, Terrasse oder Eigengarten)
Ausstattung
- hochwertige Parkettböden
- 3-fach verglaste Fenster
- Deckenheizung & -kühlung
- elektrische Raffstores
- Markensanitärausstattung
- Lift im Haus
- Fahrradabstellräume
- Tiefgarage (optional)
Die Wohnungen werden für den Käufer provisionsfrei angeboten und bieten somit einen zusätzlichen finanziellen Vorteil beim Erwerb.
Fotos (c) Irene Schanda
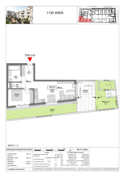
2-Zimmer-Wohnung mit Terrasse und Garten
Die 2-Zimmer-Wohnung bietet 49,61 m² optimal genutzten Wohnraum mit Wohnküche, Schlafzimmer und Bad. Die großzügige Terrasse mit anschließendem Garten schafft zusätzlichen Freiraum im Grünen. Dank der sehr guten urbanen Lage und hervorragenden Erreichbarkeit sind Einkaufsmöglichkeiten und öffentliche Verkehrsmittel schnell erreichbar – ideal für Paare oder Singles, ebenso für Pendler oder als attraktives Anlageobjekt.
Wir weisen darauf hin, dass zwischen dem Vermittler und dem zu vermittelnden Dritten ein familiäres oder wirtschaftliches Naheverhältnis besteht.
Der Vermittler ist als Doppelmakler tätig.
Infrastruktur / Entfernungen
Gesundheit
Arzt <750m
Apotheke <750m
Klinik <2.500m
Krankenhaus <250m
Kinder & Schulen
Schule <250m
Kindergarten <1.000m
Universität <1.500m
Höhere Schule <4.750m
Nahversorgung
Supermarkt <250m
Bäckerei <250m
Einkaufszentrum <3.500m
Sonstige
Geldautomat <250m
Bank <750m
Post <1.250m
Polizei <750m
Verkehr
Bus <250m
Straßenbahn <750m
U-Bahn <250m
Bahnhof <250m
Autobahnanschluss <3.250m
Angaben Entfernung Luftlinie / Quelle: OpenStreetMap
Eckdaten
| Kaufpreis: | 498.700,00 € |
| Fläche: | 49,61 m² |
| Zimmer: | 2 |
Basisdaten zur Immobilie
| Objektnr: | 1609/46809 |
| Art: | Wohnung |
| Land: | Österreich |
| Baujahr: | 2025 |
| Zustand: | Erstbezug |
| Alter: | Neubau |
| Kaufpreis: | 498.700,00 € |
| Betriebskosten: | 122,20 € |
| Heizkosten: | 44,03 € |
| MwSt Gesamt: | 19,70 € |
| Wohnfläche: | 49,61 m² |
| Zimmer: | 2 |
| Bäder: | 1 |
| WC: | 1 |
| Terrassen: | 1 |
| Garten: | 55,27 m² |
| Heizwärmebedarf: | B 34,80 kWh/m²a |
| fGEE: | A 0,72 |
Ausstattung
Fliesen, Parkettboden, Personenaufzug, Badewanne, Garage
Internet und TV
Information zur Internet und TV Versorgung hier
Ihre persönliche Beratung
Selina Harnuboglu
RE/MAX First - REM Immobilienmakler GmbH & Co KG
s.harnuboglu@remax-first.at
+43 664 502 41 77
REMAX First - REM Immobilienmakler GmbH & Co KG
Hietzinger Hauptstraße 22 / D / 9, 1130 Wien
+43 1 997 1000