Terrassentraum! 2 Zimmer Erstbezug
Wohnung
,
1230
Wien
Beschreibung der Immobilie
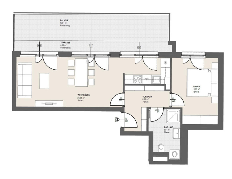
2-Zimmerwohnung mit wirklich großer Terrasse - Erstbezug!
Top 30 im 1. DG
Ein Paradies für 1-2:
- Weitzer Parkettboden Eiche matt
- Bad mit Dusche und WC, modern mit großen Fliesen und schönen Armaturen, Waschmaschinenanschluss
- Das geräumige Schlafzimmer hat ausreichend Platz für ein Bett und Kleiderschränke
- Die Küche (alle Anschlüsse vorhanden) ist offen zum Wohnraum
- Im Wohnzimmer ist viel Platz für Esstisch als auch für eine gemütliche Wohnecke
- Und im Sommer öffnet man die Terrassentüren und erweitert den Wohnraum zur Terrasse!
- Riesige Terrasse auf Wohnebene!
Ein Kellerabteil gehört auch dazu. Selbstverständlich gibt es Kinderwagen- und Fahrradräume und ein Tiefgaragenplatz kann nach Verfügbarkeit auch dazu gekauft werden.
Sollte genau diese Wohnung nicht perfekt zu Ihnen passen, fragen Sie mich, es gibt noch viele weitere Angebote in diesem Projekt!
Ideal auch als Anlageobjekt. Die Wohnung lässt sich schnell und rentabel vermieten. Auf Wunsch lasse ich Ihnen gerne auch den Anlegerpreis zukommen!
LAGE
Liesing entwickelt sich seit Jahren zu einem der gefragtesten Wohn-Bezirke Wiens. Kein Wunder: Hier wird beste öffentliche Anbindung, viele Grünflächen, tolle Infrastruktur und spannende neue Wohnhäuser zu einer idealen Wohlfühlsymbiose – einfach perfekt!
Verschiedene Nahversorger sind in unmittelbarer Nähe zu finden. Auch Schulen und Kinderbetreuung ist nicht weit und wenn Sie einmal nicht selbst kochen wollen, so finden Sie verschiedene Gastronomieangebote auch fußläufig.
VERKEHR
In kurzer Zeit erreichen Sie die Südautobahn, bzw. die S1 oder auch die Tangente. Öffentlicher Verkehr, ganz in der Nähe:
U6 Perfektastraße
Badner Bahn Schönbrunner Allee
Buslinien 64A und 61A
VERTRAGSABWICKLUNG
Die vertragliche und treuhändige Abwicklung erfolgt ausschließlich durch die Rechtsanwaltskanzlei DDr. Wolfgang Doppelbauer, 4600 Wels, Rainerstraße 16.
Rechtsanwaltskosten für Vertrag, Treuhandschaft, Wohnungseigentumsbegründung und Verbücherung netto 1,35% des Kaufpreises + 20% Umsatzsteuer und Barauslagen.
Notariatskosten der Unterschriftenbeglaubigung nach Notariatstarifgesetz und geringe Gebühren.
Allfällige Finanzierungskosten bei Fremdfinanzierung (Kreditkosten, Beglaubigungskosten Pfandurkunde, Pfandrechtseintragung Grundbuchgebühr 1,2% der Summe, Kosten Treuhandschaft)
ALLGEMEINES
Wir ersuchen Sie um Verständnis, dass wir von Ihnen vor der Zusendung des Exposés die Bestätigung des sofortigen Tätigwerdens sowie die Aufklärung des Rücktrittsrechtes gemäß FAGG (Fern- und Auswärtsgeschäfte-Gesetz) benötigen.
Die Angaben beruhen auf Informationen der Eigentümerin und/oder Dritter und sind daher ohne Gewähr. Änderungen vorbehalten!
Wir weisen darauf hin, dass zwischen dem Vermittler und dem zu vermittelnden Dritten ein familiäres oder wirtschaftliches Naheverhältnis besteht.
Der Vermittler ist als Doppelmakler tätig.
Infrastruktur / Entfernungen
Gesundheit
Arzt <500m
Apotheke <1.000m
Klinik <2.000m
Krankenhaus <2.000m
Kinder & Schulen
Schule <1.000m
Kindergarten <500m
Universität <5.000m
Höhere Schule <4.500m
Nahversorgung
Supermarkt <500m
Bäckerei <1.500m
Einkaufszentrum <1.000m
Sonstige
Geldautomat <500m
Bank <1.500m
Post <1.500m
Polizei <1.500m
Verkehr
Bus <500m
U-Bahn <1.000m
Straßenbahn <3.000m
Bahnhof <500m
Autobahnanschluss <1.000m
Angaben Entfernung Luftlinie / Quelle: OpenStreetMap
Eckdaten
| Kaufpreis: | 367.200,00 € |
| Fläche: | 50,60 m² |
| Zimmer: | 2 |
Basisdaten zur Immobilie
| Objektnr: | 1609/42026 |
| Art: | Wohnung |
| Land: | Österreich |
| Baujahr: | 2024 |
| Zustand: | Erstbezug |
| Kaufpreis: | 367.200,00 € |
| Provision: | 3% des Kaufpreises zzgl. 20% USt. |
| Betriebskosten: | 97,50 € |
| MwSt Gesamt: | 9,75 € |
| Wohnfläche: | 50,60 m² |
| Zimmer: | 2 |
| Bäder: | 1 |
| WC: | 1 |
| Terrassen: | 1 |
| Keller: | 1,64 m² |
| Heizwärmebedarf: | B 34,00 kWh/m²a |
| fGEE: | A 0,77 |
Ausstattung
Zentralheizung, Personenaufzug
Internet und TV
Information zur Internet und TV Versorgung hier
Ihre persönliche Beratung
Mag. Ursula Rapottnig
RE/MAX First - REM Immobilienmakler GmbH & Co KG
u.rapottnig@remax-first.at
+43 664 151 30 55
RE/MAX First - REM Immobilienmakler GmbH & Co KG
Hietzinger Hauptstraße 22 / D / 9, 1130 Wien
+43 1 997 1000