Ruhige 1-Zimmer-Wohnung mit Grünblick nähe Schönbrunn
Wohnung
- Etage,
1130
Wien,Hietzing
Beschreibung der Immobilie
Ruhige 1-Zimmer-Wohnung mit Grünblick nähe Schönbrunn
Zum Verkauf gelangt eine gepflegte 1-Zimmer-Wohnung in attraktiver Lage des 13. Wiener Gemeindebezirks. Die Wohnung befindet sich im 3. Liftstock eines im Jahr 1983 errichteten Wohnhauses und ist hofseitig ausgerichtet – ideal für alle, die Ruhe und Wohnqualität schätzen.
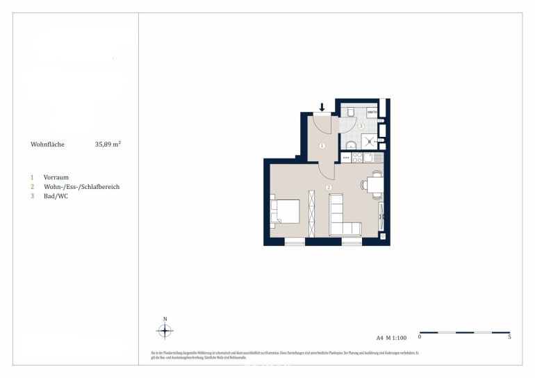
Der offen konzipierte Wohn-, Schlaf- und Essbereich bietet eine klare, gut nutzbare Raumstruktur und ausreichend Platz für modernes Wohnen. Die großflächigen Fenster sorgen für ein angenehmes, natürliches Licht und einen freien Blick ins Grüne. Das Badezimmer ist funktional ausgestattet und verfügt über Dusche, WC sowie einen Waschmaschinenanschluss.
Die Wohnfläche beträgt ca. 35,86 m². Die Wohnung befindet sich in gepflegtem Zustand und ist ab sofort verfügbar. Ein Personenaufzug ist vorhanden.
Optional kann ein Stellplatz in der hauseigenen Tiefgarage um EUR 65.000,– erworben werden.
Lage
Die Liegenschaft befindet sich in der Hietzinger Hauptstraße im Herzen von Hietzing. Der Schlosspark Schönbrunn sowie der Rote Berg sind in kurzer Zeit erreichbar und bieten einen hohen Erholungs- und Freizeitwert. Die Umgebung zeichnet sich durch eine sehr gute Infrastruktur aus – Nahversorger, Gastronomie und sämtliche Einrichtungen des täglichen Bedarfs befinden sich in unmittelbarer Nähe.
Die öffentliche Verkehrsanbindung ist ausgezeichnet:
Die U-Bahn-Linie U4 (Station Hietzing) sowie mehrere Straßenbahn- und Buslinien ermöglichen eine rasche Verbindung in die Wiener Innenstadt und in andere Bezirke.
Eckdaten
-
Wohnfläche: ca. 35,89 m²
-
Zimmer: 1
-
Geschchoß: 2. Etage
-
Baujahr: 1983
-
Zustand: gepflegt
-
Ausrichtung: hofseitig / Norden
-
Energieausweis: HWB 44,7 kWh/m²a (Klasse B)
-
Kaufpreis: EUR 249.000,–
Wir weisen darauf hin, dass zwischen dem Vermittler und dem zu vermittelnden Dritten ein familiäres oder wirtschaftliches Naheverhältnis besteht.
Der Vermittler ist als Doppelmakler tätig.
Infrastruktur / Entfernungen
Gesundheit
Arzt <500m
Apotheke <500m
Klinik <1.000m
Krankenhaus <1.500m
Kinder & Schulen
Schule <500m
Kindergarten <500m
Universität <1.500m
Höhere Schule <3.500m
Nahversorgung
Supermarkt <500m
Bäckerei <500m
Einkaufszentrum <3.000m
Sonstige
Geldautomat <500m
Bank <500m
Post <500m
Polizei <1.000m
Verkehr
Bus <500m
U-Bahn <500m
Straßenbahn <500m
Bahnhof <500m
Autobahnanschluss <4.500m
Angaben Entfernung Luftlinie / Quelle: OpenStreetMap
Eckdaten
| Kaufpreis: | 249.000,00 € |
| Fläche: | 35,89 m² |
| Zimmer: | 1 |
Basisdaten zur Immobilie
| Objektnr: | 1609/46974 |
| Art: | Wohnung - Etage |
| Land: | Österreich |
| Baujahr: | 1983 |
| Zustand: | Gepflegt |
| Möbliert: | Voll |
| Kaufpreis: | 249.000,00 € |
| Provision: | 8.964,00 € inkl. 20% USt. |
| Wohnfläche: | 35,89 m² |
| Zimmer: | 1 |
| Bäder: | 1 |
| WC: | 1 |
| Heizwärmebedarf: | B 44,70 kWh/m²a |
| fGEE: | C 1,35 |
Ausstattung
Parkett, Fliesen, Etagenheizung, Einbauküche, Personenaufzug, Dusche
Internet und TV
Information zur Internet und TV Versorgung hier
Ihre persönliche Beratung
Moritz Zoigner
RE/MAX First - REM Immobilienmakler GmbH & Co KG
m.zoigner@remax-first.at
+43 676 37 15 726
RE/MAX First - REM Immobilienmakler GmbH & Co KG
Hietzinger Hauptstraße 22 / D / 9, 1130 Wien
+43 1 997 1000