Beschreibung der Immobilie
Einfamilienhaus auf Eigengrund
Das Objekt befindet sich im Nahbereich des Oberen Mühlwassers und die Gegend ist geprägt durch Einfamilienhäuser und den Erholungsflächen in der Wiener Lobau. Einkaufsmöglichkeiten und andere Einrichtungen sind im Nahbereich vorhanden. Durch die Busse 93A, 94A und N91 ist das Zentrum von Wien leicht erreichbar. Das Haus kommt aus einer Verlassenschaft und Verbesserungsarbeiten sind erforderlich. Das Objekt könnte „wachgeküsst“ werden um so eine Grünoase mit Pool in der Stadt entstehen zu lassen. Ein neuer Energieausweis ist in Bearbeitung.
Sind Sie neugierig geworden?
Dann vereinbaren Sie einfach einen Besichtigungstermin unter 0660-2061 480
Eckdaten:
Grundstück: ca.746m2
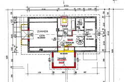
Wohnnutzfläche: ca. 150m2
Gesamtfläche: ca. 199m2
Maklerhonorar 3% plus 20% Ust
Wir bitten um Verständnis, dass auf Grund der Nachweispflicht gegenüber dem Eigentümer nur Anfragen mit vollständigenKontaktdaten (Name, Adresse, Tel., Email) beantwortet werden können. Es wird darauf hingewiesen, dass die angeführten Datenauf Informationen des Eigentümers oder Dritter (z.B. Behörden) beruhen, sodass für die Richtigkeit keine Gewähr übernommenwerden kann.
Der Vermittler ist als Doppelmakler tätig.
Infrastruktur / Entfernungen
Gesundheit
Arzt <975m
Apotheke <1.750m
Klinik <1.775m
Krankenhaus <1.875m
Kinder & Schulen
Schule <1.400m
Kindergarten <1.200m
Universität <2.925m
Höhere Schule <3.325m
Nahversorgung
Supermarkt <175m
Bäckerei <1.700m
Einkaufszentrum <3.800m
Sonstige
Geldautomat <1.700m
Bank <1.775m
Post <1.725m
Polizei <1.650m
Verkehr
Bus <100m
U-Bahn <1.850m
Straßenbahn <1.675m
Bahnhof <1.900m
Autobahnanschluss <2.250m
Angaben Entfernung Luftlinie / Quelle: OpenStreetMap
Eckdaten
| Kaufpreis: | 687.000,00 € |
| Fläche: | 150,00 m² |
| Zimmer: | 6 |
Basisdaten zur Immobilie
| Objektnr: | 1609/46589 |
| Art: | Haus - Einfamilienhaus |
| Land: | Österreich |
| Baujahr: | 1973 |
| Zustand: | Teil_vollsaniert |
| Möbliert: | Teil |
| Alter: | Neubau |
| Kaufpreis: | 687.000,00 € |
| Provision: | 3% des Kaufpreises zzgl. 20% USt. |
| Wohnfläche: | 150,00 m² |
| Nutzfläche: | 199,00 m² |
| Grundstücksfl.: | 746,00 m² |
| Zimmer: | 6 |
| Bäder: | 1 |
| WC: | 2 |
| Balkone: | 1 |
| Stellplätze: | 1 |
| Keller: | 23,00 m² |
Ausstattung
Gas, Zentralheizung, Einbauküche, Ostbalkon, Bad mit Fenster, Badewanne, Dusche, Garage
Internet und TV
Information zur Internet und TV Versorgung hier
Ihre persönliche Beratung
Mag. Martin F. Kny
RE/MAX First - REM Immobilienmakler GmbH & Co KG
m.kny@remax-first.at
+43 660 2061480
RE/MAX First - REM Immobilienmakler GmbH & Co KG
Hietzinger Hauptstraße 22 / D / 9, 1130 Wien
+43 1 997 1000