PROVISIONSFREI - Ten-Living - Ein Zuhause mit Vielfalt
Wohnung
- Dachgeschoß,
1100
Wien,Favoriten
Beschreibung der Immobilie
TEN-LIVING
Ein Zuhause mit Vielfalt
39 Eigentums- und Vorsorgewohnungen entstehen am Stadtrand von Favoriten, ein dynamischer Bezirk mit einer Mischung aus Tradition und Moderne. Hier entsteht für jeden Bedarf die passende Lösung. 2 bis 4 Zimmer zwischen 36m² und 87m², alle inklusive privater Freifläche, stehen für Ihren individuellen Wohntraum zur Verfügung.
Sollten Sie mehr Platz benötigen, planen wir auch gerne eine größere Wohnung (zB eine 4-Zimmer-Wohnung anstelle von zwei nebeneinander liegenden 2-Zimmer-Wohnungen) für Sie. Fragen Sie einfach bei unserem Vertrieb nach!
Alle Wohnungen werden schlüsselfertig übergeben, d.h. alle Sanitäranlagen, Fliesen und Parkettböden sind im Kaufpreis inkludiert. Details über die Ausstattung der Wohnungen entnehmen Sie gerne der Leistungsbeschreibung im Booklet.
Als PKW Besitzer können Sie von einem von 19 PKW-Stellplätzen in der hauseigenen Tiefgarage profitieren. Die Kosten für einen Garagenplatz betragen €29.000,-.
Großteils kann alltäglicher Bedarf zu Fuß zurückgelegt werden, bzw. sind viele Ziele, aufgrund der sehr guten öffentlichen Anbindung, in kurzer Zeit erreichbar – alles, um Ihnen den Alltag zu erleichtern und ein Höchstmaß an Lebensqualität zu bieten.
Eingebettet entlang des Liesingbachs, bietet diese idyllische Gegend einen natürlichen Grünraum. Auch die Oberlaaer Heurigen sind immer wieder einen Besuch wert, ebenso wie der Kurpark Oberlaa mit der Therme Wien angrenzend – eine perfekte Kombination aus Natur und Erholung in der Stadt.
Sparen Sie jetzt bis zu 5,9% Nebengebühren!
Provisionsfrei! Alle Eigentumsobjekte werden ohne Provision (3,6% inkl. MwSt.) angeboten!
Keine Eintragungsgebühr: Von 1.7.2024 bis 1.7.2026 entfallen die Gebühren für die Grundbucheintragung (1,1%) und die Eintragungsgebühren des Pfandrechts (1,2%).*
* Laut Wohn- & Baupaket der Regierung entfallen die Eintragungsgebühren ins Grundbuch bei einem Kaufpreis von bis zu € 500.000,- pro Käufer:in komplett, wenn der Immobilienerwerb für den Hauptwohnsitz dient. Kaufen zwei Personen eine Immobilie, verdoppelt sich die Obergrenze auf € 1.000.000,-.
Renderings: Symbolbilder (c) bildraum.at
Die angegebenen Kaufpreise sind freibleibend und können Änderungen unterliegen. Alle Angaben beruhen auf Informationen und übermittelten Unterlagen des Verkäufers. Wir informieren darüber, dass wir als Doppelmakler für Käufer und Verkäufer tätig sind.
Infrastruktur / Entfernungen
Gesundheit
Arzt <1.500m
Apotheke <500m
Klinik <2.500m
Krankenhaus <4.500m
Kinder & Schulen
Schule <1.000m
Kindergarten <500m
Universität <2.000m
Höhere Schule <5.500m
Nahversorgung
Supermarkt <500m
Bäckerei <1.000m
Einkaufszentrum <1.500m
Sonstige
Geldautomat <1.500m
Bank <1.500m
Post <1.500m
Polizei <1.500m
Verkehr
Bus <500m
U-Bahn <500m
Straßenbahn <2.500m
Bahnhof <500m
Autobahnanschluss <2.000m
Angaben Entfernung Luftlinie / Quelle: OpenStreetMap
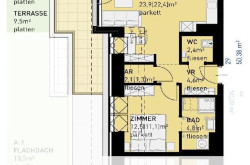
Eckdaten
| Kaufpreis: | 363.000,00 € |
| Fläche: | 50,30 m² |
| Zimmer: | 2 |
Basisdaten zur Immobilie
| Objektnr: | 1609/46214 |
| Art: | Wohnung - Dachgeschoß |
| Land: | Österreich |
| Zustand: | Erstbezug |
| Alter: | Neubau |
| Kaufpreis: | 363.000,00 € |
| Wohnfläche: | 50,30 m² |
| Zimmer: | 2 |
| Bäder: | 1 |
| WC: | 1 |
| Balkone: | 1 |
| Terrassen: | 1 |
| Keller: | 1,70 m² |
| Heizwärmebedarf: | B 27,30 kWh/m²a |
| fGEE: | A 0,73 |
Ausstattung
Zentralheizung
Internet und TV
Information zur Internet und TV Versorgung hier
Ihre persönliche Beratung
Norbert Galfusz
RE/MAX First - REM Immobilienmakler GmbH & Co KG
n.galfusz@remax-first.at
+43 664 138 2089
RE/MAX First - REM Immobilienmakler GmbH & Co KG
Hietzinger Hauptstraße 22 / D / 9, 1130 Wien
+43 1 997 1000