PROVISIONSFREI - Bezugsfertig! Direkt einziehen und wohlfühlen!
Wohnung
,
2201
Gerasdorf
Beschreibung der Immobilie
Bezugsfertiges Wohnbauprojekt mit 80 Eigentums- und Vorsorgewohnungen auf Eigengrund mit Garten, Terrasse oder Balkon.
In Gerasdorf, am Rande des 21. Bezirks in Wien, entstehen 80 provisionsfreie Eigentumswohnungen. Die Größen liegen zwischen 41 m² und 69 m² und umfassen 2 bzw. 3 Zimmer. Alle Einheiten verfügen über private Freiflächen wie Garten, Terrasse oder Balkon.
PKW-Stellplätze stehen in der hauseigenen Tiefgarage zur Verfügung.
Alle Wohnungen werden bezugsfertig übergeben, das heißt alle Sanitäranlagen, Fliesen und der Parkettboden sind im Kaufpreis inkludiert. Details über die Ausstattung der Wohnungen entnehmen Sie gerne der Leistungsbeschreibung.
Provisionsfrei! Alle Eigentumsobjekte werden ohne Provision angeboten.
Keine Eintragungsgebühr: Von 1.7.2024 bis 1.7.2026 entfallen die Gebühren für die Grundbucheintragung und die Eintragungsgebühren des Pfandrechts.*
*Laut Wohn- & Baupaket der Regierung entfallen die Eintragungsgebühren ins Grundbuch bei einem Kaufpreis von bis zu 500.000 € pro Käufer:in komplett, wenn der Immobilienerwerb für den Hauptwohnsitz dient. Kaufen zwei Personen eine Immobilie, verdoppelt sich die Obergrenze auf 1.000.000 €.
Wir weisen darauf hin, dass zwischen dem Vermittler und dem zu vermittelnden Dritten ein familiäres oder wirtschaftliches Naheverhältnis besteht.
Die angegebenen Kaufpreise sind freibleibend und können Änderungen unterliegen.
Der Vermittler ist als Doppelmakler tätig.
Infrastruktur / Entfernungen
Gesundheit
Arzt <3.000m
Apotheke <500m
Klinik <5.000m
Krankenhaus <4.000m
Kinder & Schulen
Schule <500m
Kindergarten <1.500m
Universität <3.500m
Höhere Schule <5.500m
Nahversorgung
Supermarkt <500m
Bäckerei <500m
Einkaufszentrum <3.000m
Sonstige
Bank <500m
Geldautomat <500m
Post <500m
Polizei <500m
Verkehr
Bus <500m
U-Bahn <2.500m
Straßenbahn <4.000m
Bahnhof <1.000m
Autobahnanschluss <3.000m
Angaben Entfernung Luftlinie / Quelle: OpenStreetMap
Eckdaten
| Kaufpreis: | 351.000,00 € |
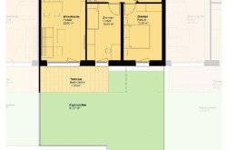
| Fläche: | 62,49 m² |
| Zimmer: | 3 |
Basisdaten zur Immobilie
| Objektnr: | 1609/46170 |
| Art: | Wohnung |
| Land: | Österreich |
| Baujahr: | 2025 |
| Zustand: | Erstbezug |
| Alter: | Neubau |
| Kaufpreis: | 351.000,00 € |
| Wohnfläche: | 62,49 m² |
| Zimmer: | 3 |
| Bäder: | 1 |
| WC: | 1 |
| Terrassen: | 1 |
| Garten: | 61,87 m² |
| Keller: | 2,07 m² |
| Heizwärmebedarf: | B 32,87 kWh/m²a |
| fGEE: | A 0,78 |
Ausstattung
Zentralheizung, Personenaufzug
Internet und TV
Information zur Internet und TV Versorgung hier
Ihre persönliche Beratung
Norbert Galfusz
RE/MAX First - REM Immobilienmakler GmbH & Co KG
n.galfusz@remax-first.at
+43 664 138 2089
RE/MAX First - REM Immobilienmakler GmbH & Co KG
Hietzinger Hauptstraße 22 / D / 9, 1130 Wien
+43 1 997 1000