Exklusive Villa in wunderschöner Grünruhelage mit Outdoor-Pool & Sauna
Haus
- Villa,
1190
Wien
,
Hackenbergweg
Beschreibung der Immobilie
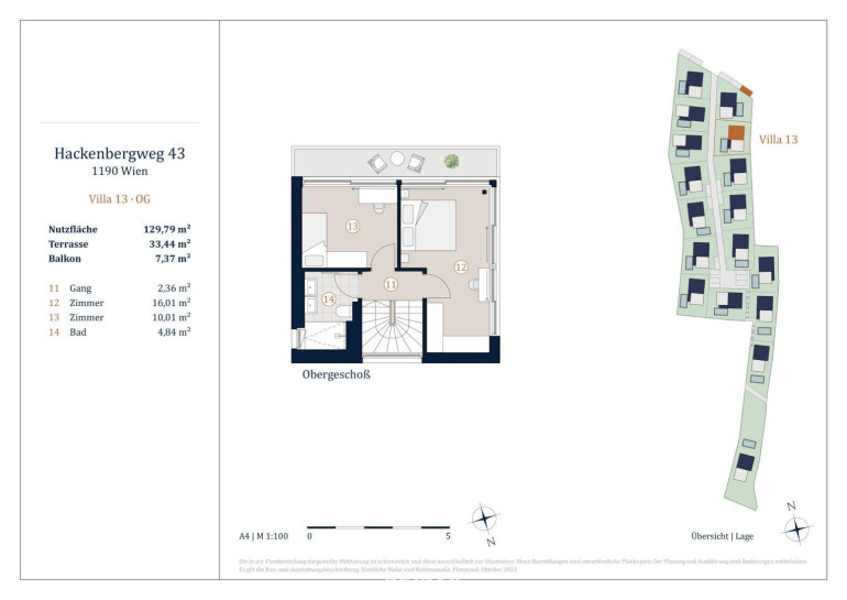
Am sonnigen Südhang des Hackenbergs im Herzen Sieverings verführt diese Villa mit knapp 130 m² Nutzfläche auf 3 Ebenen, einer privaten Sauna und eigenem Outdoor-Pool. Ausgestattet mit stilvoller Eleganz und erlesenem Geschmack.
Erdgeschoß: Vorraum, WC, Wohnküche, 33,5 m² Terrasse
Untergeschoß: Schlafzimmer, Bad mit Dusche, Wanne und WC, Sauna, Ruhebereich mit Dusche, Technikraum, WC, Zugang zum Pool und 192 m² Garten
Obergeschoß: 2 Schlafzimmer, Bad mit Doppelwaschbecken, Dusche und WC, 7,5 m² Balkon
Jede Villa besitzt außerdem einen PKW-Stellplatz in der Anlage.
Nebenkosten
Der guten Ordnung halber halten wir fest, dass, sofern im Angebot nicht anders vermerkt, bei erfolgreichem Abschlussfall eine Provision anfällt, die den in der Immobilienmaklerverordnung BGBI. 262 und 297/1996 festgelegten Sätzen entspricht – das sind 3 % des Kaufpreises zzgl. 20 % USt. Diese Provisionspflicht besteht auch dann, wenn Sie die Ihnen überlassenen Informationen an Dritte weitergeben. Es besteht ein wirtschaftliches Naheverhältnis zum Verkäufer.
Die Vertragserrichtung und Treuhandabwicklung ist gebunden an die Kanzlei Mag. Schreiber A-1010 Wien, Schottenring 16. Die Kosten betragen 1,5 % des Kaufpreises zzgl. 20 % USt. sowie Barauslagen und Beglaubigung. Bei Fremdfinanzierung erhöht sich das Honorar auf 1,8 % vom Kaufpreis zzgl. 20 % USt., Barauslagen und Beglaubigung.
Kaufpreis Wohnung: € 1.490.000,--
Käuferprovision: 3% + 20% USt.
--------------------------------------------------------------------------------
RECHTLICHE HINWEISE:
Am 20. März 2024 wurde im Nationalrat die temporäre Befreiung von den Gebühren für die Eintragung von Eigentumsrecht und Pfandrecht (Bis 500.000 Euro) im Grundbuch bei Erwerb von Wohnraum beschlossen. (Zu Beachten sind die Bedingungen lt. Bundesministerium für Justiz).
Die Verpflichtung zur Zahlung einer Vermittlungsprovision entsteht für Sie selbstverständlich nur bei erfolgreicher Vermittlung und wird erst mit der Rechtswirksamkeit des vermittelten Geschäftes fällig.
Wir können, aufgrund des bestehenden Geschäftsgebrauchs, als Doppelmakler tätig sein.
Die Angaben beruhen teilweise auf Informationen des Eigentümers und sind ohne Gewähr!
Es wird auf ein bestehendes wirtschaftliches Naheverhältnis zum Verkäufer hingewiesen.
Wir weisen darauf hin, dass zwischen dem Vermittler und dem zu vermittelnden Dritten ein familiäres oder wirtschaftliches Naheverhältnis besteht.
Der Vermittler ist als Doppelmakler tätig.
Infrastruktur / Entfernungen
Gesundheit
Arzt <500m
Apotheke <500m
Klinik <2.250m
Krankenhaus <2.500m
Kinder & Schulen
Schule <1.000m
Kindergarten <500m
Universität <2.000m
Höhere Schule <2.250m
Nahversorgung
Supermarkt <500m
Bäckerei <1.000m
Einkaufszentrum <3.500m
Sonstige
Geldautomat <1.250m
Bank <1.250m
Post <500m
Polizei <1.500m
Verkehr
Bus <250m
Straßenbahn <1.000m
U-Bahn <3.250m
Bahnhof <2.500m
Autobahnanschluss <4.000m
Angaben Entfernung Luftlinie / Quelle: OpenStreetMap
Eckdaten
| Kaufpreis: | 1.490.000,00 € |
| Fläche: | 129,79 m² |
| Zimmer: | 4 |
Basisdaten zur Immobilie
| Objektnr: | 1609/45544 |
| Art: | Haus - Villa |
| Land: | Österreich |
| Baujahr: | 2022 |
| Zustand: | Erstbezug |
| Kaufpreis: | 1.490.000,00 € |
| Provision: | 3% des Kaufpreises zzgl. 20% USt. |
| Wohnfläche: | 129,79 m² |
| Grundstücksfl.: | 275,00 m² |
| Zimmer: | 4 |
| Balkone: | 1 |
| Terrassen: | 1 |
| Heizwärmebedarf: | 44,80 kWh/m²a |
Internet und TV
Information zur Internet und TV Versorgung hier
Ihre persönliche Beratung
Moritz Zoigner
RE/MAX First - REM Immobilienmakler GmbH & Co KG
m.zoigner@remax-first.at
+43 676 37 15 726
RE/MAX First - REM Immobilienmakler GmbH & Co KG
Hietzinger Hauptstraße 22 / D / 9, 1130 Wien
+43 1 997 1000