PROVISIONSFREI - Modernes wohnen am Donauufer mit Donaublick!
Wohnung
,
1200
Wien,Brigittenau
Beschreibung der Immobilie
Urbanes Lebensgefühl mit Donaublick
Direkt am malerischen Donauufer entfaltet sich das prestigeträchtige Wohnprojekt, Traisengasse 20–22. Der moderne Neubau beeindruckt mit eleganter Architektur, begrüntem Innenhof und spektakulärem Donaublick. 269 Eigentumswohnungen bieten vielfältige Wohnungsvarianten für alle Lebensstile und Generationen. Die Nähe zur Donauinsel und die schnelle Anbindung ans Stadtzentrum versprechen ein privilegiertes Lebensgefühl in einem der lebendigsten Bezirke Wiens.
Die modernen 2-Zimmer-Wohnungen sind ideal für Singles und Paare. Mit 37 bis 45 m² vereinen sie einen offenen Wohn-/Essbereich, ein separates Schlafzimmer sowie Zugang zur Terrasse oder zum eigenen Garten. Höchsten Wohnkomfort bieten auch die Maisonette-, Garten- und Hofwohnungen mit 3 oder 4 Zimmern. Die Gartenwohnungen verfügen über private Grünflächen, während Hofwohnungen direkten Zugang zum begrünten Innenhof haben. Die Dachgeschoßwohnungen und Penthouses bieten luxuriöses Wohnen mit 43 bis 126 m² und 2 bis 4 Zimmern. Atemberaubende Ausblicke und ein begehrter Rückzugsort im Herzen der Stadt zeichnen diese Einheiten aus.
Nachhaltigkeit durch Qualität
Im Mittelpunkt dieses Neubauprojekts stehen die Erschaffung von nachhaltigem Lebensraum und das Wohlbefinden der zukünftigen Bewohner. Die DGNB GOLD Nachhaltigkeits-Zertifikat und die angestrebte EU-Taxonomie-Verifizierung unterstreichen unser Engagement für umweltgerechtes Bauen.
Provisionsfrei bis zum Baustart!
Kaufen Sie Ihr zukünftiges Zuhause bereits vor dem Baustart und sparen dabei die Provision! Gerne steht Ihnen unser Vertrieb für Informationen zur Verfügung.
Provisionsfrei! Alle Eigentumsobjekte werden ohne Provision (3,6% inkl. MwSt.) angeboten!
Keine Eintragungsgebühr: Von 1.7.2024 bis 1.7.2026 entfallen die Gebühren für die Grundbucheintragung (1,1%) und die Eintragungsgebühren des Pfandrechts (1,2%).*
* Laut Wohn- & Baupaket der Regierung entfallen die Eintragungsgebühren ins Grundbuch bei einem Kaufpreis von bis zu € 500.000,- pro Käufer:in komplett, wenn der Immobilienerwerb für den Hauptwohnsitz dient. Kaufen zwei Personen eine Immobilie, verdoppelt sich die Obergrenze auf € 1.000.000,-.
Renderings: Symbolbilder Außenansichten (c) zoom.at, Innenraumansichten (c) JAMJAM - Kreativagentur für Immobilien
Wir weisen darauf hin, dass zwischen dem Vermittler und dem zu vermittelnden Dritten ein familiäres oder wirtschaftliches Naheverhältnis besteht.
Der Vermittler ist als Doppelmakler tätig.
Die angegebenen Kaufpreise sind freibleibend und können Änderungen unterliegen.
Infrastruktur / Entfernungen
Gesundheit
Arzt <500m
Apotheke <500m
Klinik <1.000m
Krankenhaus <1.000m
Kinder & Schulen
Schule <500m
Kindergarten <500m
Universität <1.500m
Höhere Schule <2.000m
Nahversorgung
Supermarkt <500m
Bäckerei <500m
Einkaufszentrum <1.000m
Sonstige
Geldautomat <1.000m
Bank <1.000m
Post <1.000m
Polizei <500m
Verkehr
Bus <500m
U-Bahn <1.000m
Straßenbahn <1.000m
Bahnhof <1.000m
Autobahnanschluss <1.000m
Angaben Entfernung Luftlinie / Quelle: OpenStreetMap
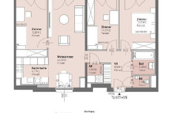
Eckdaten
| Kaufpreis: | 584.000,00 € |
| Fläche: | 79,79 m² |
| Zimmer: | 4 |
Basisdaten zur Immobilie
| Objektnr: | 1609/45943 |
| Art: | Wohnung |
| Land: | Österreich |
| Baujahr: | 2026 |
| Zustand: | Erstbezug |
| Kaufpreis: | 584.000,00 € |
| Wohnfläche: | 79,79 m² |
| Zimmer: | 4 |
| Bäder: | 1 |
| WC: | 1 |
| Balkone: | 1 |
| Keller: | 4,00 m² |
| Heizwärmebedarf: | A 20,40 kWh/m²a |
| fGEE: | A+ 0,72 |
Ausstattung
Personenaufzug
Internet und TV
Information zur Internet und TV Versorgung hier
Ihre persönliche Beratung
Norbert Galfusz
RE/MAX First - REM Immobilienmakler GmbH & Co KG
n.galfusz@remax-first.at
+43 664 138 2089
RE/MAX First - REM Immobilienmakler GmbH & Co KG
Hietzinger Hauptstraße 22 / D / 9, 1130 Wien
+43 1 997 1000