PROVISIONSFREI - Unterlaa 151 Houses - Wohnen mit Eigengärten
Haus
- Reihenhaus,
1100
Wien,Favoriten
Beschreibung der Immobilie
Das Projekt nahe Oberlaa umfasst die Errichtung von 16 Reihenhäuser und 20 Eigentumswohnungen. Die Reihenhäuser zeichnen sich durch großzügige Wohnflächen, private Freiflächen und zeitgemäße Architektur aus. Die Wohnungen sind variabel gestaltet und bieten unterschiedlichste Wohnungsgrößen für Singles, Paare oder Familien.
Alle Wohnungen werden schlüsselfertig übergeben, d.h. alle Sanitäranlagen, Fliesen und Parkettböden sind im Kaufpreis inkludiert. Details über die Ausstattung der Wohnungen entnehmen Sie gerne der Leistungsbeschreibung im Booklet.
27 PKW-Stellplätze stehen in der hauseigenen Tiefgarage bereit und bieten eine bequeme und sichere Parkmöglichkeit. Außerdem haben Sie die Möglichkeit, eine von 5 zusätzlichen Einlagerungsräumen zu erwerben - Preis auf Anfrage.
Die Lage punktet mit einer attraktiven Mischung aus urbanem Leben und naturnahen Wohnen - hervorragende Anbindung an öffentliche Verkehrsmittel, Einkaufsmöglichkeiten, Schulen und Freizeitmöglichkeiten sind nur ein paar der Vorteile.
Sparen Sie 3,6% | provisionsfrei kaufen
Provisionsfrei! Alle Eigentumsobjekte werden ohne Provision (3,6% inkl. MwSt.) angeboten!
Wir weisen darauf hin, dass zwischen dem Vermittler und dem zu vermittelnden Dritten ein familiäres oder wirtschaftliches Naheverhältnis besteht.
Der Vermittler ist als Doppelmakler tätig.
Die angegebenen Kaufpreise sind freibleibend und können Änderungen unterliegen.
Infrastruktur / Entfernungen
Gesundheit
Arzt <2.000m
Apotheke <1.500m
Klinik <5.000m
Krankenhaus <7.000m
Kinder & Schulen
Schule <1.000m
Kindergarten <1.500m
Universität <4.000m
Höhere Schule <6.500m
Nahversorgung
Supermarkt <1.500m
Bäckerei <1.500m
Einkaufszentrum <3.500m
Sonstige
Geldautomat <3.500m
Bank <1.500m
Post <1.500m
Polizei <1.500m
Verkehr
Bus <500m
U-Bahn <1.500m
Straßenbahn <3.500m
Bahnhof <1.500m
Autobahnanschluss <1.500m
Angaben Entfernung Luftlinie / Quelle: OpenStreetMap
Eckdaten
| Kaufpreis: | 639.000,00 € |
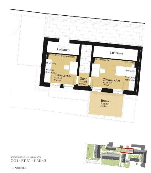
| Fläche: | 81,27 m² |
| Zimmer: | 4 |
Basisdaten zur Immobilie
| Objektnr: | 1609/45707 |
| Art: | Haus - Reihenhaus |
| Land: | Österreich |
| Zustand: | Erstbezug |
| Kaufpreis: | 639.000,00 € |
| Wohnfläche: | 81,27 m² |
| Nutzfläche: | 81,27 m² |
| Zimmer: | 4 |
| Bäder: | 1 |
| WC: | 1 |
| Balkone: | 1 |
| Terrassen: | 1 |
| Heizwärmebedarf: | C 50,40 kWh/m²a |
| fGEE: | A 0,79 |
Internet und TV
Information zur Internet und TV Versorgung hier
Ihre persönliche Beratung
Norbert Galfusz
RE/MAX First - REM Immobilienmakler GmbH & Co KG
n.galfusz@remax-first.at
+43 664 138 2089
RE/MAX First - REM Immobilienmakler GmbH & Co KG
Hietzinger Hauptstraße 22 / D / 9, 1130 Wien
+43 1 997 1000