Klassik trifft Moderne: Stilvoll Wohnen im Herzen des 3. Bezirks – Liftbau ist in Planung!
Wohnung
,
1030
Wien
Beschreibung der Immobilie
Inmitten des traditionsreichen und gleichzeitig modernen 3. Wiener Gemeindebezirks befindet sich diese charmante Wohnung in der begrünten und gut angebundenen Markhofgasse 2. Die Liegenschaft bietet urbanes Wohnen mit hoher Lebensqualität – ideal für Menschen, die zentrale Lage, gute Infrastruktur und angenehmes Wohnen in einem suchen. Ob als Eigenheim oder Anlageobjekt – hier investieren Sie in eine Immobilie mit Zukunftspotenzial.
Die Errichtung eines Liftes im Haus ist in Planung.
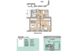
Diese helle 2-Zimmer-Wohnung befindet sich in einem klassischen Wiener Altbau. Mit einer Wohnfläche von ca. 69 m² bietet sie großzügige Raumhöhen, gepflegtes Parkett, moderne Sanitärbereiche sowie eine separate Küche mit viel Stauraum und hochwertigen Geräten.
Objektdaten:
• Wohnfläche: ca. 69 m²
• Zimmer: 2 großzügige Räume
• Etage: 4. Stock (ohne Lift)
• Küche: separate, voll ausgestattete Einbauküche
• Sanitär: Badezimmer mit bodengleicher Dusche und WC
• Heizung: Gasetagenheizung
• Zustand: saniert, sofort bezugsfertig
In unmittelbarer Nähe befinden sich:
• Supermärkte (Billa, Spar, Hofer) in Gehweite
• Apotheken, Banken, Post und zahlreiche Dienstleister
• Kindergärten, Schulen und medizinische Versorgung
• Das Gasometer als Shopping-, Event- und Entertainment-Zentrum
• Der Prater und der Donaukanal als grüne Rückzugsorte
Verkehrsanbindung
Die Wohnung bietet eine ausgezeichnete Anbindung an den öffentlichen Verkehr:
• U-Bahn: U3 (Station Schlachthausgasse) – nur wenige 100m entfernt
• Buslinien: 72A, 74A
• Schnellbahnanschluss: Bahnhof Wien St. Marx / Rennweg
• Autobahnanschluss A23 in unmittelbarer Nähe – ideal für Pendler
• Der Wiener Hauptbahnhof sowie der Flughafen Wien-Schwechat sind in ca. 10–20 Minuten bequem erreichbar.
RECHTLICHE HINWEISE
Wir ersuchen um Verständnis, dass wir von Ihnen vor der Zusendung des Exposés die Bestätigung des sofortigen Tätigwerdens sowie die Bestätigung über die Aufklärung des Rücktrittrechtes gemäß FAGG (Fern- und Auswärtsgeschäfte-Gesetz) benötigen. Anschließend freuen wir uns über eine Terminvereinbarung.
Am 20. März 2024 wurde im Nationalrat die temporäre Befreiung von den Gebühren für die Eintragung von Eigentumsrecht und Pfandrecht (Bis 500.000 Euro) im Grundbuch bei Erwerb von Wohnraum beschlossen. (Zu Beachten sind die Bedingungen lt. Bundesministerium für Justiz).
Die Verpflichtung zur Zahlung einer Vermittlungsprovision entsteht für Sie selbstverständlich nur bei erfolgreicher Vermittlung und wird erst mit der Rechtswirksamkeit des vermittelten Geschäftes fällig.
Wir können, aufgrund des bestehenden Geschäftsgebrauchs, als Doppelmakler tätig sein.
Die Angaben beruhen teilweise auf Informationen des Eigentümers und sind ohne Gewähr!
Es wird auf ein bestehendes Naheverhältnis zum Verkäufer hingewiesen.
Wir weisen darauf hin, dass zwischen dem Vermittler und dem zu vermittelnden Dritten ein familiäres oder wirtschaftliches Naheverhältnis besteht.
Der Vermittler ist als Doppelmakler tätig.
Infrastruktur / Entfernungen
Gesundheit
Arzt <500m
Apotheke <500m
Klinik <500m
Krankenhaus <1.000m
Kinder & Schulen
Schule <500m
Kindergarten <500m
Universität <1.000m
Höhere Schule <1.000m
Nahversorgung
Supermarkt <500m
Bäckerei <500m
Einkaufszentrum <1.000m
Sonstige
Geldautomat <500m
Bank <500m
Post <500m
Polizei <500m
Verkehr
Bus <500m
U-Bahn <500m
Straßenbahn <500m
Bahnhof <500m
Autobahnanschluss <500m
Angaben Entfernung Luftlinie / Quelle: OpenStreetMap
Eckdaten
| Kaufpreis: | 399.000,00 € |
| Fläche: | 69,00 m² |
| Zimmer: | 2 |
Basisdaten zur Immobilie
| Objektnr: | 1609/46278 |
| Art: | Wohnung |
| Land: | Österreich |
| Baujahr: | 1905 |
| Zustand: | Neuwertig |
| Alter: | Altbau |
| Kaufpreis: | 399.000,00 € |
| Provision: | 3% des Kaufpreises zzgl. 20% USt. |
| Betriebskosten: | 162,95 € |
| MwSt Gesamt: | 16,30 € |
| Wohnfläche: | 69,00 m² |
| Zimmer: | 2 |
| Bäder: | 1 |
| WC: | 1 |
| Heizwärmebedarf: | D 128,80 kWh/m²a |
| fGEE: | D 2,29 |
Ausstattung
Gas, Etagenheizung
Internet und TV
Information zur Internet und TV Versorgung hier
Ihre persönliche Beratung
Lisa Weber
RE/MAX First - REM Immobilienmakler GmbH & Co KG
l.weber@remax-first.at
+43 664 929 11 63
RE/MAX First - REM Immobilienmakler GmbH & Co KG
Hietzinger Hauptstraße 22 / D / 9, 1130 Wien
+43 1 997 1000