PROVISIONSFREI - Aspern Flats 103 - Ihr Traum vom Eigenheim im Grünen
Wohnung
,
1220
Wien
Beschreibung der Immobilie
ASPERN FLATS 103
Ihr Traum vom Eigenheim im Grünen
Das in Bau befindliche Wohnbauprojekt in der Wulzendorfstraße 103, 1220 Wien verfügt über 61 provisionsfreie Eigentumswohnungen auf Eigengrund in den Größen 33 m² bis 101 m² mit 1 bis 4 Zimmer sowie 2 Büroflächen. Es stehen für alle Wohnungen private Freiflächen wie Dachterrassen, Terrassen, Loggien, Balkone und Eigengärten zur Verfügung. Die Wärmeversorgung erfolgt über Luft-Wärme-Pumpe.
34 PKW-Stellplätze stehen in der hauseigenen Tiefgarage bereit.
Der Standort überzeugt durch seine sehr gute Anbindung an das öffentliche Verkehrsnetz - eine Bushaltestelle befindet sich in unmittelbarer Nähe der Anlage. (ca.50 Meter). Kurze Fußwege für tägliche Erledigungen wie Einkauf, Bildung, Sport und Freizeit sind ebenfalls gegeben.
Alle Wohnungen werden schlüsselfertig übergeben, d.h. alle Sanitäranlagen, Fliesen und Parkettböden sind im Kaufpreis inkludiert. Details über die Ausstattung der Wohnungen entnehmen Sie gerne der Leistungsbeschreibung im Booklet.
Sparen Sie jetzt bis zu 5,9% Nebengebühren!
- Provisionsfrei! Alle Eigentumsobjekte werden ohne Provision (3,6% inkl. MwSt.) angeboten!
- Keine Eintragungsgebühr: Von 1.7.2024 bis 1.7.2026 entfallen die Gebühren für die Grundbucheintragung (1,1%) und die Eintragungsgebühren des Pfandrechts (1,2%).*
* Laut Wohn- & Baupaket der Regierung entfallen die Eintragungsgebühren ins Grundbuch bei einem Kaufpreis von bis zu € 500.000,- pro Käufer:in komplett, wenn der Immobilienerwerb für den Hauptwohnsitz dient. Kaufen zwei Personen eine Immobilie, verdoppelt sich die Obergrenze auf € 1.000.000,-.
Renderings: Symbolbilder (c) bildraum.at
Die angegebenen Kaufpreise sind freibleibend und können Änderungen unterliegen.
Alle Angaben beruhen auf Informationen und übermittelten Unterlagen des Verkäufers.
Wir informieren darüber, dass wir als Doppelmakler für Käufer und Verkäufer tätig sind.
Infrastruktur / Entfernungen
Gesundheit
Arzt <500m
Apotheke <1.000m
Klinik <1.000m
Krankenhaus <1.500m
Kinder & Schulen
Schule <500m
Kindergarten <500m
Universität <3.000m
Höhere Schule <3.000m
Nahversorgung
Supermarkt <500m
Bäckerei <1.000m
Einkaufszentrum <3.500m
Sonstige
Geldautomat <1.000m
Bank <1.000m
Post <1.000m
Polizei <1.000m
Verkehr
Bus <500m
U-Bahn <1.000m
Straßenbahn <1.000m
Bahnhof <1.500m
Autobahnanschluss <2.500m
Angaben Entfernung Luftlinie / Quelle: OpenStreetMap
Eckdaten
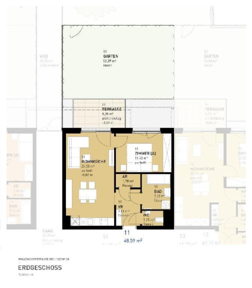
| Kaufpreis: | 331.500,00 € |
| Fläche: | 48,59 m² |
| Zimmer: | 2 |
Basisdaten zur Immobilie
| Objektnr: | 1609/46335 |
| Art: | Wohnung |
| Land: | Österreich |
| Baujahr: | 2023 |
| Zustand: | Erstbezug |
| Kaufpreis: | 331.500,00 € |
| Wohnfläche: | 48,59 m² |
| Zimmer: | 2 |
| Bäder: | 1 |
| WC: | 1 |
| Terrassen: | 1 |
| Garten: | 52,29 m² |
| Keller: | 2,89 m² |
| Heizwärmebedarf: | B 31,60 kWh/m²a |
| fGEE: | A 0,73 |
Ausstattung
Personenaufzug
Internet und TV
Information zur Internet und TV Versorgung hier
Ihre persönliche Beratung
Norbert Galfusz
RE/MAX First - REM Immobilienmakler GmbH & Co KG
n.galfusz@remax-first.at
+43 664 138 2089
RE/MAX First - REM Immobilienmakler GmbH & Co KG
Hietzinger Hauptstraße 22 / D / 9, 1130 Wien
+43 1 997 1000