REIHENHAUS MIT GARTEN | PROVISIONSFREI
Haus
- Reihenhaus,
2344
Maria Enzersdorf
,
Zipsgasse
Beschreibung der Immobilie
Zentral gelegen und doch im Grünen, gute Verkehrsanbindung, top ausgestattet.
In einer beliebten Wohngegend südlich von Wien, in zentraler Lage in Maria Enzersdorf entsteht ein erstklassiges Wohnprojekt. Auf einer Fläche von über 3.000 m² werden 15 Doppel- und Reihenhäuser mit modernster Ausstattung und ökologischer Luftwärmepumpe errichtet. Die angeführten Preise beziehen sich auf die belagsfertige Ausführung. Die Häuser können auch in der schlüsselfertigen Variante mit modernster Ausstattung gegen Aufpreis erworben werden. Besonderes Highlight sind die durchdachte Raumplanung und die hochwertigen Materialen!
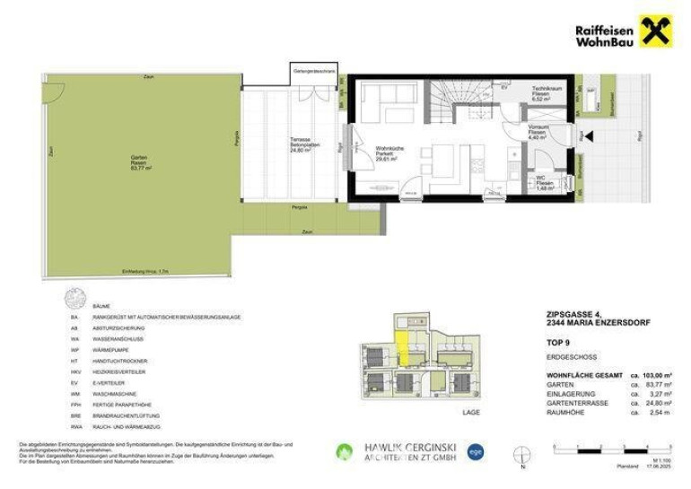
• Wohnfläche: ca. 103,00 m²
• Garten: ca. 83,77 m²
• Gartenterrasse: ca. 38,25 m²
In der Tiefgarage stehen gesamt 30 komfortable Einzelstellplätze zur Verfügung. Jedem Haus sind 2 Stellplätze zugeordnet, der Kaufpreis eines Stellplatzes beträgt zusätzlich EUR 25.000,- (Eigennutzer).
Die Neubauten sind optimal an den öffentlichen Verkehr angebunden. Mit der Schnellbahn ist die Wiener U-Bahnlinie U6 in nur 14 Minuten zu erreichen. Knapp 20 Minuten sind es bis zur U-Bahnlinie U1 mit weiteren Anschlussmöglichkeiten an die innerstädtischen Verkehrsmittel. Die Autobahnanschlussstelle A21 - A2 ist in 9 Minuten mit dem Auto zu erreichen.
Die Wohnruhelage zeichnet sich durch einen idyllischen Parkblick und drei großflächige Parks in unmittelbarer Nähe aus. Ebenso ist ein Schulzentrum fußläufig, sowie diverse Schulen für alle Altersklassen mit Bussen erreichbar.
Wir weisen darauf hin, dass zwischen dem Vermittler und dem zu vermittelnden Dritten ein familiäres oder wirtschaftliches Naheverhältnis besteht.
Der Vermittler ist als Doppelmakler tätig.
Infrastruktur / Entfernungen
Gesundheit
Arzt <500m
Apotheke <500m
Klinik <2.000m
Krankenhaus <1.500m
Kinder & Schulen
Kindergarten <250m
Schule <250m
Höhere Schule <2.750m
Universität <10.000m
Nahversorgung
Supermarkt <250m
Bäckerei <1.250m
Einkaufszentrum <1.750m
Sonstige
Bank <250m
Geldautomat <250m
Post <1.250m
Polizei <500m
Verkehr
Bus <250m
U-Bahn <4.250m
Straßenbahn <4.250m
Bahnhof <1.250m
Autobahnanschluss <2.250m
Angaben Entfernung Luftlinie / Quelle: OpenStreetMap
Eckdaten
| Kaufpreis: | 698.900,00 € |
| Fläche: | 103,00 m² |
| Zimmer: | 4 |
Basisdaten zur Immobilie
| Objektnr: | 1609/46479 |
| Art: | Haus - Reihenhaus |
| Land: | Österreich |
| Baujahr: | 2025 |
| Zustand: | Erstbezug |
| Alter: | Neubau |
| Kaufpreis: | 698.900,00 € |
| Provision: | Provision bezahlt der Abgeber. |
| Betriebskosten: | 148,12 € |
| MwSt Gesamt: | 14,81 € |
| Wohnfläche: | 103,00 m² |
| Zimmer: | 4 |
| Bäder: | 2 |
| WC: | 3 |
| Terrassen: | 1 |
| Stellplätze: | 1 |
| Garten: | 83,77 m² |
| Keller: | 3,27 m² |
| Heizwärmebedarf: | B 34,70 kWh/m²a |
| fGEE: | A++ 0,55 |
Ausstattung
Solarenergie, Fußbodenheizung
Internet und TV
Information zur Internet und TV Versorgung hier
Ihre persönliche Beratung
Karin Prosenik-Resch
RE/MAX First - REM Immobilienmakler GmbH & Co KG
k.prosenik@remax-first.at
+43 1 997 1000
+43 699 151 151 01
RE/MAX First - REM Immobilienmakler GmbH & Co KG
Hietzinger Hauptstraße 22 / D / 9, 1130 Wien
+43 1 997 1000